Bildegalleri

Velkommen til Tingvegen 6B!
FLOTT OG INNHOLDSRIKT REKKEHUS PÅ STRINDHEIM - 2 bad - Kjellerstue - Solrik terrasse - Parkering - Vaskerom - 3 soverom
Nøkkelinfo
- Boligtype
- Rekkehus
- Eieform
- Andel
- Soverom
- 3
- Internt bruksareal
- 146 m² (BRA-i)
- Bruksareal
- 146 m²
- Byggeår
- 1974
- Energimerking
- E - Rød
- Rom
- 4
- Tomteareal
- 588 m² (eiet)
Fasiliteter
Kort om eiendommen
VELKOMMEN TIL TINGVEGEN 6B!
Rekkehuset ligger fint til i Tingsletta borettslag, som er et etterspurt borettslag med et godt nabolag, flotte lekeplasser og fellesområder, samt internstier som tar deg til marka. Nærhet til skole, barnehage, dagligvare og andre fasiliteter er også verdt å nevne.
Av kvaliteter vil vi trekke frem:
- Flott og innholdsrikt rekkehus på ca. 146kvm BRA
- 3 gode soverom
- Solrik terrasse med usjenert beliggenhet
- 2 bad
- vaskerom
- Entré fra 2018
- Vedovn fra 2022
- Kjellerstue
- Parkering og mulighet for å søke om carport
- Trygt og barnevennlig borettslag
- Kort vei til fasiliteter som bussholdeplass, dagligvarebutikk, apotek, sentrum, skole, barnehage, turstier, treningssenter mm..
Velkommen til en hyggelig visning!
Innhold
Kjelleretasje.
Internt bruksareal: Gang, bad, vaskerom, rom innredet som kjellerstue og bod.
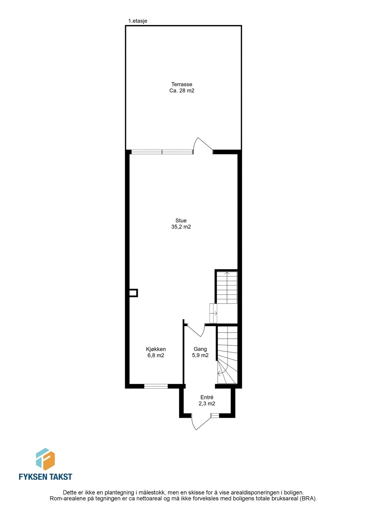
1. etasje.
Internt bruksareal: Entré, gang, stue og kjøkken.
2. etasje.
Internt bruksareal: Gang, bad og 3 soverom.
Informasjon hentet fra takstmann.
Standard
Kjelleretasje.
Gang:
Laminat på gulv, malte panelplater på vegger, plater i himling.
Innredning: Trapp.
Bad:
Flis på gulv, flis på vegger, plater i himling.
Innredning: Badekar med dusjbatteri og garnityr montert på vegg. Veggmontert WC.
Baderomsinnredning: Servant og speil.
Vaskerom:
Vinylbelegg på gulv, baderomsplater på vegger, plater i himling.
Innredning: Vaskekar. Varmtvannstank. Kran og avløp for vaskemaskin.
Kjellerstue:
Parkett på gulv, malte panelplater på vegger, plater i himling.
Bod:
Belegg på gulv, ukledde vegger, plater i himling.
Innredning: Hyller. Sikringsskap.
1. etasje.
Entré:
Flis på gulv, malte flater på vegger, malt flate i himling.
Gang:
Entré:
Flis på gulv, malte flater på vegger, malt flate i himling.
Innredning: Trapp.
Stue:
Parkett på gulv, tapet på vegger, plater i himling.
Kjøkken:
Flis på gulv, malt strie på vegger, flis mellom over og underskap, plater i himling.
Innredning: Kjøkkeninnredning med profilerte fronter, folierte skrog og benkeplater i stein. Ventilator. Integrert platetopp, stekeovn og mikrobølgeovn. Kran og avløp for oppvaskmaskin.
2. etasje.
Gang:
Parkett på gulv, malt strie på vegger, plater i himling.
Innredning: Trapp.
Bad:
Flis på gulv, flis på vegger, malt flate i himling.
Innredning: Dusjkabinett. Veggmontert WC.
Baderomsinnredning: 2 stk. servant med underskap og speil.
Soverom 1:
Heltregulv, malt tapet på vegger, plater i himling.
Innredning: Garderobeskap.
Soverom 2:
Belegg på gulv, malt strie på vegger, plater i himling.
Innredning: Garderobeskap.
Soverom 3:
Parkett på gulv, malt strie på vegger, plater i himling.
Innredning: Garderobeskap.
Informasjon hentet fra takstmann.
Oppvarming
Elektrisk og vedfyring.
Beliggenhet
Meget attraktiv og barnevennlig beliggenhet på Strindheim med nærhet til en rekke servicefunksjoner og god offentlig kommunikasjon.
Ikke langt fra boligen finnes:
- Valentinlyst Senter: Dagligvarebutikker, vinmonopol, bakeri, bank, apotek, treningssenter, gatekjøkken, blomsterbutikk m.m.
- Baldershage Senter: Rema 1000 (søndagsåpent), apotek og Prego restaurant.
- Plantasjen hagesenter (søndagsåpent).
- Esso bensinstasjon.
- Sirkus Shopping: En rekke butikker og serveringssteder. Holdeplass for flybuss.
- Leangen idrettspark og travbane.
- IKEA møbelgigant.
Boligen sokner til Strindheim barneskole og Blussuvold ungdomskole. Det er flere barnehager i nærområdet.
Tingsletta borettslag er ett populært borettslag med tilbaketrukken beliggenhet på Strindheim. Borettslaget består av 242 rekkehusleiligheter i Tingveien, Stallmesterveien og Fjøsmesterveien. Rekkehusene går over 3 plan, inkludert kjeller. Borettslaget er fra 1974, og tilsluttet Trondheim og Omegn Boligbyggelag.
Boligen har en sjeldent god beliggenhet i utkanten av borettslaget.
Borettslaget omfatter grøntarealer, internveier og lekeplasser. For den turglade er det kort vei til Estenstadsmarka. Her er stiene velbrukte og navn godt skiltet. Helårs turterreng, og flere turisthytter. Den mest kjente er Estenstadhytta fra 1958. Strindamarka/Estenstadmarka ligger mellom Jonsvatnet og Nidelva og er dermed et ypperlig turområde for beboere i Trondheimsregionen.
Adkomst
Følg Kong Øysteins vei fra Valentinlyst eller Fernanda Nissens veg fra Persaunet. Ved Esso-stasjonen tar man inn Bromstadekra i rundkjøringen. Tingvegen kommer på høyre side. Det vil bli skiltet i regi av EiendomsMegler 1 ved annonsert fellesvisning.
Parkeringsforhold
Tingsletta borettslag disponerer totalt 286 parkeringsplasser, fordelt på 242 boenheter.
Det ble i ekstraordinær Generalforsamling 20. juni 2023 vedtatt å rive dagens garasjer og erstatte disse med carporter. Etablering av nye carporter er nå startet, og forventes å ferdigstilles i løpet av våren 2024. Etter ferdigstillelse av prosjektet vil parkeringsplassene bli tildelt basert på påmelding og ansiennitet i borettslaget. Se mer info under punktet "Andre relevante opplysninger".
Foreløpig er det midlertidig parkering i området.
Adgang til utleie
Det gjøres oppmerksom på at det er begrenset adgang til å leie ut leiligheter i borettslag jfr. lov om borettslag §§ 5-5 og 5-6.
Radon
Det er ikke foretatt radonmålinger og bygget er heller ikke utført med radonsperre. Det er heller ikke krav om radonmålinger med mindre boligen skal leies ut.
Regulering
Eiendommen ligger i et område som er avsatt til nåværende tettbebyggelse, samt nåværende og fremtidig hovedturvei ihht. kommuneplanens arealdel.
Gjeldende reguleringer i område med plan-ID og plannavn er r1083i "Endring av reguleringsplanen for nordre del av Bromstad" vedtatt 10.07.1973. Hensikten med reguleringsplanen er b.la. boligformål.
Det gjøres oppmerksom på reguleringer under arbeid med plan-ID og plannavn:
- r20210021 "Fernanda Nissens veg og del av Kong Øysteins veg" og r20210022 "Bromstadvegen, strekningen Kong Øysteins veg - Tungasletta, og del av Bromstadekra"
Hensikten med planarbeidene er å legge til rette for en høystandard hovedrute, Bromstadruta , for gående og syklende på en ca. 3 km lang strekning fra Persaunet til Angelltrøa. Ruten starter i krysset Persaunvegen og Fernanda Nissens veg, går via rundkjøringer på Strindheim, videre langs Bromstadekra og Bromstadvegen, deretter videre mot Tungasletta og Angeltrøa. Planlagt sykkelveg med fortau vil i hovedsak gå langs det eksisterende gatenettet innenfor planområdet og gå både på kommunal og privat eiendom. Det gjøres oppmerksom på at dette kan føre til vegarbeid og byggestøy over en periode i området.
Det eksisterer et planforslag som berører eiendommen med plan-ID og plannavn:
- r20210022 Bromstadvegen, strekningen Kong Øysteins veg - Tungasletta, og del av Bromstadekra. Hensikten med planarbeidet er å legge til rette for et sammenhengende hovednett for sykkel, som gir god framkommelighet for syklister og gående, og som oppleves trygt og trafikksikkert for alle.
Kopi av situasjonskart, målebrev, reguleringsplaner m/bestemmelser etc. kan fås ved henvendelse til megler. Vi oppfordrer interessenter til å gjøre seg kjent med disse.
Ferdigattest
Det er utstedt ferdigattest for fasaderehabilitering av bolig den 19.08.1999.
Det foreligger brukstillatelse fra 17.12.1974.
Ferdigattest utstedes ikke lenger for tiltak som er omsøkt før 01.01.1998, jfr. plan- og bygningslovens §21-10, 5.ledd. Dette innebærer at byggverkene lovlig kan brukes og omsettes slik de opprinnelig ble godkjent, selv om det ikke foreligger ferdigattest.
Det foreligger godkjent søknad om tiltak for ny entré fra 11.09.2018.
Det foreligger ikke midlertidig brukstillatelse eller ferdigattest i Trondheim kommunes arkiv. I de tilfeller hvor midlertidig brukstillatelse ikke er innhentet for saker omsøkt før 01.01.1998 vil byggesaken ikke være korrekt avsluttet, og for å få en korrekt avslutning, så kan Trondheim kommune i medhold av plan- og bygningsloven pålegge eier å igangsette tiltak som leder til at midlertidig brukstillatelse/ferdigattest kan omsøkes og utstedes.
Beskrivelse (type bolig)
Andel rekkehus
Bygningsinformasjon / byggemåte
Bygningen, som er ett rekkehus, ble oppført i 1974 og er på 2 etasjer + kjeller og kaldloft.
Grunnmur er oppført i betong.
Etasjeskillere av tre.
Hovedkonstruksjonen over grunnmuren er oppført i tre.
Utvendige fasader er kledd med stående og liggende trekledning.
Saltakskonstruksjonen er tekket med steinbelagte metallplater.
Vinduer med koblet glass og 2- lags isolerglass.
Informasjon hentet fra takstmann.
Diverse
Tingsletta Borettslag har i 2019-2022 rørfornyet bunnledninger i alle rekkehusene. Nye lekeplasser ferdig i 2022. Piperehabilitering utført i 2022.
Borettslagets hjemmeside: http://www.tingsletta.no/
Regnskapet til borettslaget i utgangen av 2022:
Årsresultatet viser til et underskudd på kr -15.823.668,-
Disponible midler i slutten kr Kr 7.363.594,-
Det negative årsresultatet skyldes prosjektvedlikehold hvor det er utført arbeid i forhold til rørfornying, drenering, lekeplasser og pipevedlikehold.
Styret opplyser i årsmeldingen for 2022 at det også videre vil være et stort behov for vedlikehold i borettslaget, og at det vil kreve ytterligere lånopptak i de nærmeste årene. Økonomien er et viktig hensyn når vedlikehold og oppgraderinger planlegges i årene framover.
Det ble besluttet i Ekstraordinær Generalforsamling 20. juni 2023 at alle rekker skal males i nye farger, iht. forslaget utarbeidet av Koi fargestudio.
I 2023 starter man arbeidet i Tingvegen, hvor behovet er størst. Malere begynner på partallsiden og gjør så mye de rekker denne sesongen. Arbeidet fortsetter så tidlig som mulig våren 2024, og Tingvegen vil bli fullført i løpet av 2024. Deretter følger Fjøsmestervegen og Stallmestervegen i de påfølgende årene. Vedlikeholdsmaling av hele Tingvegen vil ha en kostnad på ca.8,5 millioner. Denne kostnaden kommer uansett om nye farger velges eller ikke. En eventuell merkostnad ved nye farger er dessverre ikke klar før utsending av denne innkallingen. Informasjon om kostnader vil bli lagt ut på hjemmesidene så fort de er klare, og vil også presenteres i selve generalforsamlingen.
Det ble i ekstraordinær Generalforsamling 20. juni 2023 vedtatt å rive dagens garasjer og erstatte disse med carporter (Alternativ 1). Dette krevde en økning i fellesgjelden, men lånene vil finansieres gjennom leieinntektene for parkering.
Etablering av nye carporter er nå startet, og forventes å ferdigstilles i løpet av våren 2024. Etter ferdigstillelse av prosjektet vil parkeringsplassene bli tildelt basert på påmelding og ansiennitet i borettslaget.
For fremdriftsplan og mer informasjon, se https://www.tingsletta.no/prosjekter/carportprosjektet/framdrift
Dyrehold: Andelseiere som holder husdyr må sørge for å ha full kontroll over dyret til enhver tid, og påse at dyret ikke sjenerer noen eller etterlater ekskrementer på borettslagets område. Borettslagets regler om utekatter skal respekteres.
Hvitevarer / tilbehør
Hvitevarene og brunevarer medfølger ikke i handelen med mindre det tydelig fremgår av salgsoppgaven. Integrerte hvitevarer medfølger og gir i den tilstand de har vært benyttet av selger. Det gis ingen garanti utover dette.
Taklamper som henger i ledning følger ikke handelen, dette gjelder lamper på stue, kjøkken og hovedsoverom.
Selger gjør oppmerksom på at lys under kjøkkenvifte er defekt.
Fellesgjeld og lånebetingelser
Total fellesgjeld
Gjeld kr 106 988 299,- pr. 11.03.24
Andel fellesgjeld
Gjeld kr 443 589,- pr. 11.03.24
Lånebetingelser
Spesifikasjon av lån:
Lånenummer: 90517318166, Handelsbanken
Annuitetslån, 2 terminer per år.
Rentesats per 11.03.2024: 5.52% pa.
Antall terminer til innfrielse: 46
Saldo per 11.03.2024: 19 488 299
Andel av saldo: 80 801
Første termin/første avdrag: 30.06.2022 ( siste termin 31.12.2046 )
Flytende rente
Lånet er delutbetalt. 10. mill utbetales senere høsten 22.
Lånenummer: 90517346135, Handelsbanken
Annuitetslån, 2 terminer per år.
Rentesats per 11.03.2024: 5.7% pa. Antall terminer til innfrielse: 50 Saldo per 11.03.2024: 87 500 000
Andel av saldo: 362 788
Neste termin: 30.06.2024Neste avdrag: 30.06.2025 ( siste termin 31.12.2048 )
Annuitetslån, flytende rente
Sikringsordning
Andelseiere er ansvarlig for å for å dekke borettslagets kostnader. Dette gjøres ved betaling av månedlige felleskostnader.
Hvis borettslaget lider tap som følge av at en andelseier ikke betaler sine felleskostnader, kan et eventuelt tap medføre at de andre andelseierne må betale høyere felleskostnader. Borettslaget har tegnet sikring, i henhold til borettslagsloven, mot denne type tap.
Leverandør av sikring:
Klare Finans AS.
Varighet av avtalen / oppsigelsesvilkår:
Gjensidig oppsigelsestid med 6 mnd skriftlig varsel.
Etter borettslagslovens bestemmelser skal vedtak om oppsigelse av sikringen gjøres av borettslagets generalforsamling. Sikringsselskapet kan til enhver tid si opp en avtale med sikringstaker dersom sikrede ikke oppfyller de krav som er stilt.
Mer info om sikringsordningen:
http://klarefinans.no/tjenester
Forkjøpsrett
Andelseier(e) kan kun eie en andel. Andelseier må selv bebo leiligheten. Kun fysiske personer kan eie andel. Stat, kommune, fylkeskommune m.fl. kan likevel eie andel eller andeler opp til 10% av andelene i borettslaget, der det er fem eller flere andeler. Det kan være fastsatt i vedtektene at stat, kommune, fylkeskommune, boligbyggelag, institusjon eller sammenslutning med samfunnsnyttig formål og dessuten arbeidsgiver som skal leie ut boligen til sine ansatte, kan eie opp til 20% av andelene i tillegg. Kjøper av andelen må godkjennes av borettslagets styre for at ervervet skal bli gyldig. Kjøper bærer selv risikoen for at godkjenning blir gitt og må videreselge boligen for egen regning og risiko dersom styret ikke godkjenner kjøper som ny andelseier.
Dersom borettslaget er tilknyttet et boligbyggelag, så er det ofte et krav fra boligbyggelagets side at kjøper må melde seg inn i boligbyggelaget før kjøper kan bli godkjent som ny andelseier i det aktuelle borettslaget. Det gjøres i den forbindelse oppmerksom på at det vil kunne påløpe et innmeldingsgebyr til boligbyggelaget, og de fleste boligbyggelagene krever at innmeldingsavgiften skal være innbetalt før godkjenningen blir gitt. Innmeldingsgebyret faktureres kjøper direkte.
Forkjøpsretten på boligen er ferdig forhåndsprøvd. Ta kontakt med megler for å få opplyst hvor mange som har meldt interesse.
Ligningsverdi (formuesverdi)
Primær formuesverdi kr 1 569 447,-
Sekundær formuesverdi kr 5 963 899,-
Formuesverdi årstall 2022
Skattemessig formuesverdi er oppgitt av Altinn. Verdien gjelder som primærbolig.
Boligselgerforsikring
Selgeren har kjøpt boligselgerforsikring hos Fremtind. Forsikringen dekker selgerens økonomiske ansvar hvis du oppdager feil eller mangler som omfattes av avhendingsloven. Forsikringen gjelder fra kjøpers overtagelse av eiendommen og varer i fem år. I tillegg dekker forsikringen perioden mellom budaksept og overtagelse begrenset til 12 måneder. Forsikringsdekningen er begrenset til salgssum, maksimalt 14 millioner kroner. For kombinasjonseiendommer gjelder forsikringen kun for boligdelen. Salgsdokumentasjon innhentes av forsikringsselskapet etter tinglysning.
Se nettsidene til Sparebank 1 for mer informasjon om hva forsikringen dekker og hvilke begrensninger som gjelder.
Selger opplyser om følgende i vedlagt egenerklæring:
1. Vet du om det er gjort arbeid på bad eller våtrom, enten av deg eller tidligere eiere?
Ja: Tidligere eier oppplyser om lekkasje fra bad ned til stue i 2018.
Håndtverker fra Polygon var inne å tørket etasjeskille før skifting av himling i stue.
Tidligere eier monterte dusjkabinett på bad samme år, 2018.
Arbeid utført av Polygon og ufaglært håndverker.
Arbeidet ble ferdigstilt i 2018.
3. Vet du om det er gjort endringer eller reparasjoner på tak, fasade, pipe/ildsted, terrasse, garasje, bod eller lignende, enten av deg eller tidligere eiere?
Ja: Ref. tidligere eiers opplsyninger: Borettslaget utført piperehablitering i 2022. Ny vedovn i 2022.
Faglært arbeid utført av Borettslaget. Arbeidet ble
ferdigstilt i 2022.
5. Vet du om det er gjort arbeid på det elektriske anlegget, enten av deg eller tidligere eiere?
Ja: Ref. tidligere eiers opplsyninger: Flytting og installering av nytt sikringsskap med automatisikringer, utført av Vintervoll 2018.
Faglært arbeid utført av Vintervoll. Arbeidet ble
ferdigstilt i 2018.
9. Vet du om boligen eller eiendommen har blitt endret eller bygget ut etter opprinnelig byggeår, enten av deg eller tidligere eiere?
Ja: Ref. tidligere eiers egenerklæringsskjema:
Utbygging av entre utført i 2018 av TGE bygg.
Byggegodkjent av kommunen 11.09.2018.
Faglært arbeid utført av TGE. Arbeidet ble
ferdigstilt i 2018.
12. Vet du om det er eller har vært feil på bad eller våtrom?
Ja: Ref. tidligere eiers egenerklæringsskjema:
Lekkasje på bad i 2018. Se tidligere beskrivelser.
21. Vet du om det er eller har vært feil på tilbehøret som følger med eiendommen?
Ja: Pakningen på oppvaskmaskinen var defekt ved overtakelse i 2023, dette ble utbedret av fagfolk på gjenværende garanti av hvitevaren.
24. Vet du om det finnes midlertidige brukstillatelser, manglende ferdigattester, eller andre endringer på eiendommen som ikke er godkjent?
Ja: Krav til høyde i kjelleretasje, ref. takstrapport.
28. Vet du om det finnes planer, vedtak eller forslag til vedtak som kan øke husleien/festeavgiften/fellesutgiftene/ fellesgjelden?
Ja: Styret opplyser om at det vil pågå jevnlig
vedlikehold de kommende 10 årene og opplyser
at de også kommer til å øke felleskostander de
neste årene. Ref. Tingsletta.no
Boligkjøperforsikring
EiendomsMegler 1 formidler Boligkjøperforsikring fra HELP Forsikring AS. Det er en rettshjelpsforsikring som gir trygghet og profesjonell juridisk hjelp dersom det oppdages uventede feil eller mangler de neste fem årene. Du kan ta kontakt med megler for å få informasjon om boligkjøperforsikring eller lese mer på help.no. Forsikringen tilbys kun til privatpersoner som kjøper eiendom til eget eller nærmeste families bruk, og det er en forutsetning at kjøpsavtalen reguleres av avhendingsloven. Ved kjøp av landbrukseiendom/ småbruk, er det kun forhold tilknyttet til våningshuset som omfattes av forsikringen. For nærmere detaljer henvises det til forsikringsvilkårene. Megler mottar tegningsprovisjon fra HELP.
Overtakelse
Overtakelse kan ikke finne sted før borettslaget har godkjent ny andelseier eller eventuelt er godkjent etter loven.
Salgsoppgaven beskriver vesentlig og lovpålagt informasjon om eiendommen
Se komplett salgsoppgaveNyttige lenker
Nærområdet
EiendomsMegler 1 Valentinlyst
Prisstatistikk
Tingvegen 6 B
på annonsen
prisantydning per kvadratmeter
Prisfordeling
Pris per m² ligger 7 661 kr under snittet for rekkehus i Trondheim Øst.
Grafen viser antall rekkehus solgt i Trondheim Øst siste året fordelt på pris per m² - totalt 209 rekkehus
Antall boliger
Kvadratmeterpris tilsvarer prisantydning pluss fellesgjeld per kvadratmeter (p-rom eller BRA-i). Prisene i grafen er avrundet til nærmeste 1000 kr.
Annonseinformasjon
| FINN-kode | 345613285 |
|---|---|
| Sist endret | 30. des. 2024 06:29 |
| Referanse | 34230340 |
Annonsene kan være mangelfulle i forhold til lovpålagt opplysningsplikt. Før bindende avtale inngås oppfordres interessenter til å innhente komplett informasjon fra meglerforetaket, selger eller utleier.


































