Bildegalleri

Ny selveiet bolig - Høyt og solrikt på Fagerholt - 3 soverom - Carport/bod - Stor balkong på 38 m² - Egen hage/uteareal
Prisantydning3 980 000 kr
Nøkkelinfo
- Boligtype
- Leilighet
- Eieform
- Eier (Selveier)
- Soverom
- 3
- Bruksareal
- 105 m²
- Etasje
- 2
- Byggeår
- 2023
- Energimerking
- B - Oransje
- Rom
- 4
- Tomt
- Eiet
Fasiliteter
Balkong/Terrasse
Barnevennlig
Bredbåndstilknytning
Garasje/P-plass
Golfbane
Hage
Kjæledyr tillatt
Offentlig vann/kloakk
Peis/Ildsted
Rolig
Utsikt
Bademulighet
Fiskemulighet
Turterreng
Balansert ventilasjon
Visning
Våre visninger har påmelding. Dette gjør vi for å kunne yte bedre service for våre kunder. Verdifullt for boligkjøper og for oss. Vi anbefaler at salgsoppgaven lastes ned digitalt før visning, og ring oss gjerne på forhånd for spørsmål om boligen. Passer ikke angitt tidspunkt, ta kontakt så finner vi en løsning. Skulle det mot formodning ikke være påmeldte til angitt visningstidspunkt vil ikke visning bli gjennomført.
VisningspåmeldingOm boligen
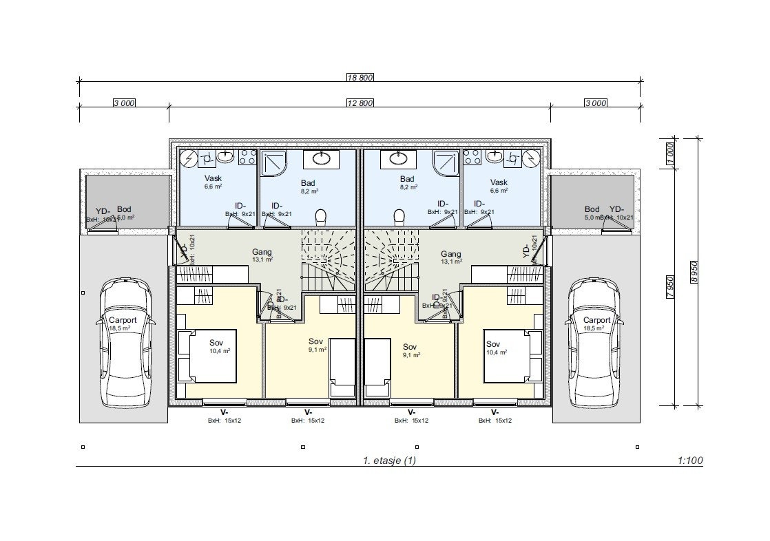
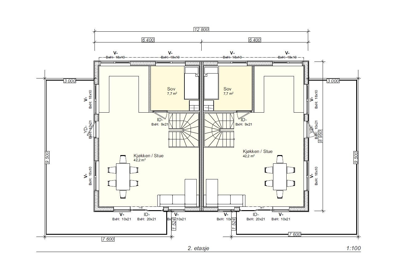
Flott beliggende på Fagerholt, i nytt tomtefelt ca. 9 km fra sentrum i ett stille og rolig område uten gjennomgangstrafikk. Feltet grenser til naturen med fjellpartier og skog og har flott utsikt ned til Iddefjorden. Det er kort avstand til barnehager, nye Kongeveien skole og Risum ungdomsskole, samt flere matbutikker. I området ligger også Fredriksten festning og golfbane på Risum. Feltet ligger solrikt til, med flotte tur og treningsmuligheter og med badeplasser rett på nedsiden. Boligene går over 2 plan og inneholder i 1. etasje gang med trapp, vaskerom, 2 soverom og bad/wc. 2 etasje inneholder 1 soverom og romslig stue og kjøkken i åpen løsning med utgang til balkong på ca. 38 kvm. Utvendig sportsbod på 5 kvm og carport på 18,5 kvm.
NB: Knappen for å vise hele beskrivelsen har kun en visuell effekt.
NB: Knappen for å vise hele beskrivelsen har kun en visuell effekt.
Salgsoppgaven beskriver vesentlig og lovpålagt informasjon om eiendommen
Se komplett salgsoppgaveNyttige lenker
Nærområdet
DNB Eiendom Halden
Fra hjem til hjem
Annonseinformasjon
| FINN-kode | 345588091 |
|---|---|
| Sist endret | 25. nov. 2025 08:52 |
| Referanse | 290220302 |
Annonsene kan være mangelfulle i forhold til lovpålagt opplysningsplikt. Før bindende avtale inngås oppfordres interessenter til å innhente komplett informasjon fra meglerforetaket, selger eller utleier.







































