Bildegalleri

EiendomsMegler 1 v/ Gabrielle Moen Remøy har gleden av å presentere Nørvågvegen 52!
Inaktiv
Fosnavåg sentrum
NY PRIS! Enebolig m/ mulighet for utleie | Stor & flott tomt | Sjøutsikt & gode solforhold | Mulighet for båtplass* |
Prisantydning2 750 000 kr
Nøkkelinfo
- Boligtype
- Enebolig
- Eieform
- Eier (Selveier)
- Soverom
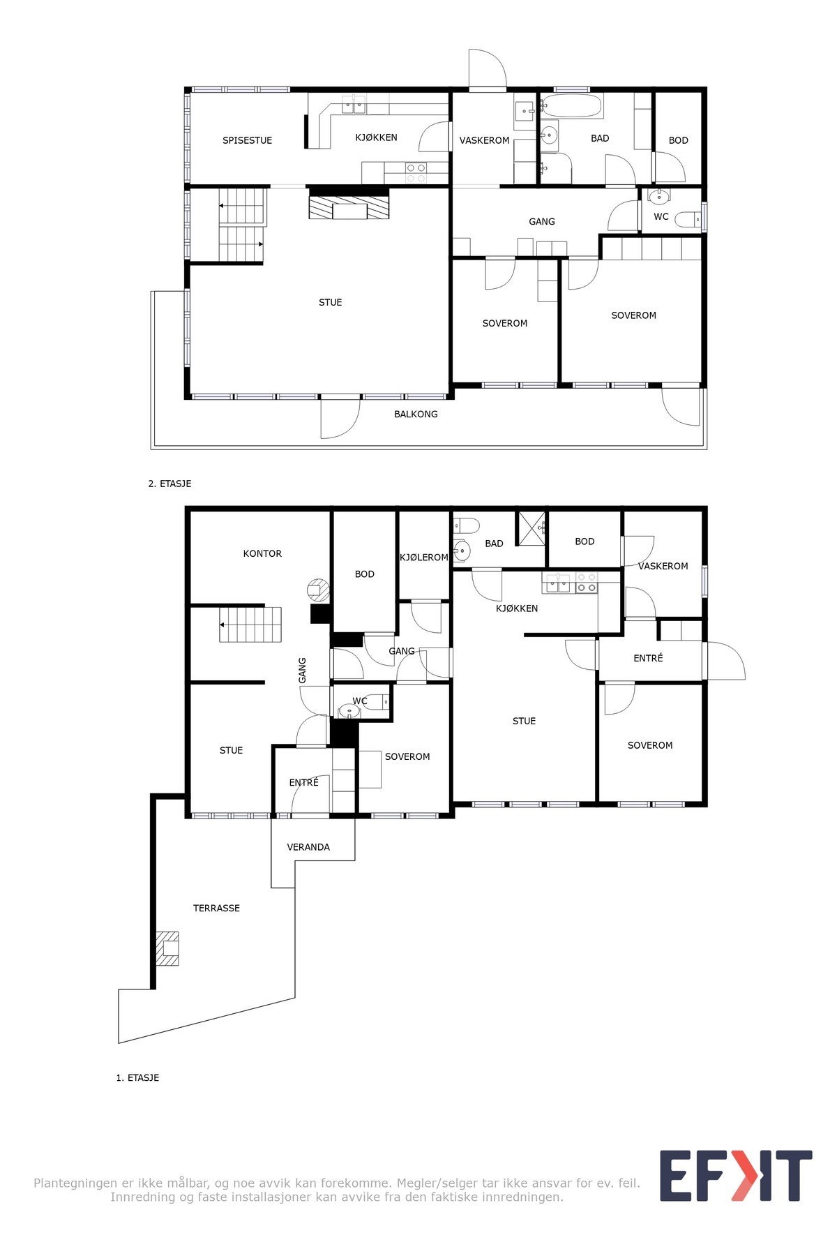
- 4
- Internt bruksareal
- 218 m² (BRA-i)
- Bruksareal
- 256 m²
- Eksternt bruksareal
- 38 m² (BRA-e)
- Balkong/Terrasse
- 95 m² (TBA)
- Byggeår
- 1975
- Energimerking
- G - Rød
- Rom
- 6
- Tomteareal
- 2 200 m² (eiet)
Fasiliteter
Barnevennlig
Balkong/Terrasse
Fiskemulighet
Peis/Ildsted
Turterreng
Utsikt
Sentralt
Rolig
Om boligen
Flott eiendom, med stor opparbeidet hage - like ved Fosnavåg sentrum - bestående av et bolighus, uthus og tomt på over 2 mål. Tomten er flott opparbeidet med prydbusker, planter, trær og blomstrer. Boligen har en unik plassering - på et høydedrag - og en fantastisk utsikt over fjorden og solnedgangen.
Boligen er oppført i 1975 og fremstår som velholdt, men noe oppgradering må påregnes. Boligen ble opprinnelig bygget med en utleiedel, det er i dag åpnet opp mellom utleiedel og hoveddel, men man kan med enkle grep gjøre dette om om man ønsker. Forslag til hvordan vei opp til huset kan gå ligger vedlagt blant bildene.
Kort avstand til Fosnavåg sentrum med alt av servicetilbud - også til fots via gangbrua ytterst på Vågsholmen. Barnehager, skoler i alle trinn og Bergsøy idrettsarena har man også innenfor kort radius.
Boligen er oppført i 1975 og fremstår som velholdt, men noe oppgradering må påregnes. Boligen ble opprinnelig bygget med en utleiedel, det er i dag åpnet opp mellom utleiedel og hoveddel, men man kan med enkle grep gjøre dette om om man ønsker. Forslag til hvordan vei opp til huset kan gå ligger vedlagt blant bildene.
Kort avstand til Fosnavåg sentrum med alt av servicetilbud - også til fots via gangbrua ytterst på Vågsholmen. Barnehager, skoler i alle trinn og Bergsøy idrettsarena har man også innenfor kort radius.
- Flott opparbeidet tomt.
- Nydelig utsikt.
- 4 soverom og 3 stuer.
- Barnevennlig område.
Velkommen til visning!
NB: Knappen for å vise hele beskrivelsen har kun en visuell effekt.
NB: Knappen for å vise hele beskrivelsen har kun en visuell effekt.
Salgsoppgaven beskriver vesentlig og lovpålagt informasjon om eiendommen
Se komplett salgsoppgaveNyttige lenker
Nærområdet
EiendomsMegler 1 Søre Sunnmøre
Vi loser deg trygt gjennom hele boligsalget
Annonseinformasjon
| FINN-kode | 345366024 |
|---|---|
| Sist endret | 03. nov. 2025 10:48 |
| Referanse | 22240012 |
Annonsene kan være mangelfulle i forhold til lovpålagt opplysningsplikt. Før bindende avtale inngås oppfordres interessenter til å innhente komplett informasjon fra meglerforetaket, selger eller utleier.


































