Bildegalleri

Velkommen til Eikelikollen 29!
Solgt
Dunihagen/Sande
Lys og innbydende halvpart av vertikaldelt 2-mannsbolig med 2 etasjer. 2 plattinger. Garasje. Nær Sande sentrum.
Prisantydning4 290 000 kr
Nøkkelinfo
- Boligtype
- Tomannsbolig
- Eieform
- Eier (Selveier)
- Soverom
- 3
- Internt bruksareal
- 110 m² (BRA-i)
- Bruksareal
- 137 m²
- Eksternt bruksareal
- 27 m² (BRA-e)
- Etasje
- 2
- Byggeår
- 2009
- Energimerking
- C - Rød
- Rom
- 5
- Tomteareal
- 446 m² (eiet)
Fasiliteter
Balkong/Terrasse
Barnevennlig
Garasje/P-plass
Hage
Kjæledyr tillatt
Offentlig vann/kloakk
Peis/Ildsted
Rolig
Utsikt
Turterreng
Om boligen
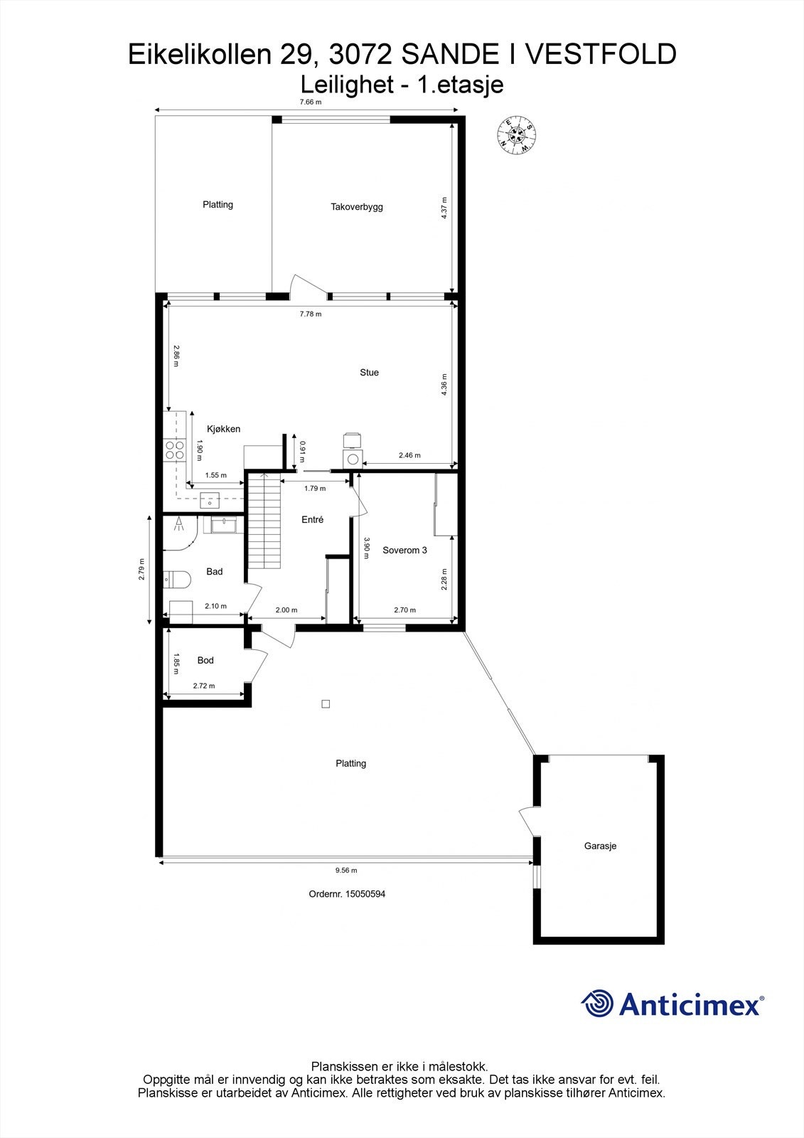
Lys og innbydende halvpart av vertikaldelt 2-mannsbolig med 2 etasjer.
- Åpen kjøkken- og stueløsning med varmepumpe samt peis
- Profilert Sigdal kjøkken med integrerte hvitevarer
- Flislagt bad med dusjhjørne og gulvvarme
- Hyggelig loftstue i 2. etasje
- Boligen har sentralstøvsuger
- Sørøstvendt platting på ca. 34 kvm v/stuen
- Nordvestvendt platting på ca. 47 kvm v/inngangspartiet
- Parkering i frittstående garasje på ca. 21 kvm
- Eiendommen er en fin beliggenhet i landlige omgivelser
- Beliggende i blindvei uten gjennomgangstrafikk
- Gangavstand til bussholdeplass med forbindelser til Drammen og Svelvik
- Ca. 5 min kjøreavstand til Sande sentrum med barnehage, skoler, flere servicetilbud og togstasjon
Velkommen til visning!
NB: Knappen for å vise hele beskrivelsen har kun en visuell effekt.
NB: Knappen for å vise hele beskrivelsen har kun en visuell effekt.
Salgsoppgaven beskriver vesentlig og lovpålagt informasjon om eiendommen
Se komplett salgsoppgaveNyttige lenker
Nærområdet
Krogsveen Drammen
Velkommen til en enklere boligreise.
Prisstatistikk
Eikelikollen 29
4 012 klikk
på annonsen
39 000 kr
prisantydning per kvadratmeter
Prisfordeling
Pris per m² ligger 0 kr under snittet for tomannsboliger i Holmestrand.
Grafen viser antall tomannsboliger solgt i Holmestrand siste året fordelt på pris per m² - totalt 30 tomannsboliger
Antall boliger
Kvadratmeterpris tilsvarer prisantydning pluss fellesgjeld per kvadratmeter (p-rom eller BRA-i). Prisene i grafen er avrundet til nærmeste 1000 kr.
Annonseinformasjon
| FINN-kode | 343473865 |
|---|---|
| Sist endret | 26. aug. 2024 14:43 |
| Referanse | KR20.23384 |
Annonsene kan være mangelfulle i forhold til lovpålagt opplysningsplikt. Før bindende avtale inngås oppfordres interessenter til å innhente komplett informasjon fra meglerforetaket, selger eller utleier.



































