Bildegalleri

Eiendommen er beliggende på nedsiden av - og godt skjermet fra Nordbyveien
Åskollen
Pen og romslig enebolig. 3 (5) soverom. Stor stue. 2 bad. Lun og stor terrasse med fjordutsikt. Garasje med el-billader.
Prisantydning7 200 000 kr
Nøkkelinfo
- Boligtype
- Enebolig
- Eieform
- Eier (Selveier)
- Soverom
- 3
- Internt bruksareal
- 208 m² (BRA-i)
- Bruksareal
- 246 m²
- Eksternt bruksareal
- 38 m² (BRA-e)
- Balkong/Terrasse
- 64 m² (TBA)
- Etasje
- 2
- Byggeår
- 1986
- Energimerking
- F - Rød
- Rom
- 5
- Tomteareal
- 616 m² (eiet)
Fasiliteter
Balkong/Terrasse
Barnevennlig
Bredbåndstilknytning
Garasje/P-plass
Hage
Kjæledyr tillatt
Kabel-TV
Offentlig vann/kloakk
Parkett
Peis/Ildsted
Rolig
Utsikt
Lademulighet
Visning
Privatvisninger avholdes fortløpende. Trykk på "Visningspåmelding" eller kontakt megler på telefon/epost for å avtale dag/klokkeslett for privatvisning.
VisningspåmeldingOm boligen
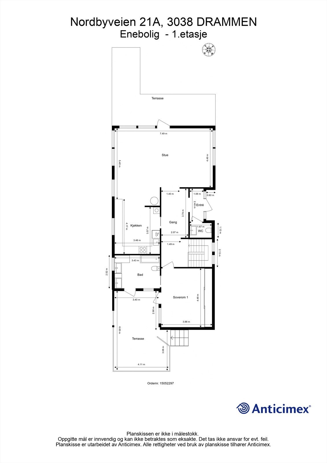
Pen og romslig enebolig med 2 etasjer.
- Åpen kjøkken- og stueløsning med peis i 1. etg samt stue med peis i u. etg
- 3 soverom, muligheter for 5 soverom
- Pen profilert Epoq kjøkkeninnredning fra 2011 med integrerte hvitevarer
- Romslig flislagt bad i 1. etg fra 2011 med badekar og gulvvarme
- Flislagt bad i u. etg med dusjnisje og gulvvarme
- Lun og stor sydøstvendt terrasse med flott fjordutsikt
- Delvis overbygget nordvest-/østvendt terrasse på ca. 23 kvm
- Parkering i garasje med el-billader (integrert med nabogarasjer)
- Eiendommen er beliggende på nedsiden av - og godt skjermet fra Nordbyveien
- Barnevennlig tomt med flott fjordutsikt
- Veldig god bussforbindelse med umiddelbar nærhet til bussholdeplass
NB: Knappen for å vise hele beskrivelsen har kun en visuell effekt.
NB: Knappen for å vise hele beskrivelsen har kun en visuell effekt.
Salgsoppgaven beskriver vesentlig og lovpålagt informasjon om eiendommen
Se komplett salgsoppgaveNyttige lenker
Nærområdet
Krogsveen Drammen
Verdien av en god megler.
Annonseinformasjon
| FINN-kode | 343291772 |
|---|---|
| Sist endret | 15. feb. 2026 21:07 |
| Referanse | KR20.242 |
Annonsene kan være mangelfulle i forhold til lovpålagt opplysningsplikt. Før bindende avtale inngås oppfordres interessenter til å innhente komplett informasjon fra meglerforetaket, selger eller utleier.
































