Bildegalleri

Solgt
St. Hanshaugen / Sentrum
BUD MOTTATT - Lun og koselig 2-roms eierseksjon | Sentrumsnært | Ny drenering 2020 | God planløsning | Perfekt førstegan
Prisantydning2 240 000 kr
Nøkkelinfo
- Boligtype
- Leilighet
- Eieform
- Eier (Selveier)
- Soverom
- 1
- Internt bruksareal
- 35 m² (BRA-i)
- Bruksareal
- 37 m²
- Eksternt bruksareal
- 2 m² (BRA-e)
- Etasje
- 1
- Byggeår
- 1902
- Energimerking
- G - Rød
- Rom
- 2
- Tomteareal
- 210 m² (eiet)
Fasiliteter
Bredbåndstilknytning
Kjæledyr tillatt
Kabel-TV
Offentlig vann/kloakk
Sentralt
Utsikt
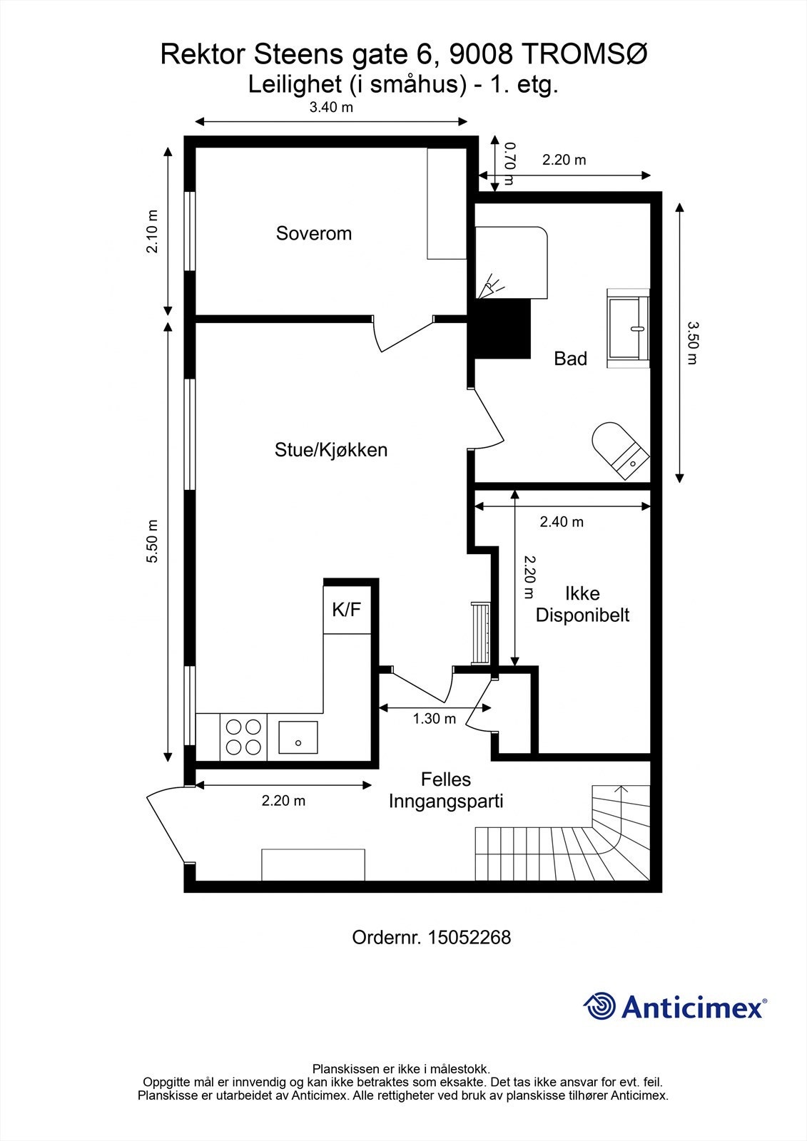
Om boligen
Arealeffektiv 2 roms eierseksjon beliggende på St. Hanshaugen i forlengelsen av sentrum.
Leiligheten er oppgradert over tid og fremstår som innbydende og hyggelig med fin bokomfort.
Badet er stort, og er flislagt på gulv med gulvvarme. Nyere innredning med god plass i skuffer og heldekkende servant. Uttak for vaskemaskin.
Kjøkkenet har rikelig med lagringsplass og god benkeplass for matlaging og baking. Plass til kjøkkenbord. Kitchenboard over benk.
Gulvvarme i alle gulv.
Lagring i bod i fellesgang (selger oppbevarer også EL sykkel i felles gang) samt utebod i bakgården på ca 1,5 kvm.
Felles platting bak som benyttes av sameiet.
Dreneringen ble byttet av sameiet i 2020. Seksjonert i 2017.
Leiligheten er oppgradert over tid og fremstår som innbydende og hyggelig med fin bokomfort.
Badet er stort, og er flislagt på gulv med gulvvarme. Nyere innredning med god plass i skuffer og heldekkende servant. Uttak for vaskemaskin.
Kjøkkenet har rikelig med lagringsplass og god benkeplass for matlaging og baking. Plass til kjøkkenbord. Kitchenboard over benk.
Gulvvarme i alle gulv.
Lagring i bod i fellesgang (selger oppbevarer også EL sykkel i felles gang) samt utebod i bakgården på ca 1,5 kvm.
Felles platting bak som benyttes av sameiet.
Dreneringen ble byttet av sameiet i 2020. Seksjonert i 2017.
NB: Knappen for å vise hele beskrivelsen har kun en visuell effekt.
NB: Knappen for å vise hele beskrivelsen har kun en visuell effekt.
Salgsoppgaven beskriver vesentlig og lovpålagt informasjon om eiendommen
Se komplett salgsoppgaveNærområdet
Hjem Eiendomsmegling
Prisstatistikk
Rektor Steens gate 6
13 264 klikk
på annonsen
64 000 kr
prisantydning per kvadratmeter
Prisfordeling
Pris per m² ligger 9 000 kr under snittet for leiligheter i Tromsøya, Midten.
Grafen viser antall leiligheter solgt i Tromsøya, Midten siste året fordelt på pris per m² - totalt 416 leiligheter
Antall boliger
Kvadratmeterpris tilsvarer prisantydning pluss fellesgjeld per kvadratmeter (p-rom eller BRA-i). Prisene i grafen er avrundet til nærmeste 1000 kr.
Annonseinformasjon
| FINN-kode | 343241842 |
|---|---|
| Sist endret | 20. des. 2024 19:54 |
| Referanse | 1-0022/24 |
Annonsene kan være mangelfulle i forhold til lovpålagt opplysningsplikt. Før bindende avtale inngås oppfordres interessenter til å innhente komplett informasjon fra meglerforetaket, selger eller utleier.






















