Bildegalleri

Fantastisk landbrukseiendom med stor, velholdt bygningsmasse. Våningshus på over 700 kvm. Lang strandlinje mot Glomma.
Nøkkelinfo
- Boligtype
- Gårdsbruk/Småbruk
- Eieform
- Eier (Selveier)
- Primærrom
- 631 m²
- Bruksareal
- 743 m²
- Byggeår
- 1880
- Energimerking
- G - Rød
- Tomteareal
- 6 246 000 m² (eiet)
- Boligselgerforsikring
- Ja
Velkommen
Velkommen til Vesterhaug!
Vesterhaug er en fantastisk landbrukseiendom med stor bygningsmasse. Beliggenheten ned mot Glomma er idyllisk og i egne skoger er det flotte turmuligheter og flere vann. Våningshuset har et bruksareal på hele 743 kvm, fordelt over to etasjer, loft og kjeller.
Byggets herskapspreg stammer tilbake fra byggeåret 1880, men boligen er både ombygd og modernisert i senere tid. Eiendommen har tidligere vært benyttet som gjestegård og selskapslokaler, samt utleie av badeanlegg/spa. Våningshuset har ikke mindre enn 11 soverom, sovesal, fem bad, flere stuer, vinkjeller, kjølerom og mye mer.
På gårdstunet er det også kårbolig og tre garasjer med til sammen syv biloppstillingsplasser. I tillegg til nevnte bygg er det driftsbygning, to redskapshus, uthus og to stabbur, samt lysthus, fyrhus, drengestue, verksted/slakteri og saghus. Det medfølger også et bolighus samt koier og jakthytter. Gården har også ridebane og tennisbane med internasjonale mål med kunst gress.
Eiendommen er innholdsrik og byr på mange muligheter for drift. Skog og jord er i god hevd og har gode driftsforhold.
Beliggenhet
Eiendommen har en landlig beliggenhet med grense til Glomma, bare 6,5 km syd for Elverum og ca. 4 km nord for Heradsbygd. Her bor man tett på flott natur og fine turmuligheter, samtidig som det er kort vei til det som trengs av fasiliteter og servicetilbud.
Glomma byr på gode muligheter for både fiske og turer med båt. Om sommeren, når vannstanden er lav, dukker også den herlige sandstranda Løkenstranda opp som en øy i Glomma. Løkenstranda er en av Elverums mest populære badeplasser, og har dessuten flotte muligheter for sandvolleyball.
Sør i Heradsbygda ligger Jømna/Heradsbygd skistadion og fotballbane. Fra førstnevnte kan man følge oppkjørt lysløype mot Svartholtet, og videre inn til Svenkerudvollen, der det er servering i skisesongen. Det er også fine skogsområder som gir gode turmuligheter like ved eiendommen.
Av severdigheter og kulturelle tilbud kan Norsk Skogmuseum og Glomdalsmuseet anbefales. Museene er knyttet sammen med bru over elva, og er bare en liten kjøretur fra eiendommen. Her kan hele familien glede seg over spennende utstillinger og flotte uteområder, som byr på mye moro for liten og stor.
Servicetilbud:
I Elverum sentrum ligger Kremmertorget og Amfi i hver sin ende av Storgata. Gåturen mellom de to sentrene tar deg gjennom hjertet av sentrum, som har et godt utvalg av butikker, restauranter og utesteder.
Det er ikke busstilbud forbi gården, men over elva er det bussavganger mot Elverum, Flisa og Kongsvinger. I Elverum er det også togstasjon. Med bil tar det ca. 10 min til Elverum sentrum, 30 min til Hamar, 1 time og 20 min til Gardermoen og ca. 2 timer til Oslo.
Fra eiendommen er det skolebussordning til Lillemoen barneskole i Heradsbygd. Det er også skolebussordning for ungdomsskoleelever til Elverum ungdomsskole. Elverum videregående skole ligger i sentrum, og kommunen har et godt utvalg av barnehager.
Adkomst
Se kart.
Jord, skog og tun
Eiendommen er relativt flat og er opparbeidet med hageareal flere steder, med plen og diverse beplantninger. Gårdsplassen foran hovedhuset er gruset, og det er en stor, overbygd veranda i forbindelse med hovedinngangen. Verandaen er flislagt og har markise. På andre siden av huset er det utgang fra stuen til en tilsvarende veranda, med trapp ned til terreng.
Fra soverom i andre etasje er det utgang til verandaer på begge sider av huset. Foran vinduer på loftet er det luftebalkonger.
I tillegg til den store herskapsboligen er det oppført kårbolig, tre garasjer, driftsbygning, to redskapshus, uthus og to stabbur. Videre er det lysthus, fyrhus, drengestue, verksted/slakteri og saghus. Det medfølger også to bolighus og en eldre driftsbygning utenfor tunet, samt koier og jakthytter.
Eiendommens arealer:
Fulldyrket jord daa 538,4
Innmarksbeite daa 6,3
Skog av høy bonitet daa 1 535,2
Skog av middels bonitet daa 3 346,1
Skog av lav bonitet daa 534,4
Uproduktiv skog daa 115,2
Myr daa 54,7
Åpen jorddekt fastmark daa 13,8
Åpen grunnlendt fastmark daa 4,9
Bebygd, vann, bre daa 97,7
Sum arealer: daa 6 246,6
Arealer er hentet fra NIBIO Gårdskart.
Dyrket mark er beliggende i nærhet til tunet fordelt på flere teiger beliggende hovedsakelig langs elva. Det er vanning med nedgravde hydranter og pumper som drives av elektrisitet og traktor. Jorda er opplyst å være i god hevd, Fulgt med blant annet jordprøver/kalking. Bortleid til blant annet potetproduksjon. Det er leiekontrakt på dyrket mark ut 2026. Det er areal på eiendommen som potensielt kan dyrkes - må undersøkes med myndighetene.
Skogen er beliggende som forlengelse av dyrket mark mot vest og sør. Skogen er fordelt på flere teiger og driftsforholdene ansees som gode. Det er god adkomst for å få ut tømmer med tilgang på flere skogsbilveier med de rettigheter og plikter som der medfølger.
Opplyst av eier:
Treslagsfordeling:
Gran - 37%
Furu - 58%
Lauvskog - 5%
Bonitetsfordeling:
Høy (17 og høyere) - 56%
Middels (11 og 14) 43%
Lav 8 og lavere) 1%
Det er skog i hogstklasse 3, 4 og 5 og det er tømmer å ta ut p.t.
Årlig tilvekst og produksjonsevne er iht, til plan ca. 2 900m³.
Stående masser er opplyst å være omtrentlig. 65 000m³ korrigert for tilvekst og uttak. Tallet kan avvike.
Jakt
Det er jaktrett på elg, hjort og rådyr. Eiendommen har jakt-tårn og jakthytte.
Innhold og standard
Eiendommen er svært innholdsrik og har en flott velhold bygningsmasse. Den inneholder: Våningshus, kårbolig, 3 garasjer, driftsbygning, 2 redskapshus, uthus, 2 stabbur, lysthus, fyrhus, drenegstue, verksted/slakteri og saghus. I tillegg er det et medfølgende bollighus samt koier og jakthytter.
Hovedbolig/våningshus:
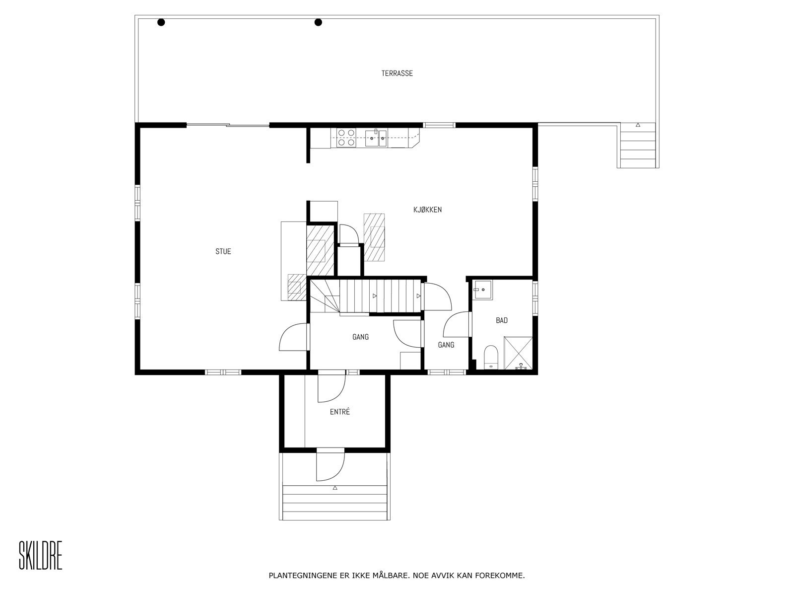
1. etasje: Vindfang, hall m/trapp, wc, bad/wc, kjøkkeninngang, gang/garderobe, gang, safe, bod/kott, 2 soverom, kontor, kjøkken, stue, spisestue og bibliotek.
2. etasje: Trappegang, 2 bad/wc, kjøkken, vaskerom, sal, bod/kott og 5 soverom.
Loft: Trappegang, ganger, kott/boder, 2 bad/wc, 4 soverom og sovesal.
Kjeller: Trapperom, vinkjeller, kjøttforedlingsrom, vaskekjeller, kjølerom og teknisk rom.
Våningshuset er fra 1880 og har vært gjenstand for ombygging/modernisering i senere tid. De ulike rommene har i all hovedsak panel eller tapet på veggene. Gulv varierer med parkett, heltre, fliser og teppebelegg. Utvendig kledning er malt i 2023.
Entré: I tilknytning til inngangspartiet er det en overbygd veranda med støpt, flislagt gulv og plass til møblement på hver side av inngangsdøren. I takutstikk er det montert en bred markise. Boligen har også egen kjøkkeninngang, med murt trapp.
Kjøkken: Kjøkkeninnredning har profilerte fronter og laminert benkeplate. Rundt kjøkkenvasken er benkeplaten flislagt. Innredningen har integrert koketopp, kjøleskap, stekeovn og oppvaskmaskin. Over kjøkkenbenken er det fliser og belysning, og over kokesonen er det ventilator.
Stuer: Boligen har mange stuer. I første etasje er det stue, spisestue og et bibliotek. I andre etasje er det en romslig sal, med plass til mange mennesker.
Bad/wc/vaskerom: Boligen har fem bad, samt et toalettrom, vaskerom og vaskekjeller. Toalettrommet ligger i første etasje og har fliser på gulvet, panel på veggene, gulvmontert toalett og søyleservant. Badet i første etasje har belegg på gulv og vegger, med varme i gulvet. Rommet er utstyrt med vegghengt toalett, dusjhjørne med glassvegger og baderomsinnredning med servant, speil og belysning.
Bad i 2. etasje: I andre etasje har boligen to bad med toalett, flislagte overflater, varme i gulvet og trepanel i taket. Det ene badet har dusjnisje med glassvegger, profilert baderomsinnredning med heldekkende servant og speil med tilhørende belysning.
Det andre badet har dusjhjørne med glassvegger, badekar og bidé, samt baderomsinnredning med profilerte fronter og heldekkende dobbelservant. Over servantene er det speil med belysning.
Bad i loftsetasjen: Boligen har også to bad med gulvvarme i loftsetasjen. Badene har belegg på gulv og vegger, og trepanel i taket. Videre har begge bad gulvmontert toalett, dusjnisje med glassvegger og profilert baderomsinnredning med heldekkende servant og speil med tilhørende belysning.
Soverom og garderobe: Boligen har tidligere vært benyttet som gjestegård og har 11 soverom og en sovesal. To soverom ligger i første etasje, fem ligger i andre etasje og fire på loftet. Rom over sal og et soverom på loft er ikke godkjent for varig opphold.
Oppvarming - Teknisk: Oppvarming består av vedfyring og strøm, samt fjernvarme fra gårdens flisfyringsanlegg. Det er vannbåren varme i gulv og radiatorer. Forbruksvann varmes også delvis opp av dette, med unntak av loftet som har egen bereder på 200 liter. En oljefyr med bioolje er koblet sammen med flisfyr. Boligen har flere sikringsskap med automatsikringer. Det er installert balansert ventilasjonsanlegg. Eiendommen har privat vann og avløp.
Kårbolig:
1. etasje: Vindfang, hall m/trapp, gang, bad/wc/vaskerom, kjøkken og stue.
Loft: Trappegang og 2 soverom.
Kjeller: Toalettrom og boder/uinnredet kjeller.
Kårboligen er fra 1920-tallet og ombygd/modernisert i senere tid. Rommene har i all hovedsak heltre gulv og panel på vegger og i tak. Ved boligens overbygde inngangsparti er det steinlagt. Utenfor stuen er det en dels overbygd veranda med trapp til terreng.
Kjøkken: Kjøkkenet har innredning fra Sivesind med profilerte fronter og heltre benkeplate med oppvaskkum. Det er fliser og belysning over benken. I innredningen er det integrert koketopp, stekeovn, kjøleskap og oppvaskmaskin. Kjøkkenventilator er montert.
Bad/wc/vaskerom: Boligen har bad i første etasje og toalettrom i kjelleren. Toalettrommet har servant, dusjkabinett og gulvmontert toalett.
Badet har fliser på gulv med varmekabler, våtromsplater på veggene og panel i taket. Det er mekanisk avtrekk i yttervegg og opplegg for vaskemaskin. Ellers har badet gulvmontert toalett, dusjkabinett og baderomsinnredning med glatte fronter og heldekkende servant, og speil med belysning.
Oppvarming - Teknisk: Oppvarming er med vedfyring og strøm, samt fjernvarme fra gårdens flisfyringsanlegg. Sikringsskapet har automatsikringer. Det elektriske anlegget er i hovedsak åpent. Fra bad og kjøkken er det mekanisk avtrekk. Boligen har 200 liters varmtvannsbereder.
Bygningers arealer
Informasjon om arealbegrepene
Fra og med 1. januar 2024 er det innført nye arealkrav, arealbegrep og måleprinsipper for bygninger gjennom NS 3940:2023. Det innebærer bl.a. at tidligere begrep som p-rom (primærrom) og s-rom (sekundærrom) ikke lenger blir benyttet. De nye arealbegrepene for bolig er:
BRA-i (Internt bruksareal) er areal innenfor omsluttende vegger. Det er for eksempel stue, soverom, kjøkken, entré, bad, innvendig bod og rom for kommunikasjon mellom disse. Dersom boligen består av en bruksenhet
BRA-e (Eksternt bruksareal) er for eksempel en ekstern bod, kjellerstue med egen inngang, gjesterom, tilleggsbygg eller andre rom som tilhører boenheten, men som ikke er direkte tilknyttet det interne arealet. Tilleggsbygg kan være for eksempel garasje, naust eller utvendig bod.
BRA-b (Innglasset balkong) er innglassede balkonger, verandaer og altaner som tilhører boenheten.
TBA (Terrasse- og balkongareal) er arealet av terrasser, altaner, verandaer og åpne balkonger som er tilknyttet boenheten.
GUA (Gulvareal) og ALH (Areal med lav takhøyde) kan opplyses om dersom det er aktuelt for den spesifikke boligen. GUA og ALH skal bare oppgis sammen med BRA for å forhindre uklarhet om hva som er boligens bruksareal.
Boligens bruksareal (BRA) utgjør totalt arealene for BRA-i, BRA-e og BRA-b, dvs.:
BRA-i + BRA-e + BRA-b = BRA.
Arealer for andre bygningstyper som ikke er bolig/fritidsbolig, f.eks. landbruksbygninger, opplyses som BRA (Bruksareal), og/eller BTA (Bruttoareal/Grunnflate).
Ta kontakt med ansvarlig megler dersom det skulle være spørsmål knyttet til arealbegrepene.
Oppvarming, piper og ildsteder
Våningshus:
Oppvarming - Teknisk: Oppvarming består av vedfyring og strøm, samt fjernvarme fra gårdens flisfyringsanlegg. Det er vannbåren varme i gulv og radiatorer. Forbruksvann varmes også delvis opp av dette, med unntak av loftet som har egen bereder på 200 liter. En oljefyr med bioolje er koblet sammen med flisfyr. Boligen har flere sikringsskap med automatsikringer. Det er installert balansert ventilasjonsanlegg. Eiendommen har privat vann og avløp.
Kårbolig:
Oppvarming - Teknisk: Oppvarming er med vedfyring og strøm, samt fjernvarme fra gårdens flisfyringsanlegg. Sikringsskapet har automatsikringer. Det elektriske anlegget er i hovedsak åpent. Fra bad og kjøkken er det mekanisk avtrekk. Boligen har 200 liters varmtvannsbereder.
Reguleringsforhold
Eiendommen ligger i LNFR-området.
Odel - Konsesjon
Det er konsesjonsplikt i henhold til konsesjonsloven. Det er kjøpers risiko og kostnad å oppnå konsesjon. Utfyllende informasjon om konsesjonsrisikoen står beskrevet i salgsoppgaven.
Det er ikke opparbeidet odel på eiendommen.
Boligkjøperforsikring
Det gjøres oppmerksom på at kjøper har anledning til å tegne boligkjøperforsikring. Forsikringen gir kjøper bistand etter avhendingsloven og dekker all advokatbistand, skadetakster og utgifter til rettsapparatet. Forsikringen tegnes senest på kontraktsmøtet. Les mer om forsikringen i salgsoppgaven.
Oppgjør
Kjøpesum og kjøpers omkostninger, samt pantedokument tilknyttet eventuelt lån, skal være innbetalt til eiendomsmeglers klientkonto senest dagen før avtalt overtakelse. Hvis kjøper ikke ønsker en hjemmelsoverføring av eiendommen til seg, må det tas forbehold om dette i budet
Tilbud om lånefinansiering og forsikringer
Landkreditt Bank kan gi deg lånetilbud til finansiering av eiendommen. Våre meglere kan opprette kontakt mellom deg og en kunderådgiver i banken og som kunde hos oss lover banken en hurtig behandling av din låneforespørsel. Landkreditt Forsikring kan gi deg forsikringstilbud på eiendommen du velger å kjøpe. Samler du flere forsikringer hos Landkreditt Forsikring, kan du få inntil 23% rabatt.
Landkreditt Bank og Forsikring er lokalt til stede i store deler av Norge og tar gjerne bank- eller forsikringspraten hjemme hos deg.
Budgivning
Forbrukerinformasjon om budgivning er vedlagt i salgsoppgaven.
Alle bud, budforhøyelser og budendringer skal inngis skriftlig til megler. Det første budet skal legitimeres og med budgivers signatur.
Bud inngis fortrinnsvis via budgivningsplattformen Tryggbudgivning.no på nett hvor legitimasjon og signatur bekreftes ved å benytte e-signatur, eksempelvis BankID eller MinID. Link til budskjema på Tryggbudgivning.no ligger tilgjengelig i nettannonsen på Finn.no, link kan også fås tilsendt av megler. Om ikke denne benyttes kan ordinært budskjema i salgsoppgaven brukes. Megler skal så snart som mulig bekrefte skriftlig overfor budgiver at bud er mottatt.
Bud som ikke er skriftlig, eller som har kortere akseptfrist enn til kl. 12.00 første virkedag etter siste annonserte visning, vil ikke bli formidlet til selger. Et bud er bindende for budgiver når budet er kommet til selgers kunnskap. Selger står fritt til å akseptere eller forkaste ethvert bud, og er således ikke forpliktet til å akseptere det høyeste budet på eiendommen.
Megler skal, i den grad det er nødvending og mulig, informere de involverte i budrunden skriftlig om status i budgivningen.
Megler er forpliktet til å legge til rette for en forsvarlig avvikling av budrunden, og for at budene skal kunne bli behandlet og videreformidlet skriftlig til alle involverte parter må ethvert bud ha en tilstrekkelig lang akseptfrist. Selger må skriftlig akseptere budet før budaksept kan formidles til budgiver. Bud og senere budforhøyelser/endringer bør derfor ha akseptfrist på minimum 30 minutter fra budet inngis. Budforhøyelser bør derfor skje i god tid før fristens utløp.
Selger og kjøper har krav på å få utlevert kopi av budjournalen straks etter at handel er kommet i stand. Alle som har inngitt bud på eiendommen kan på forespørsel få en kopi av anonymisert budjournal etter at budrunden er avsluttet.
Lovanvendelse og kontraktsbetingelser
Eiendommen selges etter reglene i avhendingsloven. Selgers eventuelle mangelsansvar og kjøpers undersøkelsesplikt reguleres av bestemmelsene i avhendingsloven kapittel 3.
Det er vedtatt endringer i avhendingsloven som trådte i kraft 01.01.2022. Som følge av endringene vil det gjelde ulike regler, om kjøper er en forbrukerkjøper eller ikke. Dette er redegjort for nedenfor:
Følgende gjelder ved salg til forbrukerkjøper*:
* Med forbrukerkjøper menes kjøp av eiendom når kjøperen er en fysisk person som ikke hovedsakelig handler som ledd i næringsvirksomhet.
For å få et best mulig beslutningsgrunnlag er det viktig å lese salgsdokumentene grundig før visning, og uansett før budgivning. Salgsoppgaven inneholder sentrale opplysninger fra eiendomsmegleren, tilstandsrapport fra bygningssakkyndig, egenerklæring fra selger og andre dokumenter med relevant innhold. Uavhengig av om det er lest eller ikke, regnes Kjøper for å kjenne til det som går tydelig fram av salgsdokumentene.
I tillegg til å sette seg grundig inn i dokumentene, oppfordres interessenter til å undersøke eiendommen nøye.
Eiendommen kan ha en mangel dersom den ikke samsvarer med kravene til kvalitet, utrustning og annet som følger av avtalen, jf. avhendingsloven § 3-1. Videre vil eiendommen ha mangel dersom det er holdt tilbake eller gitt uriktige opplysninger om eiendommen som har virket inn på avtalen, jf. avhendingsloven §§ 3-7 og 3-8.
Ved salg til forbrukerkjøper er det ikke anledning til å ta forbehold om at eiendommen selges "som den er" eller med lignende generelle forbehold. Forbehold om eiendommens tilstand som er spesifisert nok til å kunne innvirke på kjøpsvurderingen, anses likevel som en del av avtalen, og vil derfor ikke kunne påberopes som mangel jf. avhendingsloven § 3-9 (2) andre setning.
Hvis det ikke er avtalt noe særskilt, gjelder bestemmelsene i avhendingsloven §§ 3-2 til 3-6 om generelle krav til eiendommen, arealavvik og tilbehør. Disse bestemmelsene supplerer altså det som følger av avtalen.
Boligens alder, type og synlige tilstand har betydning for hvilken kvalitet og stand som kan forventes. For eksempel kan det ikke forventes at en eldre bolig har samme tilstand som en ny eller nyere bolig. Eldre boliger er vanligvis bygget etter andre krav og med andre materialer, og vil i tillegg ha varierende grad av slitasje og skader som følge av blant annet bruk, værpåkjenninger og annen aldersforringelse. Skader og forringelser som er naturlige følger av dette vil normalt ikke bli ansett som kjøpsrettslige mangler.
Kjøper kan ikke gjøre gjeldende som en mangel noe kjøperen kjente eller måtte kjenne til da avtalen ble inngått. Dersom kjøperen før avtaleinngåelsen har undersøkt eiendommen, eller uten rimelig grunn unnlatt å følge oppfordringen om undersøkelse, kan kjøperen ikke gjøre gjeldende som mangel noe han burde blitt kjent med ved undersøkelsen.
Det gjøres oppmerksom på at selv om det skulle være mangel ved eiendommen, må kjøperen selv dekke tap og kostnader opp til et beløp på 10 000 kroner (kjøpers "egenandel"/ "egenrisiko"), om ikke annet er sagt i loven.
Kjøpers egenrisiko har ikke betydning for spørsmålet om det foreligger en mangel. Beløpet kommer imidlertid til fradrag i en eventuell utmåling av prisavslag eller erstatning dersom det er en mangel ved eiendommen som selger er ansvarlig for.
Følgende gjelder ved salg til noen som hovedsakelig handler som ledd i næringsvirksomhet (ikke-forbrukerkjøper):
Dersom kjøper ikke er forbrukerkjøper selges eiendommen "som den er". Eiendommen selges i den forfatning den er under visning. Salget følger Avhendingsloven § 3-9:
Endå eigedomen er selt 'som han er' eller med liknande allment atterhald, har eigedomen likevel mangel der dette følger av §§ 3-7 eller 3-8. Eigedomen har også mangel dersom han er i vesentlig ringare stand enn kjøparen hadde grunn til å rekne med ut i frå kjøpesummen og tilhøva ellers. Kjøper kan derfor ikke påberope seg noen andre bestemmelser etter avhl. Kapittel 3, enn det som følger direkte av § 3-9. Dette reduserer selgers ansvar etter avhendingsloven og vil være en del av kontraktsvilkårene, dersom man ikke reserverer seg mot avhl. § 3-9 ved budgiving.
Informasjonen ovenfor om kjøpers undersøkelsesplikt, herunder oppfordringen om å undersøke eiendommen nøye, gjelder også for kjøpere som ikke anses som forbrukere.
Ved spørsmål, kontakt megler for mer informasjon.
I alle tilfeller forutsettes det, med mindre annet er avtalt, at hjemmel overføres til kjøper ved overtakelse.
Salgsoppgaven beskriver vesentlig og lovpålagt informasjon om eiendommen
Se komplett salgsoppgaveNærområdet
Landkreditt Eiendom
Annonseinformasjon
| FINN-kode | 343174218 |
|---|---|
| Sist endret | 07. des. 2025 03:10 |
| Referanse | 40230011 |
Annonsene kan være mangelfulle i forhold til lovpålagt opplysningsplikt. Før bindende avtale inngås oppfordres interessenter til å innhente komplett informasjon fra meglerforetaket, selger eller utleier.




































































