Bildegalleri

Nadeem Bokhari v/Nordvik Eiendomsmegling har gleden av å presentere en stor og tiltrekkende 2-roms med mulighet for to soverom. Se vedlagte tegninger i salgsoppgaven!
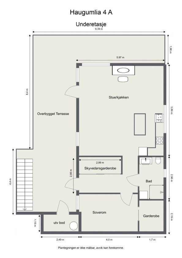
Stor og innbydende 2-roms selveierleilighet fra 2017 | Terrasse på 55 kvm | Opprinnelig tegnet som 3-roms | Carport!
Nøkkelinfo
- Boligtype
- Leilighet
- Eieform
- Eier (Selveier)
- Soverom
- 1
- Internt bruksareal
- 70 m² (BRA-i)
- Bruksareal
- 94 m²
- Eksternt bruksareal
- 24 m² (BRA-e)
- Balkong/Terrasse
- 55 m² (TBA)
- Etasje
- 1
- Byggeår
- 2017
- Energimerking
- C - Rød
- Rom
- 2
- Tomteareal
- 39 m² (eiet)
Fasiliteter
Om boligen
Leiligheten fremstår som innbydende med noe ekstra som utstrakt bruk av soneinndelte LED down-lights, gulvvarme i stue/kjøkken, elektriske Zip screens på terrassedør og vindu mot vest, samt stor elektrisk terrassemarkise.
Inneholder bla. en praktfull stue, moderne peisovn og flott takhøyde. Stilrent kjøkken m/integrerte hvitevarer, et stort soverom i delikat farge, smakfullt bad og garderobe/bod.
Utvendig bod og bod ved carport.
Utvendig har boligen en stor solrik terrasse på 55 kvm m/gledelig utsyn over golfbanen.
Salgsoppgaven beskriver vesentlig og lovpålagt informasjon om eiendommen
Se komplett salgsoppgaveNyttige lenker
Nærområdet
Nordvik Lillestrøm
Prisstatistikk
Haugumlia 4A
på annonsen
prisantydning per kvadratmeter
Prisfordeling
Pris per m² ligger 7 529 kr under snittet for leiligheter i Nes.
Grafen viser antall leiligheter solgt i Nes siste året fordelt på pris per m² - totalt 156 leiligheter
Antall boliger
Kvadratmeterpris tilsvarer prisantydning pluss fellesgjeld per kvadratmeter (p-rom eller BRA-i). Prisene i grafen er avrundet til nærmeste 1000 kr.
Annonseinformasjon
| FINN-kode | 341036654 |
|---|---|
| Sist endret | 29. apr. 2024 14:19 |
| Referanse | 60-0019/24 |
Annonsene kan være mangelfulle i forhold til lovpålagt opplysningsplikt. Før bindende avtale inngås oppfordres interessenter til å innhente komplett informasjon fra meglerforetaket, selger eller utleier.















































