Bildegalleri

Velkommen til Hårstad Mindes veg 13 - Presentert av EIE Eiendomsmegling ved Geir Einar Moen!
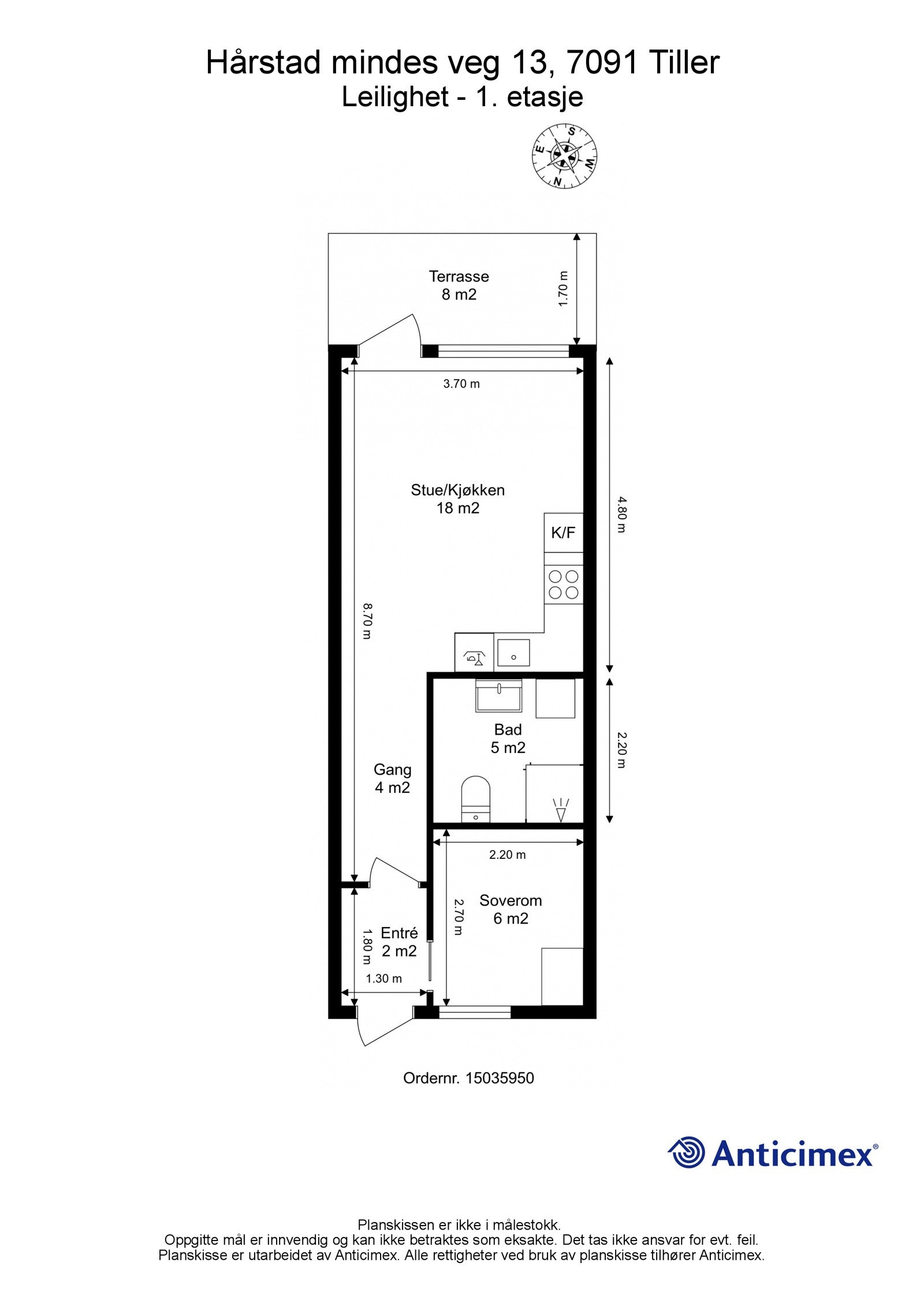
Moderne og stilren 2-roms leilighet fra 2021 | Terrasse på 8 kvm | Garasjeplass m/elbil-lader | God planløsning
Nøkkelinfo
- Boligtype
- Leilighet
- Eieform
- Andel
- Soverom
- 1
- Primærrom
- 40 m²
- Bruksareal
- 40 m²
- Etasje
- 1
- Byggeår
- 2021
- Energimerking
- B - Mørkegrønn
- Rom
- 2
- Tomteareal
- 2 844 m² (eiet)
Fasiliteter
Om boligen
Velkommen til Hårstad Mindes veg 13 presentert av EIE Eiendomsmegling ved Geir Einar Moen - En moderne og attraktiv 2-roms på 40 kvm. Den ligger i første etasje i bygg fra 2021 og har egen parkeringsplass i felles garasjeanlegg. Her har man en fantastisk beliggenhet på Tiller med kort avstand til City Syd og kollektivforbindelser.
Fra stuen er det utgang til en hyggelig terrasse på 8 kvm med overbygg og utsikt mot velstelte grøntarealer. Stuen ligger i åpen løsning med kjøkken. God takhøyde og store vindusflater sørger for en lys og luftig romfølelse.
Merk deg dette:
- Overbygd terrasse på 8 kvm
- Kjøkken m/ integrerte hvitevarer
- Mulighet for individuell nedbetaling av fellesgjeld
- Bod i kjeller på 5,1 kvm
- Balansert ventilasjon
- Vannbåren varme inkl i felleskostander
- Byggeår 2021
- Garasje m/el-billader
Salgsoppgaven beskriver vesentlig og lovpålagt informasjon om eiendommen
Se komplett salgsoppgaveNærområdet
EIE eiendomsmegling Heimdal
Prisstatistikk
Hårstad Mindes veg 13
på annonsen
prisantydning per kvadratmeter
Prisfordeling
Pris per m² ligger 20 825 kr over snittet for leiligheter i Trondheim Sør.
Grafen viser antall leiligheter solgt i Trondheim Sør siste året fordelt på pris per m² - totalt 726 leiligheter
Antall boliger
Kvadratmeterpris tilsvarer prisantydning pluss fellesgjeld per kvadratmeter (p-rom eller BRA-i). Prisene i grafen er avrundet til nærmeste 1000 kr.
Annonseinformasjon
| FINN-kode | 340844553 |
|---|---|
| Sist endret | 04. mars 2024 11:54 |
| Referanse | 97230262 |
Annonsene kan være mangelfulle i forhold til lovpålagt opplysningsplikt. Før bindende avtale inngås oppfordres interessenter til å innhente komplett informasjon fra meglerforetaket, selger eller utleier.

























