Bildegalleri

Velkommen til Gamlevegen 21, presentert av EiendomsMegler 1 v/Martin Grodås Alnes. (Fotograf Svein Olav Humberset v/EFKT).
Moltu
Enebolig på stor tomt| Flott utsikt og gode solforhold | Kort vei til alt | Naust | Overflate oppusset 2024 |
Prisantydning1 500 000 kr
Nøkkelinfo
- Boligtype
- Enebolig
- Eieform
- Eier (Selveier)
- Soverom
- 4
- Internt bruksareal
- 103 m² (BRA-i)
- Bruksareal
- 175 m²
- Eksternt bruksareal
- 72 m² (BRA-e)
- Byggeår
- 1918
- Energimerking
- G - Oransje
- Rom
- 5
- Tomteareal
- 4 660 m² (eiet)
Fasiliteter
Balkong/Terrasse
Garasje/P-plass
Peis/Ildsted
Om boligen
Velkommen til Gamlevegen 21, presentert av EiendomsMegler 1 v/Martin Grodås Alnes!
Boligen har nylig vært gjennom oppgraderinger som overflate oppussing i de fleste rommene i hovedetasjen og loftetasjen og andre oppgraderinger, se tilstandsrapport for mer informasjon
Eiendommen ligger i et område med spredt boligbebyggelse på Moltustranda. I nærområdet finnes det tilbud vedr. barnehage, tur- og rekreasjonsområder m.v.. Relativt kort avstand til handels- og servicetilbudet i Moltustranda sentrum. Populære turstier for både store og små, som bla. Kvia, Storehanen og Hidsegga. Det er også verdt å nevne den populære badeplassen på Annasanden, like ved barneskolen.
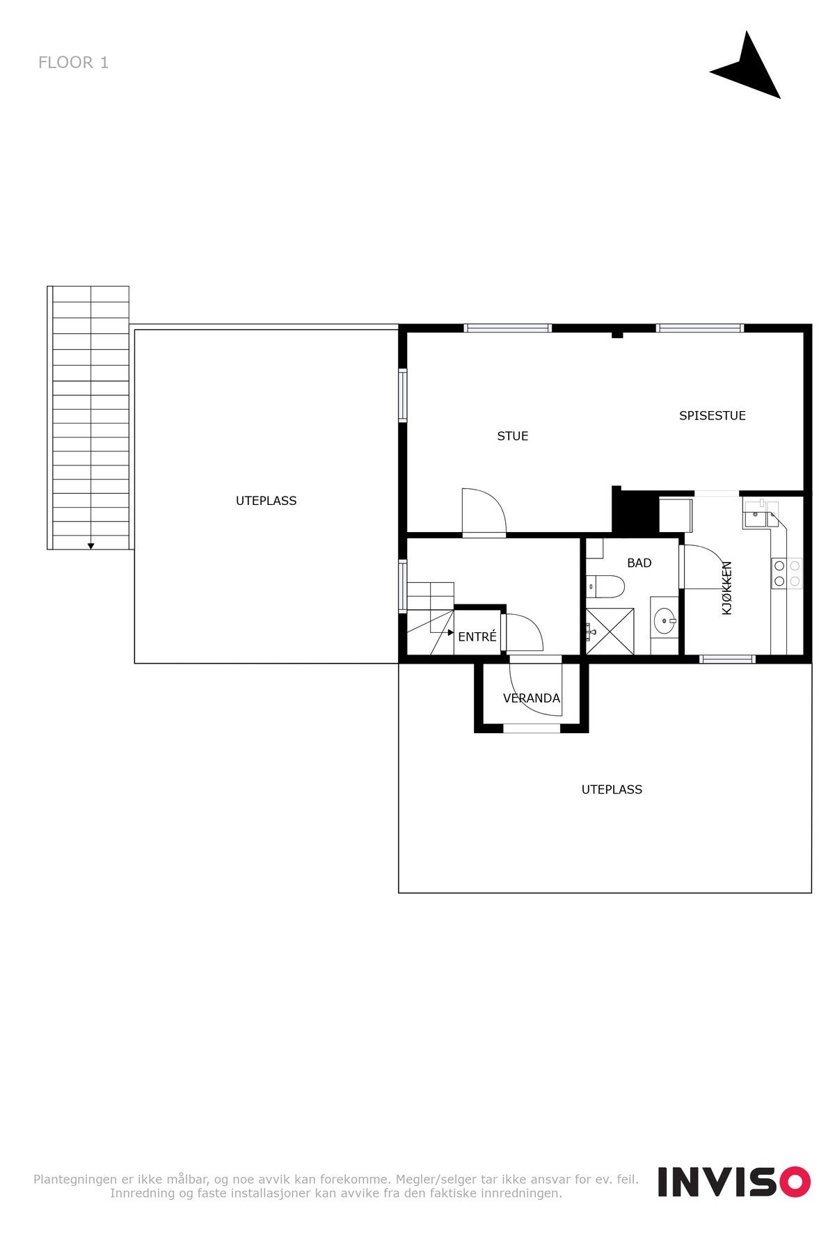
Boligen går over tre plan og inneholder følgende:
Kjeller: Uinnredet kjelleretasje.
Hovedetasje: Entré, gang, stue, kjøkken og bad.
Loftetasje: Fire soverom og mørkeloft.
Det medfølger en bruksrett på et naust som ligger ca. rett ned mot vannet fra boligen.
Velkommen til visning - husk påmelding!
Boligen har nylig vært gjennom oppgraderinger som overflate oppussing i de fleste rommene i hovedetasjen og loftetasjen og andre oppgraderinger, se tilstandsrapport for mer informasjon
Eiendommen ligger i et område med spredt boligbebyggelse på Moltustranda. I nærområdet finnes det tilbud vedr. barnehage, tur- og rekreasjonsområder m.v.. Relativt kort avstand til handels- og servicetilbudet i Moltustranda sentrum. Populære turstier for både store og små, som bla. Kvia, Storehanen og Hidsegga. Det er også verdt å nevne den populære badeplassen på Annasanden, like ved barneskolen.
Boligen går over tre plan og inneholder følgende:
Kjeller: Uinnredet kjelleretasje.
Hovedetasje: Entré, gang, stue, kjøkken og bad.
Loftetasje: Fire soverom og mørkeloft.
Det medfølger en bruksrett på et naust som ligger ca. rett ned mot vannet fra boligen.
Velkommen til visning - husk påmelding!
NB: Knappen for å vise hele beskrivelsen har kun en visuell effekt.
NB: Knappen for å vise hele beskrivelsen har kun en visuell effekt.
Salgsoppgaven beskriver vesentlig og lovpålagt informasjon om eiendommen
Se komplett salgsoppgaveNyttige lenker
Nærområdet
EiendomsMegler 1 Søre Sunnmøre
Vi loser deg trygt gjennom hele boligsalget
Annonseinformasjon
| FINN-kode | 339355430 |
|---|---|
| Sist endret | 31. des. 2025 00:15 |
| Referanse | 22230087 |
Annonsene kan være mangelfulle i forhold til lovpålagt opplysningsplikt. Før bindende avtale inngås oppfordres interessenter til å innhente komplett informasjon fra meglerforetaket, selger eller utleier.






























