Bildegalleri

Mjøndalen stasjon ligger i kort gangavstand fra leiligheten og har gode forbindelser med tog eller buss til Kongsberg, Drammen og Oslo. Foto: Stine Prøitz Jørgensen
Mjøndalen
Lys, moderne og ubrukt 3-roms leilighet i helt ny boligblokk. Vannbåren varme. Veranda. Garasje. Fellesgjeld kan innfris
Prisantydning3 190 000 kr
Nøkkelinfo
- Boligtype
- Leilighet
- Eieform
- Andel
- Soverom
- 2
- Internt bruksareal
- 82 m² (BRA-i)
- Bruksareal
- 88 m²
- Eksternt bruksareal
- 6 m² (BRA-e)
- Etasje
- 2
- Byggeår
- 2024
- Energimerking
- B - Mørkegrønn
- Rom
- 3
- Tomteareal
- 1 639 m² (eiet)
Fasiliteter
Balkong/Terrasse
Bredbåndstilknytning
Garasje/P-plass
Heis
Kabel-TV
Offentlig vann/kloakk
Sentralt
Turterreng
Balansert ventilasjon
Visning
Trykk på "Visningspåmelding" eller kontakt megler på telefon/epost.
Annonserte visninger uten påmeldinger vil ikke bli avholdt.
VisningspåmeldingOm boligen
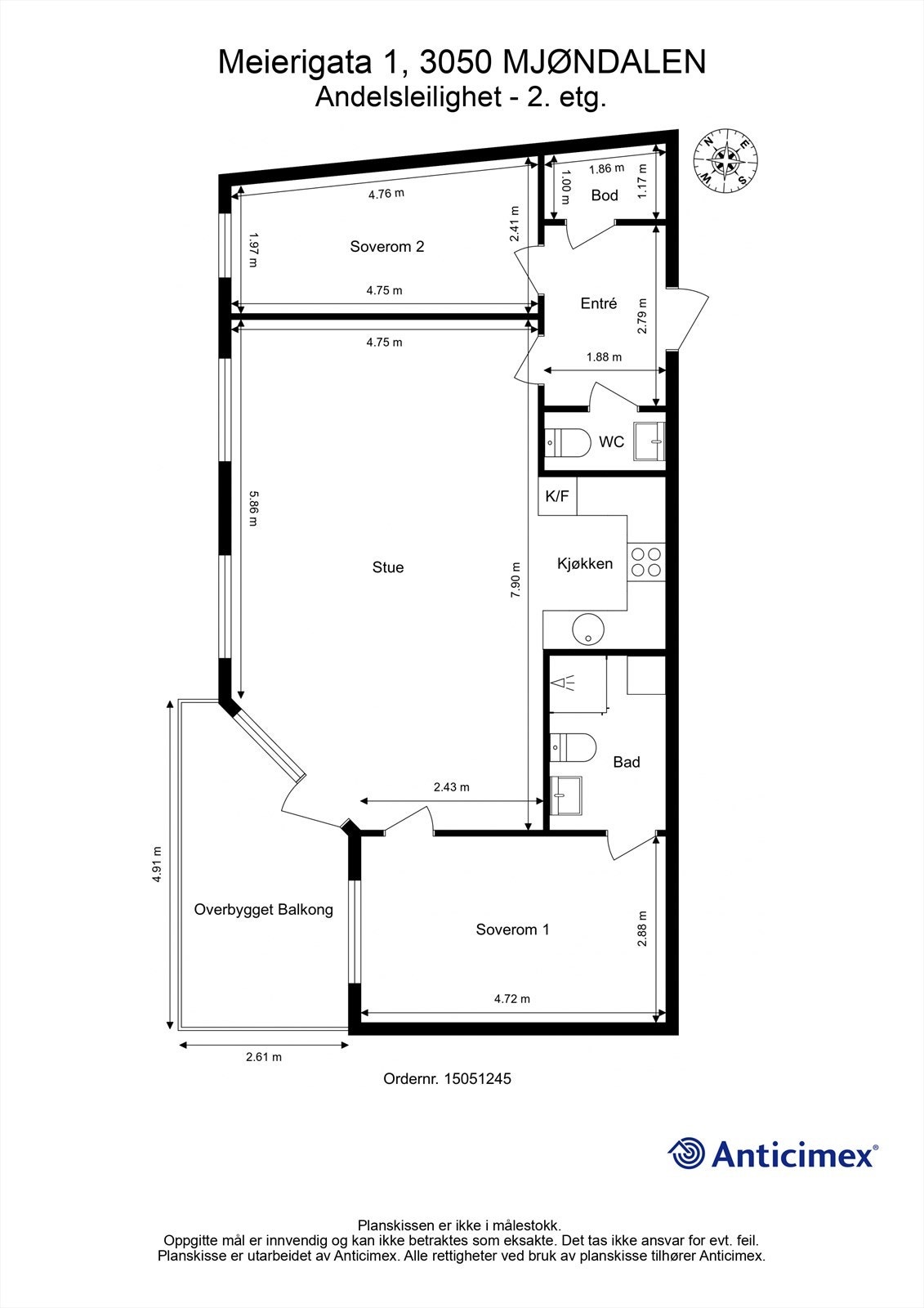
Lys, moderne og ubrukt 3-roms leilighet i 2. etasje.
- Boligblokka er nyoppført i 2024 (gjenværende garantistillelse)
- Det er ingen punkter som har blitt tildelt TG2 og TG3, leiligheten er helt ny!
- Borettslaget har tilrettelagt for individuell nedbetaling av andel fellesgjeld (medfører redusert felleskostnad)
- Ved innfrielse av andel fellesgjeld blir felleskostnad (dagens nivå) kr. 4.936,- per måned
- Romslig åpen kjøkken- og stueløsning med store vinduer
- Lekker og påkostet Designa kjøkken med helintegrerte hvitevarer
- Lyst flislagt bad med dusjhjørne og praktisk wc-rom
- Vannbåren gulvvarme og balansert ventilasjon
- Overbygget nordvestvendt veranda på 11 kvm
- Garasje (hjørneplass). Heis fra boligplan.
- Umiddelbar nærhet til matbutikk og spisesteder
NB: Knappen for å vise hele beskrivelsen har kun en visuell effekt.
NB: Knappen for å vise hele beskrivelsen har kun en visuell effekt.
Salgsoppgaven beskriver vesentlig og lovpålagt informasjon om eiendommen
Se komplett salgsoppgaveNyttige lenker
Nærområdet
Krogsveen Drammen
Verdien av en god megler.
Annonseinformasjon
| FINN-kode | 339184188 |
|---|---|
| Sist endret | 21. jan. 2026 21:06 |
| Referanse | KR20.23429 |
Annonsene kan være mangelfulle i forhold til lovpålagt opplysningsplikt. Før bindende avtale inngås oppfordres interessenter til å innhente komplett informasjon fra meglerforetaket, selger eller utleier.



































