Bildegalleri

Velkommen til nyoppførte og lekre Vollebekkveien 2L! En smakfull og svært delikat 4-roms selveier.
Flytt rett inn i rålekker og splitter ny 4-roms! Garasjeplass medfølger - Oppvarming/vv. inkl. - 4 min. til t-bane!
Nøkkelinfo
- Boligtype
- Leilighet
- Eieform
- Eier (Selveier)
- Soverom
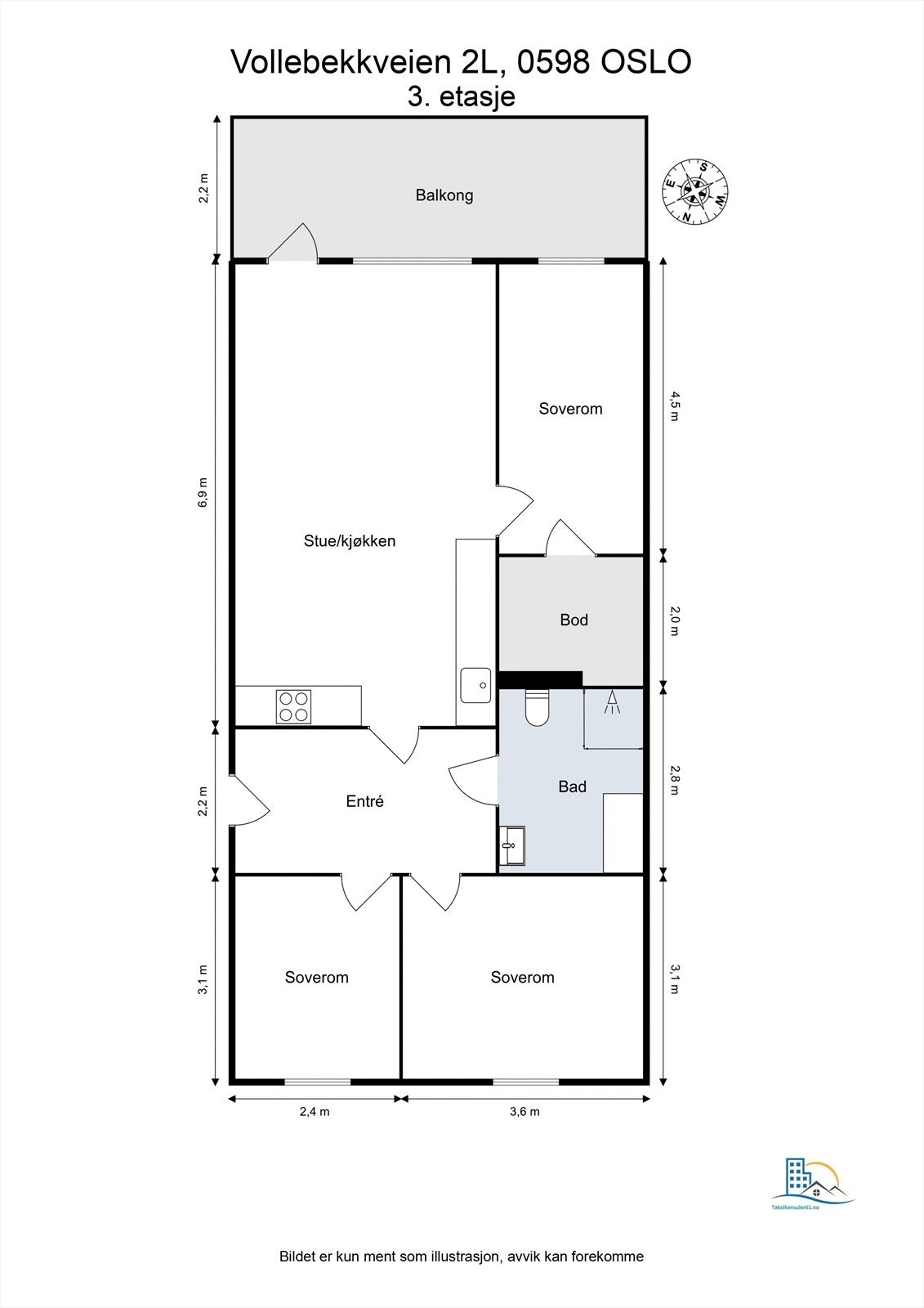
- 3
- Internt bruksareal
- 77 m² (BRA-i)
- Bruksareal
- 82 m²
- Eksternt bruksareal
- 5 m² (BRA-e)
- Balkong/Terrasse
- 12 m² (TBA)
- Etasje
- 3
- Byggeår
- 2023
- Energimerking
- A - Mørkegrønn
- Rom
- 4
- Tomteareal
- 10 695 m² (eiet)
Fasiliteter
Om boligen
- Leiligheten har TG 0 på alle punkter (ikke vært bebodd)
- Svanemerket bolig
- Mulighet for søk om grønt boliglån (ca. 0,5 prosentpoeng lavere boliglånsrente)
- Nybygg garanti (5 år)
- Lave strømkostnader da oppvarming og varmtvann a konto er inkl.
- Balansert ventilasjon
- Romslig balkong på ca. 12 m² med gode solforhold dagtid
- Heis
- Kjellerbod
- Flotte felles fasiliteter som takterrasser, utleielokale, innendørs sykkelparkering m/vaskehall og ladeskap m.m
- Garasjeplass i kjeller med heisadkomst medfølger
Salgsoppgaven beskriver vesentlig og lovpålagt informasjon om eiendommen
Se komplett salgsoppgaveNyttige lenker
Nærområdet
Nordvik Nydalen
Prisstatistikk
Vollebekkveien 2L
på annonsen
prisantydning per kvadratmeter
Prisfordeling
Pris per m² ligger 5 610 kr over snittet for leiligheter i Bjerke.
Grafen viser antall leiligheter solgt i Bjerke siste året fordelt på pris per m² - totalt 858 leiligheter
Antall boliger
Kvadratmeterpris tilsvarer prisantydning pluss fellesgjeld per kvadratmeter (p-rom eller BRA-i). Prisene i grafen er avrundet til nærmeste 1000 kr.
Annonseinformasjon
| FINN-kode | 339161757 |
|---|---|
| Sist endret | 16. apr. 2024 09:41 |
| Referanse | 20-0040/24 |
Annonsene kan være mangelfulle i forhold til lovpålagt opplysningsplikt. Før bindende avtale inngås oppfordres interessenter til å innhente komplett informasjon fra meglerforetaket, selger eller utleier.



















































