Bildegalleri

Boligen har en eksklusiv hel og unik glassfasade som innbyr til å nyte natur og utsikt fra alle etasjer, samtidig som boligen ligger usjenert til
BEKKESTUA/JAR - NY, INNHOLDSRIK & ELEGANT ENEBOLIG (SELGES MED UTLEIE OG MELLOMFINANSIERINGSGARANTI) - HYBEL - UTSIKT
Nøkkelinfo
- Boligtype
- Enebolig
- Eieform
- Eier (Selveier)
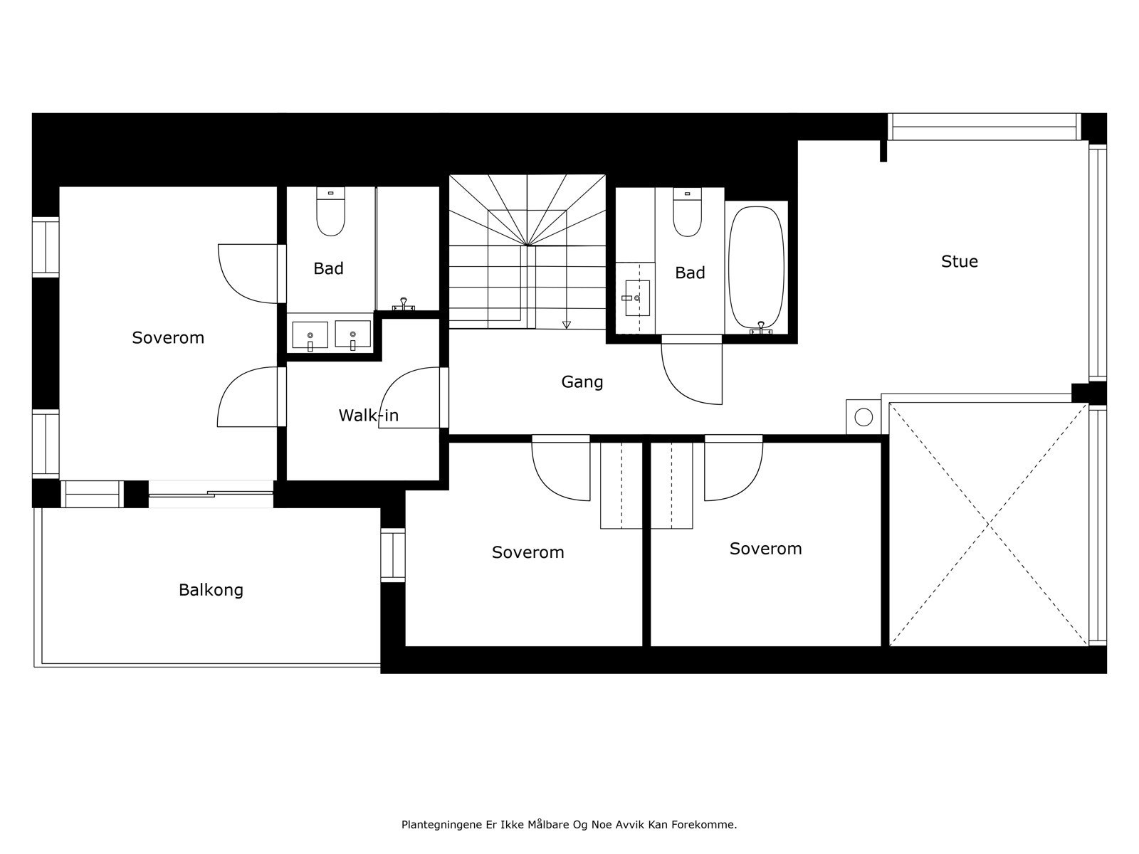
- Soverom
- 5
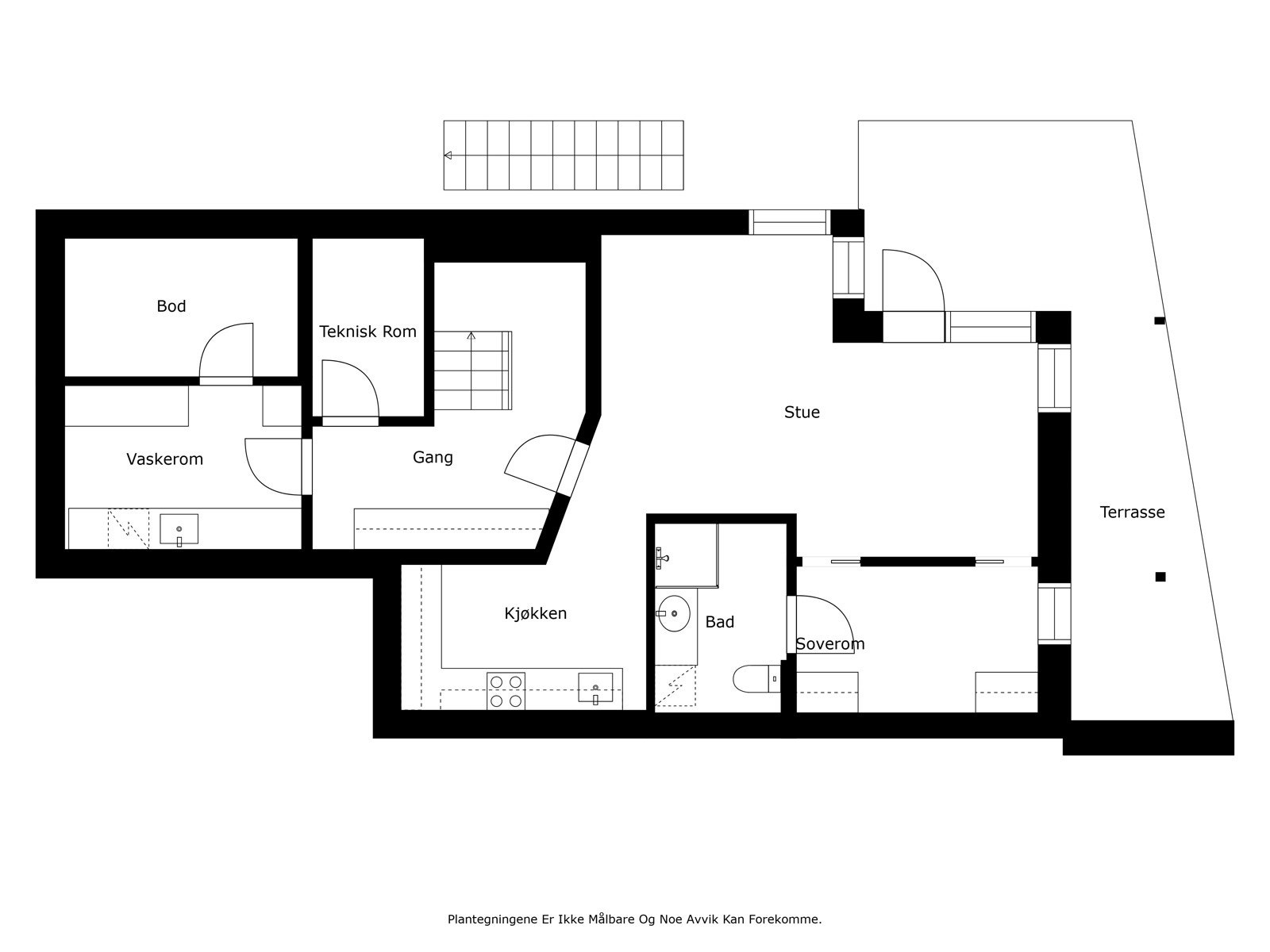
- Internt bruksareal
- 237 m² (BRA-i)
- Bruksareal
- 284 m²
- Eksternt bruksareal
- 47 m² (BRA-e)
- Byggeår
- 2024
- Tomteareal
- 1 010 m² (eiet)
Fasiliteter
Visning
Om boligen
Majestetisk beliggende, høyt og fritt som et signalbygg, elegant utført med finesser og detaljer som gir boligen en egen identitet, gjennomført og med høy standard. Her har du en bolig som inneholder det lille ekstra. Komfort kombinert med funksjonalitet, det arkitektoniske kombinert med det praktiske og en opplevelse av luksus i en ellers travel hverdag.
I tillegg har selger valgt å tilby en utleie og mellomfinansieringsgaranti. For mer info, følg linkene under eller se "nyttige lenker".
https://eie.no/eiendom/kampanje/utleiegaranti
https://eie.no/eiendom/kampanje/mellomfinansiering
- Tidløs & moderne
- Dobbelgarasje
- Svært barnevennlig
- Flotte uteplasser, utsikt og gode solforhold
- Kort gangavstand til skoler og barnehager
- Kort gangavstand til Bekkestua sentrum
- Gasspeis
- Vannbåren gulvvarme
Salgsoppgaven beskriver vesentlig og lovpålagt informasjon om eiendommen
Se komplett salgsoppgaveNærområdet
EIE eiendomsmegling Bærum
Annonseinformasjon
| FINN-kode | 338814254 |
|---|---|
| Sist endret | 14. okt. 2024 14:05 |
| Referanse | 36220282 |
Annonsene kan være mangelfulle i forhold til lovpålagt opplysningsplikt. Før bindende avtale inngås oppfordres interessenter til å innhente komplett informasjon fra meglerforetaket, selger eller utleier.





































































