Bildegalleri

Inaktiv
Velkommen til Besserud/Holmenkollen
Praktfull og herskapelig Holmenkollen-villa fra 2001, med stor garasje/anneks, og pent opparbeidet eiendom på 3,1 mål.
Prisantydning49 500 000 kr
Nøkkelinfo
- Boligtype
- Enebolig
- Eieform
- Eier (Selveier)
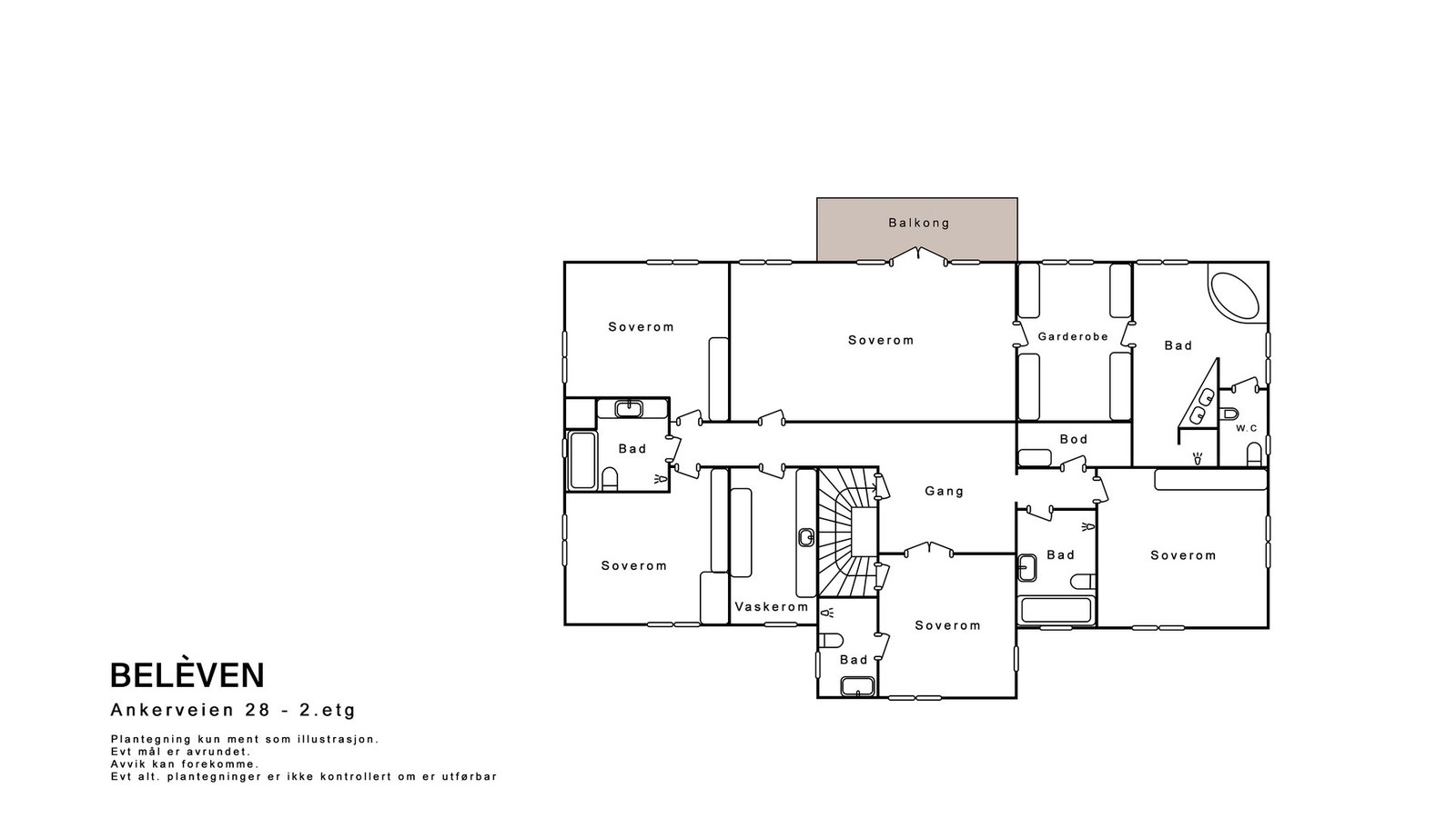
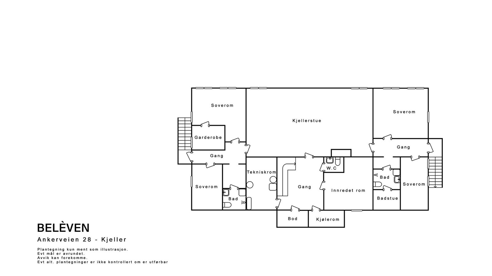
- Soverom
- 11
- Primærrom
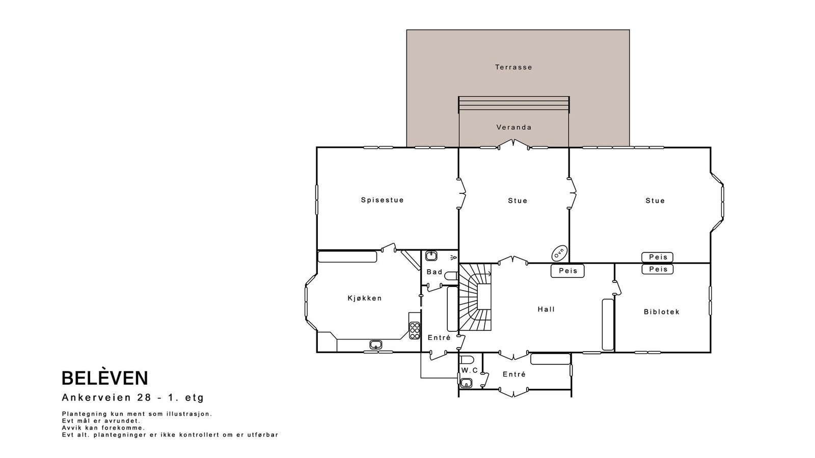
- 701 m²
- Bruksareal
- 773 m²
- Byggeår
- 2001
- Energimerking
- B - Oransje
- Tomteareal
- 3 136 m² (eiet)
Fasiliteter
Barnevennlig
Balkong/Terrasse
Garasje/P-plass
Offentlig vann/kloakk
Parkett
Peis/Ildsted
Turterreng
Utsikt
Moderne
Rolig
Balansert ventilasjon
Om boligen
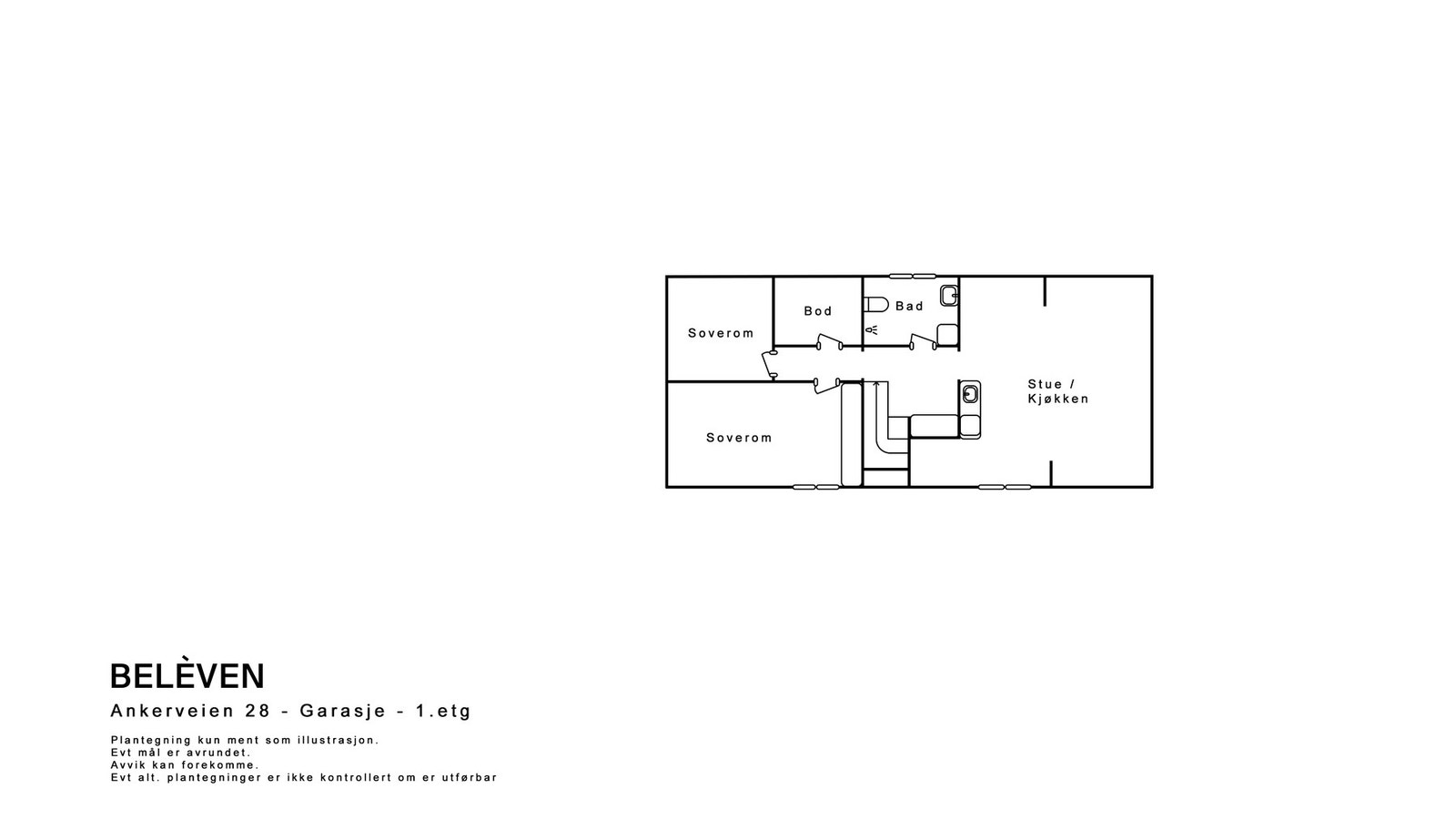
En praktfull eiendom utenom det vanlige. Her stilles 3,1 mål til disposisjon, en klassisk og herskapelig villa på 773 kvm., med flott utsikt over Oslo by og fjorden. Garasjehuset/annekset er på romslige 163 kvm og inneholder to doble garasjer og leilighet.
Eiendommen ligger fint plassert på en solrik tomt og byr på flere idylliske uteområder. Hagearkitekt Lark/Dengin har skissert et forslag til ytterligere utnyttelse. Kort vei til skole og barnehage, Holmenkollen Restaurant, servicetilbud og kollektivtransport. Videre er det kort vei til Holmenkollen riksanlegg, Tryvann/ Oslo Vinterpark, og klatrepark, i tillegg til idylliske marka.
Eiendommen ligger fint plassert på en solrik tomt og byr på flere idylliske uteområder. Hagearkitekt Lark/Dengin har skissert et forslag til ytterligere utnyttelse. Kort vei til skole og barnehage, Holmenkollen Restaurant, servicetilbud og kollektivtransport. Videre er det kort vei til Holmenkollen riksanlegg, Tryvann/ Oslo Vinterpark, og klatrepark, i tillegg til idylliske marka.
NB: Knappen for å vise hele beskrivelsen har kun en visuell effekt.
NB: Knappen for å vise hele beskrivelsen har kun en visuell effekt.
Salgsoppgaven beskriver vesentlig og lovpålagt informasjon om eiendommen
Se komplett salgsoppgaveNærområdet
Belèven Eiendomsmegling
Annonsene kan være mangelfulle i forhold til lovpålagt opplysningsplikt. Før bindende avtale inngås oppfordres interessenter til å innhente komplett informasjon fra meglerforetaket, selger eller utleier.
























