Bildegalleri

Velkommen til Lychesvingen 28 - Presentert av Elise Riise Johnsen v/Eie Bærum
Romslig 3-roms med oppussingsbehov & to store uteplasser- Bad, wc & vaskerom -Heis - Peis - Garasje-Sentral beliggenhet
Nøkkelinfo
- Boligtype
- Leilighet
- Eieform
- Eier (Selveier)
- Soverom
- 2
- Bruksareal
- 105 m²
- Etasje
- 1
- Byggeår
- 1983
- Energimerking
- F - Rød
- Rom
- 3
- Tomteareal
- 19 696 m² (eiet)
Fasiliteter
Om boligen
Velkommen til Lychesvingen 28 - Presentert av Elise Riise Johnsen v/Eie Bærum.
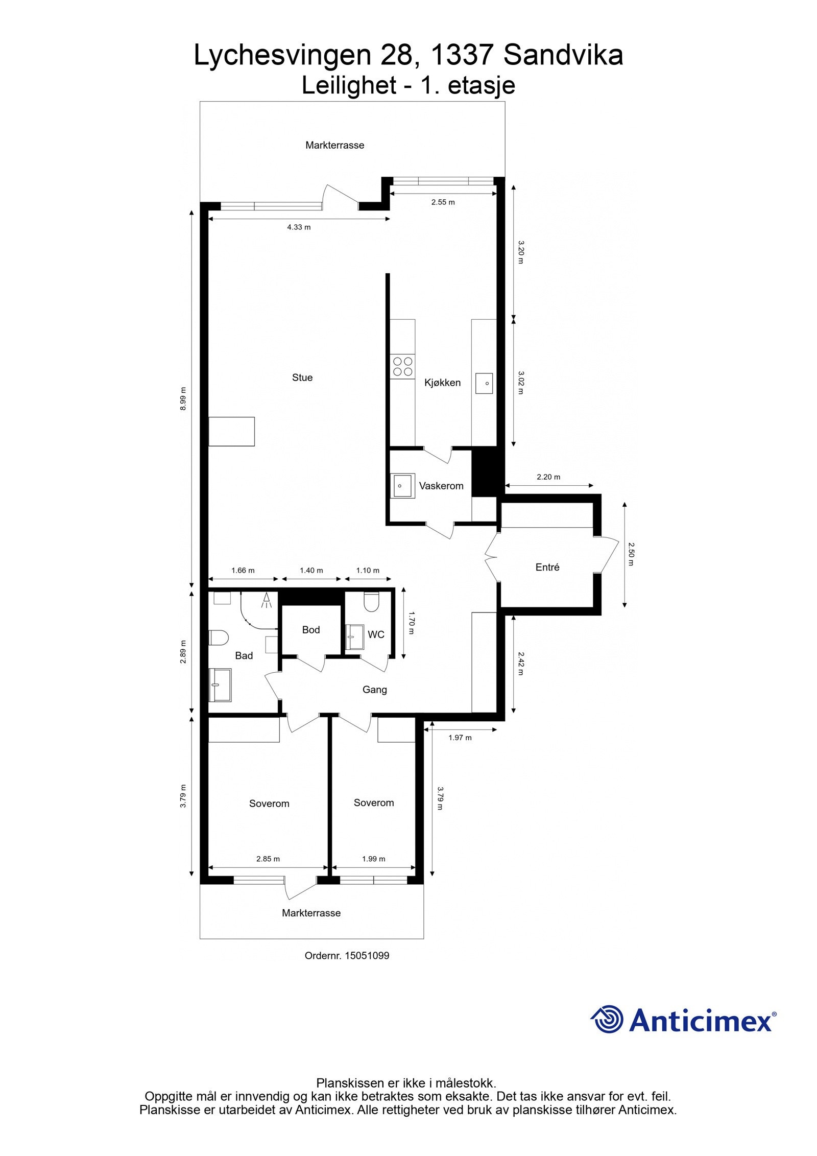
Dette er en romslig og innholdsrik 3-roms leilighet med gjennomgående planløsning. Boligen ligger i gårdens 1.etasje med enkel adkomst og heis fra garasjeanlegget.
Leiligheten holder en eldre standard og har moderniseringsbehov.
Boligen har en god planløsning med god størrelse på samtlige rom. Her finner du blant annet en romslig stue med peis, praktisk kjøkken, to gode soverom, romslig baderom, toalett, samt praktisk vaskerom. Boligen har lagringsmulighet i tilsammen tre boder.
Leiligheten har to terrasser - èn på hver side av boligen. Her kan du med andre ord flytte deg etter solforholdene.
Det medfølger en garasjeplass med mulighet for elbil lader.
Svært sentralt rett ved Sandvika sentrum. Veldrevet sameiet!
Salgsoppgaven beskriver vesentlig og lovpålagt informasjon om eiendommen
Se komplett salgsoppgaveNærområdet
EIE eiendomsmegling Bærum
Prisstatistikk
Lychesvingen 28
på annonsen
prisantydning per kvadratmeter
Prisfordeling
Pris per m² ligger 87 000 kr under snittet for leiligheter i Bærum.
Grafen viser antall leiligheter solgt i Bærum siste året fordelt på pris per m² - totalt 1 501 leiligheter
Antall boliger
Kvadratmeterpris tilsvarer prisantydning pluss fellesgjeld per kvadratmeter (p-rom eller BRA-i). Prisene i grafen er avrundet til nærmeste 1000 kr.
Annonseinformasjon
| FINN-kode | 337731112 |
|---|---|
| Sist endret | 08. feb. 2024 12:24 |
| Referanse | 36240003 |
Annonsene kan være mangelfulle i forhold til lovpålagt opplysningsplikt. Før bindende avtale inngås oppfordres interessenter til å innhente komplett informasjon fra meglerforetaket, selger eller utleier.







































