Bildegalleri

Fasade
Kombinasjonsbygg med næringsdel i 1.etasje og leilighet oppe i 2.etasje midt i Verdal sentrum.
Nøkkelinfo
- Boligtype
- Enebolig
- Eieform
- Eier (Selveier)
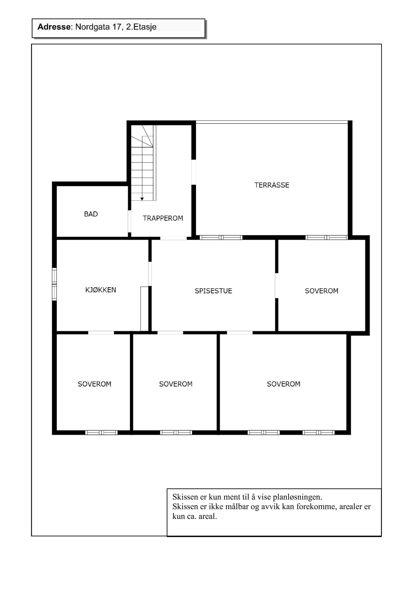
- Soverom
- 4
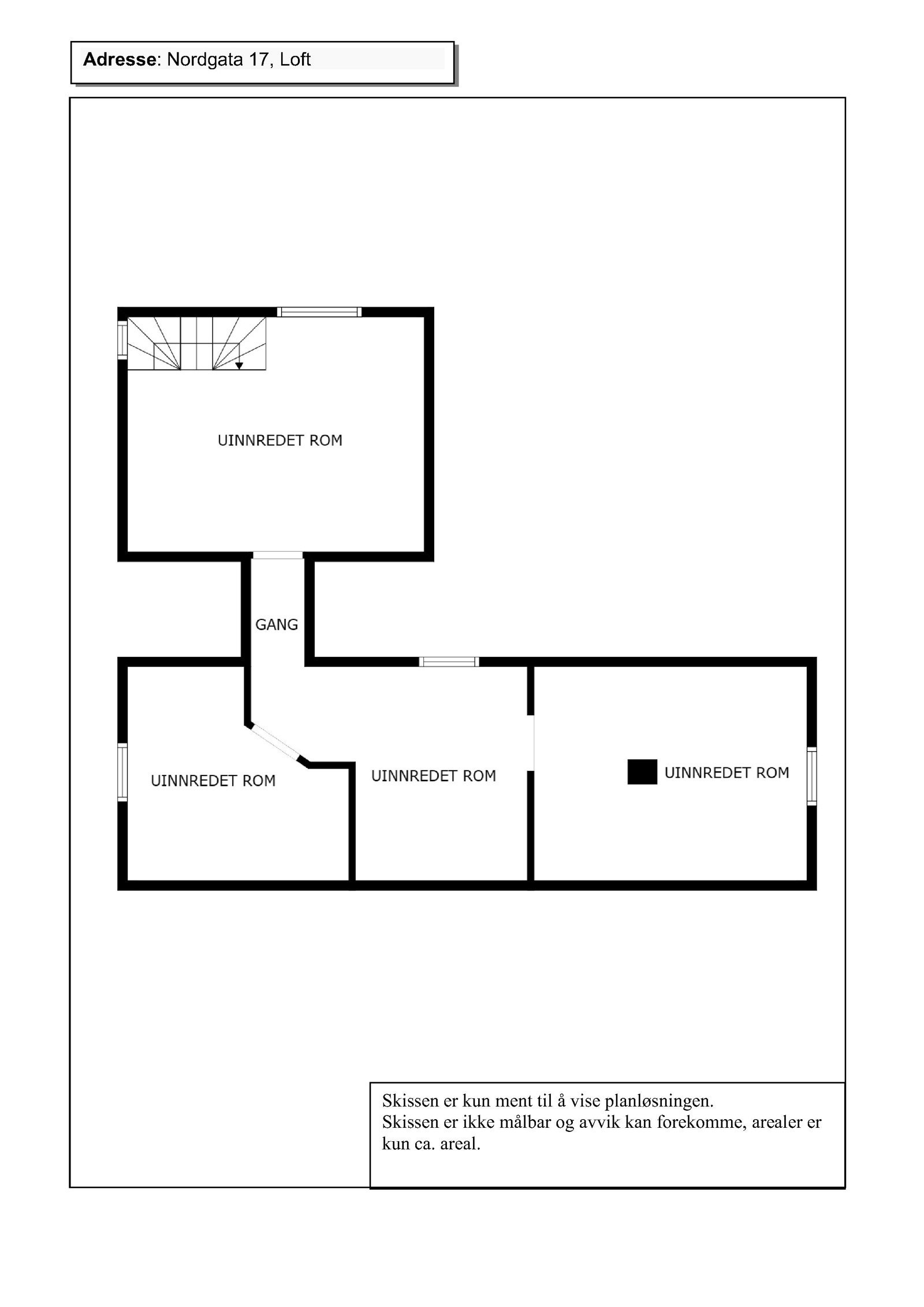
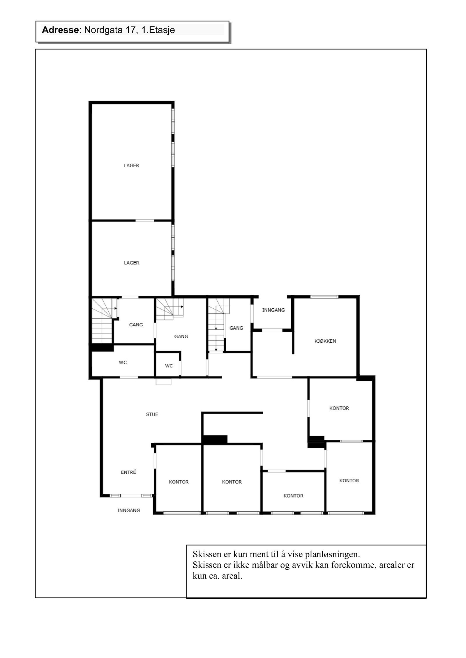
- Internt bruksareal
- 447 m² (BRA-i)
- Bruksareal
- 447 m²
- Balkong/Terrasse
- 22 m² (TBA)
- Byggeår
- 1915
- Energimerking
- G - Oransje
- Tomt
- Eiet
Fasiliteter
Visning
Om boligen
Velkommen til Nordgata 17!
Et kombinasjonsbygg med næringsdel i 1.etasje og leilighet oppe i 2.etasje midt i Verdal sentrum.
Kvaliteter vi ønsker å fremheve:
- Umiddelbar nærhet til alt av sentrumsfunkjsoner
- Utleieinntekter på totalt kr. 42 000,- pr mnd pr. dags dato
- Leieforhold følger eiendommen
- Eiendom med mange muligheter
- Parkering
- Entreprenør har vasket og malt opp alle fasader, unntatt vegg mot bakgården. Det er også vasket og malt taktekking med renner i 2024.
- Vasket balkong, samt malt rekkverk.
- Fjernet tre og ryddet i bakgården, lagt singel på terreng.
- 1. etg er pusset opp, da også etablert nytt wc- rom.
- Platting, med trapp og nytt vindfang nylig etablert til biinngag
- Leilighet pusset opp før siste overtakelse, da også skiftet bordkledning, ytterdører og vinduer i 1. og 2. etg.
Salgsoppgaven beskriver vesentlig og lovpålagt informasjon om eiendommen
Se komplett salgsoppgaveNyttige lenker
Nærområdet
Lokalmegleren & Partners Levanger
Annonseinformasjon
| FINN-kode | 337430382 |
|---|---|
| Sist endret | 19. des. 2025 03:20 |
| Referanse | 71240001 |
Annonsene kan være mangelfulle i forhold til lovpålagt opplysningsplikt. Før bindende avtale inngås oppfordres interessenter til å innhente komplett informasjon fra meglerforetaket, selger eller utleier.





























