Bildegalleri

Velkommen til nydelige Ankervegen 8 - en flott og svært godt beliggende 3-roms selveier på Mortensnes! Presentert av Storhaug + Partnere AS
Lekker 3-roms renovert i 2021 | stor og svært solrik veranda på 38m2 | flott standard | god planløsning | nydelig utsikt
Nøkkelinfo
- Boligtype
- Leilighet
- Eieform
- Eier (Selveier)
- Soverom
- 2
- Internt bruksareal
- 63 m² (BRA-i)
- Bruksareal
- 69 m²
- Eksternt bruksareal
- 6 m² (BRA-e)
- Balkong/Terrasse
- 38 m² (TBA)
- Etasje
- 2
- Byggeår
- 1970
- Rom
- 3
- Tomteareal
- 847 m² (eiet)
Om boligen
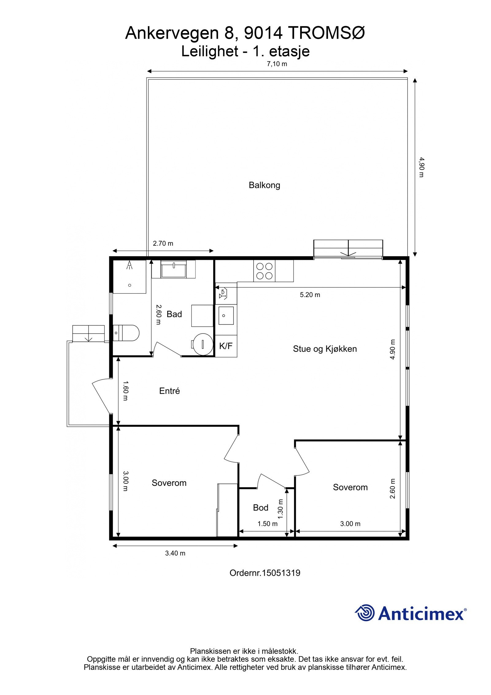
Velkommen til Ankervegen 8 og denne flotte 3-roms selveierleiligheten plassert på Mortensnes på vestsiden av Tromsøya.
Leiligheten ligger i byggets 2. etasje og holder gjennomgående god standard.
Nydelig utsikt og svært gode solforhold nytes fra store vindusflater inne i boligen og fra stor sør-vestvendt veranda på hele 38m2.
Planløsning er god med 2 gode soverom på hhv. 10 og 8m2, stort bad, innvendig bod og stue/kjøkken i åpen løsning.
Utvendig har du i tillegg til egen oppstillingsplass en praktiskt sportsbod på 6m2.
Det er korte og umiddelbare avstander til en rekke fasiliteter og tilbud i nærområdet og du finner alt du trenger i hverdagen en kjapp gåtur fra ytterdøra!
- Velkommen på visning!
For mer informasjon er det bare å ta kontakt med eiendomsmegler Einar Nyland-Storhaug!
Salgsoppgaven beskriver vesentlig og lovpålagt informasjon om eiendommen
Se komplett salgsoppgaveNærområdet
STORHAUG + PARTNERE AS
Prisstatistikk
Ankervegen 8
på annonsen
prisantydning per kvadratmeter
Prisfordeling
Pris per m² ligger 4 905 kr under snittet for leiligheter i Tromsøya, Midten.
Grafen viser antall leiligheter solgt i Tromsøya, Midten siste året fordelt på pris per m² - totalt 423 leiligheter
Antall boliger
Kvadratmeterpris tilsvarer prisantydning pluss fellesgjeld per kvadratmeter (p-rom eller BRA-i). Prisene i grafen er avrundet til nærmeste 1000 kr.
Annonsene kan være mangelfulle i forhold til lovpålagt opplysningsplikt. Før bindende avtale inngås oppfordres interessenter til å innhente komplett informasjon fra meglerforetaket, selger eller utleier.
























