Bildegalleri

Velkommen til Lønnerudstubben 5!
Våler - NY PRIS! Enebolig over et plan med sentral beliggenhet. 3 soverom. Kort vei til Glomma.
Prisantydning1 590 000 kr
Nøkkelinfo
- Boligtype
- Enebolig
- Eieform
- Eier (Selveier)
- Soverom
- 3
- Bruksareal
- 179 m²
- Byggeår
- 1979
- Energimerking
- F - Oransje
- Rom
- 4
- Tomteareal
- 681 m² (eiet)
Fasiliteter
Balkong/Terrasse
Barnevennlig
Hage
Peis/Ildsted
Rolig
Sentralt
Utsikt
Bademulighet
Fiskemulighet
Turterreng
Om boligen
Velkommen til Våler og Lønnerudstubben 5!
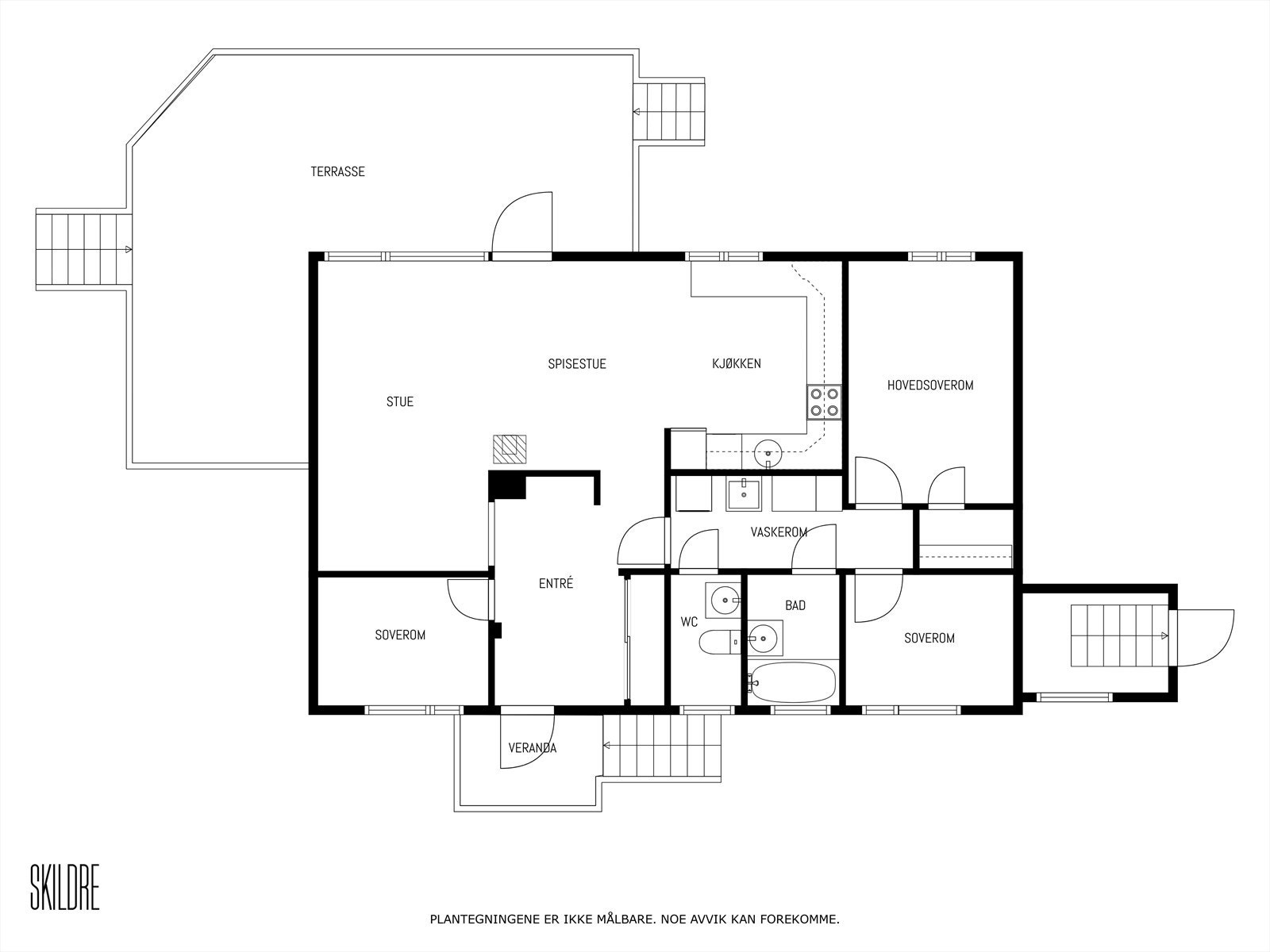
Her kan vi presentere en familievennlig og koselige enebolig beliggende i et stille og rolig boligfelt. Boligen går over et plan og har kjeller. I eneboligen er det stue, kjøkken, spisestue, bad, vaskerom, toalettrom og tre soverom i 1.etasje, mens kjelleren består av flere boder med god lagringsplass. Oppvarming med både vedfyring og varmepumpe. Solrik, romslig terrasse.
Det er ca. en km til Våler sentrum, og det er gangavstand til både barnehage, skoler og dagligvare. Kort vei til Glomma, hvor en kan både fiske og bade. For et ytterligere større servicetilbud er det ca. 10 min med bil til Flisa sentrum.
Velkommen til visning!
Meld deg på via påmeldingsknappen, eller ta kontakt med Hans Petter Carlsson, eiendomsmegler MNEF, på tlf. 911 25 518.
Her kan vi presentere en familievennlig og koselige enebolig beliggende i et stille og rolig boligfelt. Boligen går over et plan og har kjeller. I eneboligen er det stue, kjøkken, spisestue, bad, vaskerom, toalettrom og tre soverom i 1.etasje, mens kjelleren består av flere boder med god lagringsplass. Oppvarming med både vedfyring og varmepumpe. Solrik, romslig terrasse.
Det er ca. en km til Våler sentrum, og det er gangavstand til både barnehage, skoler og dagligvare. Kort vei til Glomma, hvor en kan både fiske og bade. For et ytterligere større servicetilbud er det ca. 10 min med bil til Flisa sentrum.
Velkommen til visning!
Meld deg på via påmeldingsknappen, eller ta kontakt med Hans Petter Carlsson, eiendomsmegler MNEF, på tlf. 911 25 518.
NB: Knappen for å vise hele beskrivelsen har kun en visuell effekt.
NB: Knappen for å vise hele beskrivelsen har kun en visuell effekt.
Salgsoppgaven beskriver vesentlig og lovpålagt informasjon om eiendommen
Se komplett salgsoppgaveNyttige lenker
Nærområdet
Meglerhuset Østlandet AS
Annonseinformasjon
| FINN-kode | 332808170 |
|---|---|
| Sist endret | 13. nov. 2025 14:58 |
| Referanse | GAR14.23150 |
Annonsene kan være mangelfulle i forhold til lovpålagt opplysningsplikt. Før bindende avtale inngås oppfordres interessenter til å innhente komplett informasjon fra meglerforetaket, selger eller utleier.





































