Bildegalleri

Velkommen til Bjerregaards gate 66A! Dette er en klassisk og lekker 3-roms selveier beliggende i 2. etasje i en klassisk bygård fra 1899.
Inaktiv
St.Hanshaugen
Delikat og nyoppusset 3-R m/klassiske detaljer og god takhøyde. Rosett og stukkatur. Kjøkken og bad fra 2023. Sentralt!
Prisantydning6 500 000 kr
Nøkkelinfo
- Boligtype
- Leilighet
- Eieform
- Eier (Selveier)
- Soverom
- 2
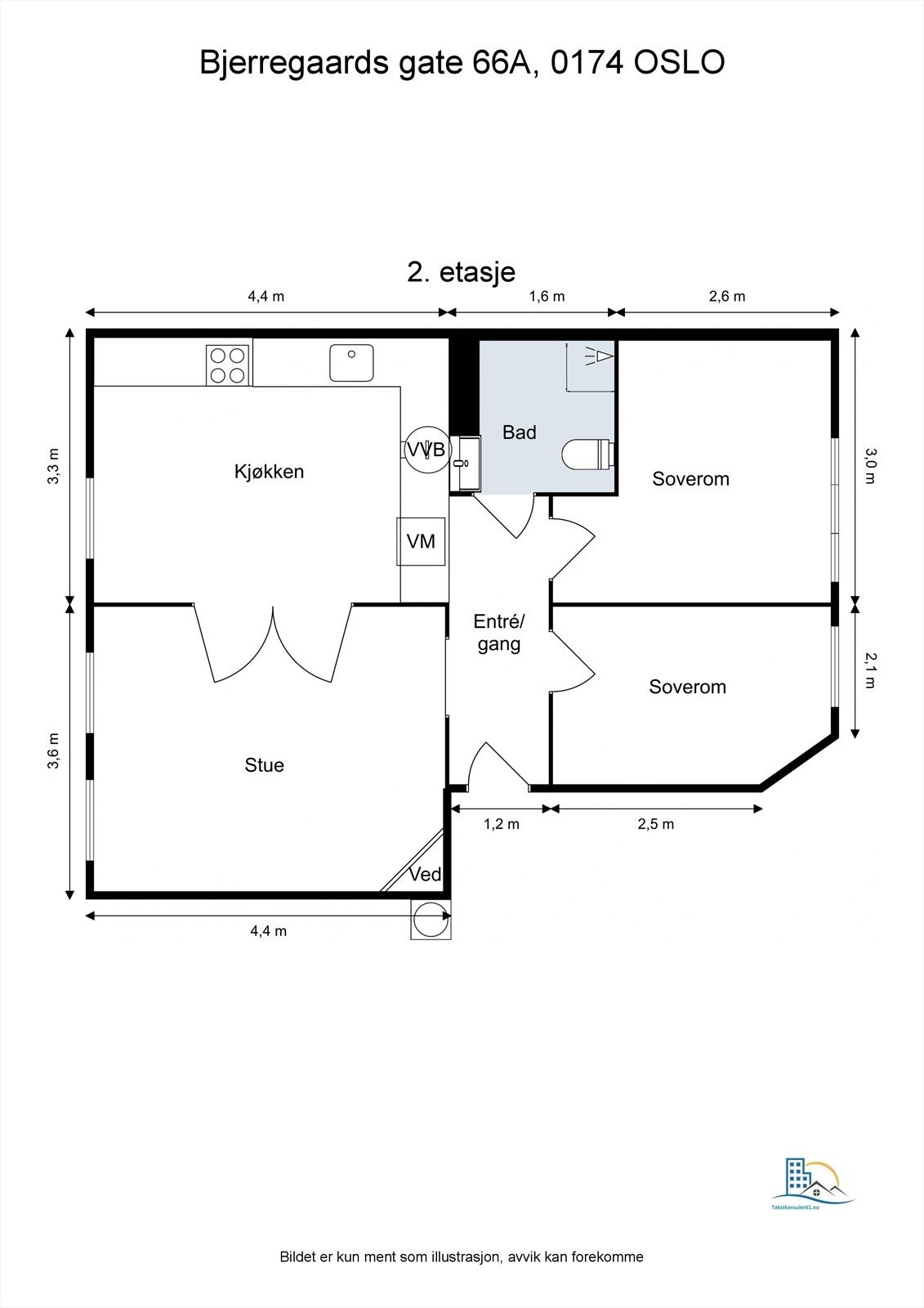
- Primærrom
- 58 m²
- Bruksareal
- 58 m²
- Etasje
- 2
- Byggeår
- 1899
- Energimerking
- G - Rød
- Rom
- 3
- Tomteareal
- 474 m² (eiet)
Fasiliteter
Barnevennlig
Bredbåndstilknytning
Kjæledyr tillatt
Offentlig vann/kloakk
Peis/Ildsted
Rolig
Sentralt
Turterreng
Om boligen
Velkommen til Bjerregaards gate 66A! Dette er en klassisk og lekker 3-roms selveier beliggende i 2. etasje i en klassisk bygård fra 1899. Leiligheten ble nylig pusset opp i 2023 og har flotte detaljer som stukkatur og rosetter, god takhøyde på 2,96 meter og doble fløydører. Leiligheten ligger "midt i smørøyet" med kun noen minutters gange til "Haugen", samt få minutters gange til Youngstorget/Karl Johans gate i sentrum. Tar du en kort gåtur østover krysser du raskt Akerselva og havner på grünerløkka med sine parker, kjente restauranter og nisjebutikker.
Fremtredende kvaliteter:
- Klassisk 3-roms med god planløsning
- Lekkert Epoq kjøkken fra 2023
- Delikat bad fra 2023
- Alle overflater er oppgradert i 2023
- Nytt flott tarkett på gulv
- Vedovn
- To tilhørende boder
Fremtredende kvaliteter:
- Klassisk 3-roms med god planløsning
- Lekkert Epoq kjøkken fra 2023
- Delikat bad fra 2023
- Alle overflater er oppgradert i 2023
- Nytt flott tarkett på gulv
- Vedovn
- To tilhørende boder
NB: Knappen for å vise hele beskrivelsen har kun en visuell effekt.
NB: Knappen for å vise hele beskrivelsen har kun en visuell effekt.
Salgsoppgaven beskriver vesentlig og lovpålagt informasjon om eiendommen
Se komplett salgsoppgaveNyttige lenker
Nærområdet
Nordvik Nydalen
Annonseinformasjon
| FINN-kode | 332446584 |
|---|---|
| Sist endret | 22. jan. 2024 13:25 |
| Referanse | 20-0276/23 |
Annonsene kan være mangelfulle i forhold til lovpålagt opplysningsplikt. Før bindende avtale inngås oppfordres interessenter til å innhente komplett informasjon fra meglerforetaket, selger eller utleier.






































