Bildegalleri

Den gode størrelsen gir plass til ulike sittegrupper etter eget ønske og behov.
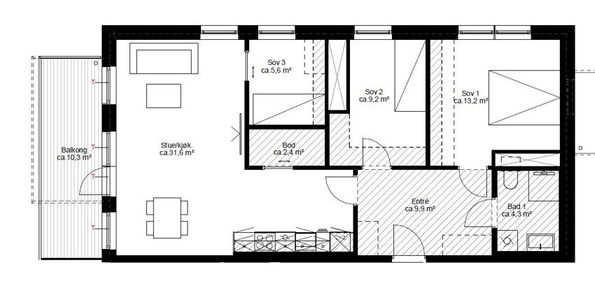
Ny 4-R hjørneleilighet med 2,6 m takhøyde fra 2023 I Vestvendt balkong I Vannbåren gulvvarme I Heis I Stor garasjeplass*
Nøkkelinfo
- Boligtype
- Leilighet
- Eieform
- Eier (Selveier)
- Soverom
- 3
- Internt bruksareal
- 83 m² (BRA-i)
- Bruksareal
- 88 m²
- Eksternt bruksareal
- 5 m² (BRA-e)
- Balkong/Terrasse
- 11 m² (TBA)
- Etasje
- 2
- Byggeår
- 2023
- Energimerking
- B - Mørkegrønn
- Rom
- 4
- Tomt
- Eiet
Fasiliteter
Om boligen
En splitter ny, ubrukt, selveiet hjørneleilighet fra 2023. Leiligheten ligger på hjørnet i byggets 2. etasje, og har en planløsning som utnytter plassen optimalt. Fra stuen har du utgang til en vestvendt balkong på ca. 11m² som er perfekt for varme sommerdager. Leiligheten holder en gjennomgående høy standard fra 2023 - her kan du flytte rett inn i en splitter ny leilighet!
Her på Løren har du gangavstand til skoler, barnehager, dagligvareforretninger, treningssenter, kjøpesenter, butikker, vinmonopol, T-bane, parker, restauranter og kafeer.
- Helt ny hjørneleilighet (2023)
- Vestvendt balkong på ca 11m²
- Vannbåren gulvvarme
- Sigdal-kjøkken med integrerte hvitevarer
- Felles takterrasse
- *Mulighet for kjøp av ekstra stor garasjeplass for kr 550.000,- + omk
Salgsoppgaven beskriver vesentlig og lovpålagt informasjon om eiendommen
Se komplett salgsoppgaveNyttige lenker
Nærområdet
Schala &Partners Sagene
Prisstatistikk
Lørenvangen 8 A
på annonsen
prisantydning per kvadratmeter
Prisfordeling
Pris per m² ligger 14 760 kr under snittet for leiligheter i Grünerløkka - Sofienberg.
Grafen viser antall leiligheter solgt i Grünerløkka - Sofienberg siste året fordelt på pris per m² - totalt 2 424 leiligheter
Antall boliger
Kvadratmeterpris tilsvarer prisantydning pluss fellesgjeld per kvadratmeter (p-rom eller BRA-i). Prisene i grafen er avrundet til nærmeste 1000 kr.
Annonseinformasjon
| FINN-kode | 332267639 |
|---|---|
| Sist endret | 09. feb. 2024 12:59 |
| Referanse | 19230226 |
Annonsene kan være mangelfulle i forhold til lovpålagt opplysningsplikt. Før bindende avtale inngås oppfordres interessenter til å innhente komplett informasjon fra meglerforetaket, selger eller utleier.
























































