Bildegalleri

EIE eiendomsmegling ved Daniel Bruce har gleden av å presentere Tiller-Ringen 50B - En særdeles flott og innbydende enebolig i et populært boligområde.
Lekker, innholdsrik enebolig - Stilfullt oppgradert - Innredet kjeller - Garasje - Attraktivt boområde - Nært barnehage
Nøkkelinfo
- Boligtype
- Enebolig
- Eieform
- Eier (Selveier)
- Soverom
- 5
- Primærrom
- 223 m²
- Bruksareal
- 237 m²
- Byggeår
- 1997
- Energimerking
- D - Oransje
- Tomteareal
- 1 014 m² (eiet)
Fasiliteter
Om boligen
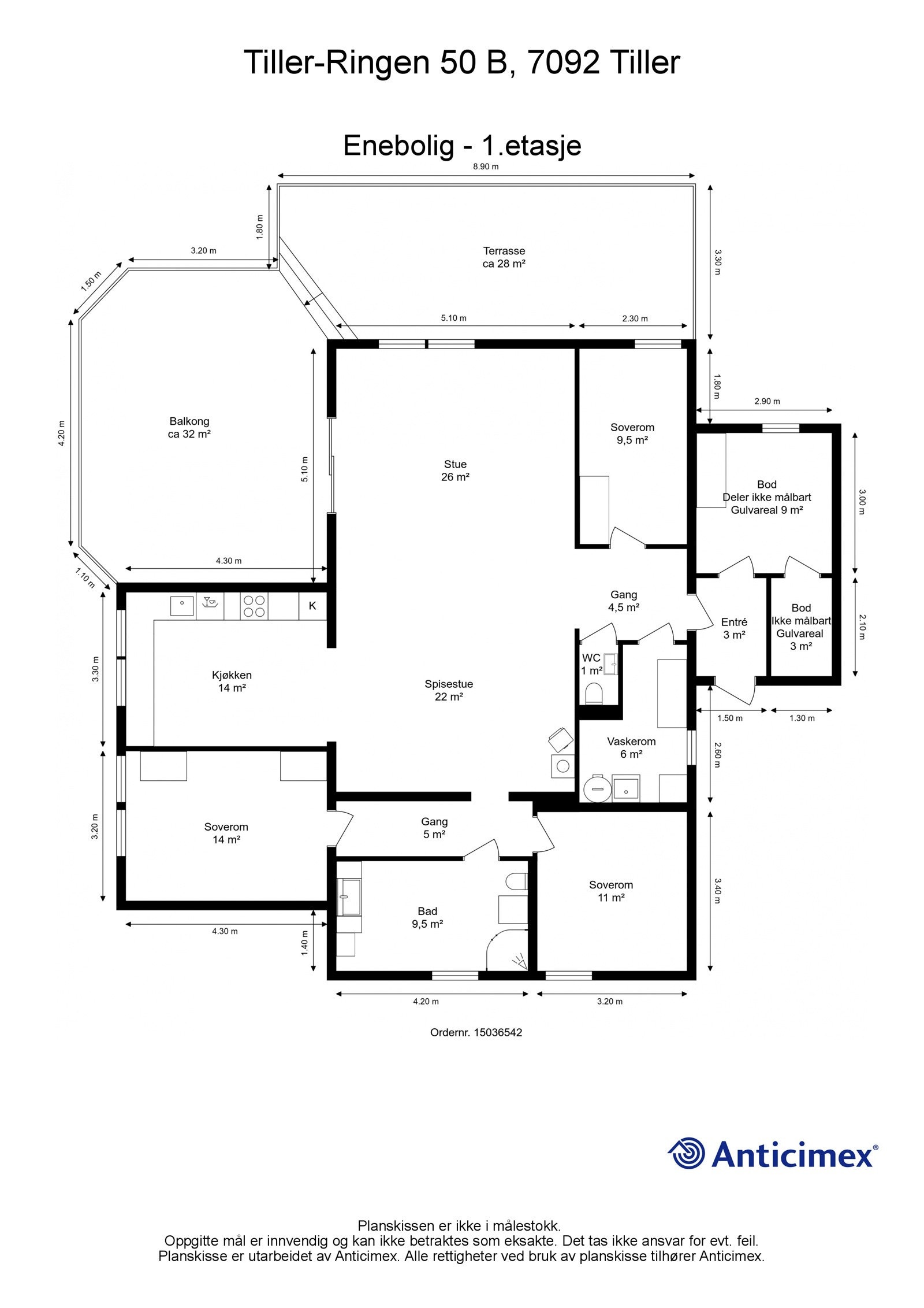
EIE eiendomsmegling ved Daniel Bruce har gleden av å presentere Tiller-Ringen 50B - En innbydende og påkostet enebolig med god planløsning. Boligen ligger i et attraktivt område med gode solforhold og meget familievennlig beliggenhet. Herfra har du gangavstand til skoler, barnehager, buss samt turmuligheter.
Kvaliteter verdt å fremheve:
- Særdeles flott familiebolig fra 1997 over to plan.
- Betydelig renovert i perioden 2021-2022.
- Innredet sokkeletasje med stue/kjøkken, bad og 2 soverom (p.t utleid for 14.000,- pr mnd).
- Sørvendt balkong på 32 kvm som gir meget gode solforhold.
- Baderom, toalettrom og praktisk vaskerom i 1.etg.
- Stor dobbelgarasje, samt flere parkeringsplasser på egen gårdsplass.
- Balansert ventilasjon.
- Gode lagringsmuligheter.
- Eiet tomt på 1014 m2, med stort uteområde og lite innsyn.
Salgsoppgaven beskriver vesentlig og lovpålagt informasjon om eiendommen
Se komplett salgsoppgaveNærområdet
EIE eiendomsmegling Heimdal
Prisstatistikk
Tiller-Ringen 50 B
på annonsen
prisantydning per kvadratmeter
Prisfordeling
Pris per m² ligger 1 690 kr over snittet for eneboliger i Trondheim Sør.
Grafen viser antall eneboliger solgt i Trondheim Sør siste året fordelt på pris per m² - totalt 154 eneboliger
Antall boliger
Kvadratmeterpris tilsvarer prisantydning pluss fellesgjeld per kvadratmeter (p-rom eller BRA-i). Prisene i grafen er avrundet til nærmeste 1000 kr.
Annonsene kan være mangelfulle i forhold til lovpålagt opplysningsplikt. Før bindende avtale inngås oppfordres interessenter til å innhente komplett informasjon fra meglerforetaket, selger eller utleier.




























































