Bildegalleri

Stor og tilnærmet flat tomt
Solgt
Renovert og betydelig oppgradert tømret enebolig på stor og solrik tomt
Prisantydning2 190 000 kr
Nøkkelinfo
- Boligtype
- Enebolig
- Eieform
- Eier (Selveier)
- Soverom
- 3
- Primærrom
- 97 m²
- Bruksareal
- 182 m²
- Byggeår
- 1951
- Energimerking
- E - Gul
- Rom
- 4
- Tomteareal
- 2 684 m² (eiet)
- Bruttoareal
- 208 m²
Fasiliteter
Balkong/Terrasse
Barnevennlig
Bredbåndstilknytning
Garasje/P-plass
Hage
Kjæledyr tillatt
Ingen gjenboere
Kabel-TV
Offentlig vann/kloakk
Peis/Ildsted
Rolig
Utsikt
Bademulighet
Fiskemulighet
Turterreng
Om boligen
- Ligger i et rolig boligområde i Auklandshamn med kort avstand til barnehage, skole og butikk. Like mot sør ligger et flott ferskvann Mjånestjørna.
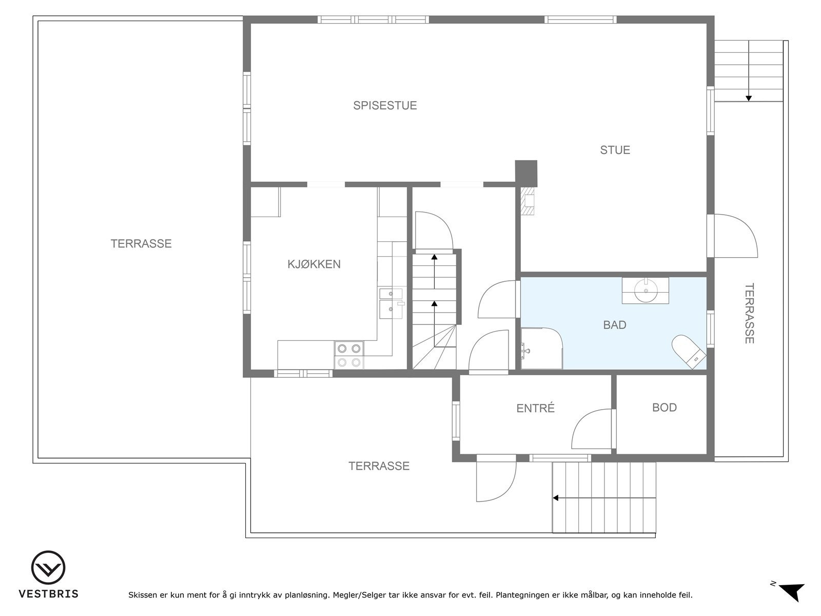
- Inneholder: Vindfang, bod gang, bad, vinkelstue, og kjøkken. Loft med gang og 3 soverom. Stort kjellerrom med god lagringsplass, snekkerbod og vaskerom. Utebod.
- All oppussing ble tatt i tiden rundt år 2010. Det inkluderer bytte av de aller fleste vinduer, ny kledning og etterisolering, to nye terrasser, nye utvendige trapper, komplett elektrisk anlegg, komplett nytt vann (rør-i-rør)- og avløp rørsystem innvendig og helt ut til kommunal tilknytning i 2012, nytt tak (2009), alle innvendige overflater og innredninger, bad (2010-2012) og kjøkken (2012). Rehab. pipe.
- Nymalt utvendig.
- Altibox innlagt.
- Inneholder: Vindfang, bod gang, bad, vinkelstue, og kjøkken. Loft med gang og 3 soverom. Stort kjellerrom med god lagringsplass, snekkerbod og vaskerom. Utebod.
- All oppussing ble tatt i tiden rundt år 2010. Det inkluderer bytte av de aller fleste vinduer, ny kledning og etterisolering, to nye terrasser, nye utvendige trapper, komplett elektrisk anlegg, komplett nytt vann (rør-i-rør)- og avløp rørsystem innvendig og helt ut til kommunal tilknytning i 2012, nytt tak (2009), alle innvendige overflater og innredninger, bad (2010-2012) og kjøkken (2012). Rehab. pipe.
- Nymalt utvendig.
- Altibox innlagt.
NB: Knappen for å vise hele beskrivelsen har kun en visuell effekt.
NB: Knappen for å vise hele beskrivelsen har kun en visuell effekt.
Salgsoppgaven beskriver vesentlig og lovpålagt informasjon om eiendommen
Se komplett salgsoppgaveNyttige lenker
Nærområdet
Eiendomsmegler A AS
Det bor en A i oss alle
Prisstatistikk
Øklandsvegen 800
3 196 klikk
på annonsen
22 577 kr
prisantydning per kvadratmeter
Prisfordeling
Pris per m² ligger 3 577 kr over snittet for eneboliger i Sveio.
Grafen viser antall eneboliger solgt i Sveio siste året fordelt på pris per m² - totalt 50 eneboliger
Antall boliger
Kvadratmeterpris tilsvarer prisantydning pluss fellesgjeld per kvadratmeter (p-rom eller BRA-i). Prisene i grafen er avrundet til nærmeste 1000 kr.
Annonseinformasjon
| FINN-kode | 329839029 |
|---|---|
| Sist endret | 15. jan. 2024 08:49 |
| Referanse | EMA1.23604 |
Annonsene kan være mangelfulle i forhold til lovpålagt opplysningsplikt. Før bindende avtale inngås oppfordres interessenter til å innhente komplett informasjon fra meglerforetaket, selger eller utleier.

























































