Bildegalleri

Lundestadtoppen 26 presenteres av Kenneth Graarud Olsen i Krogsveen. En av sentrums fineste utsiktstomter.
Lundestadtoppen / Fjeldberg
Høytliggende sentrumsnær enebolig med fantastisk utsikt på meget attraktiv og solrik tomt. 4 sov. Innerst i blindgate.
Prisantydning6 890 000 kr
Nøkkelinfo
- Boligtype
- Enebolig
- Eieform
- Eier (Selveier)
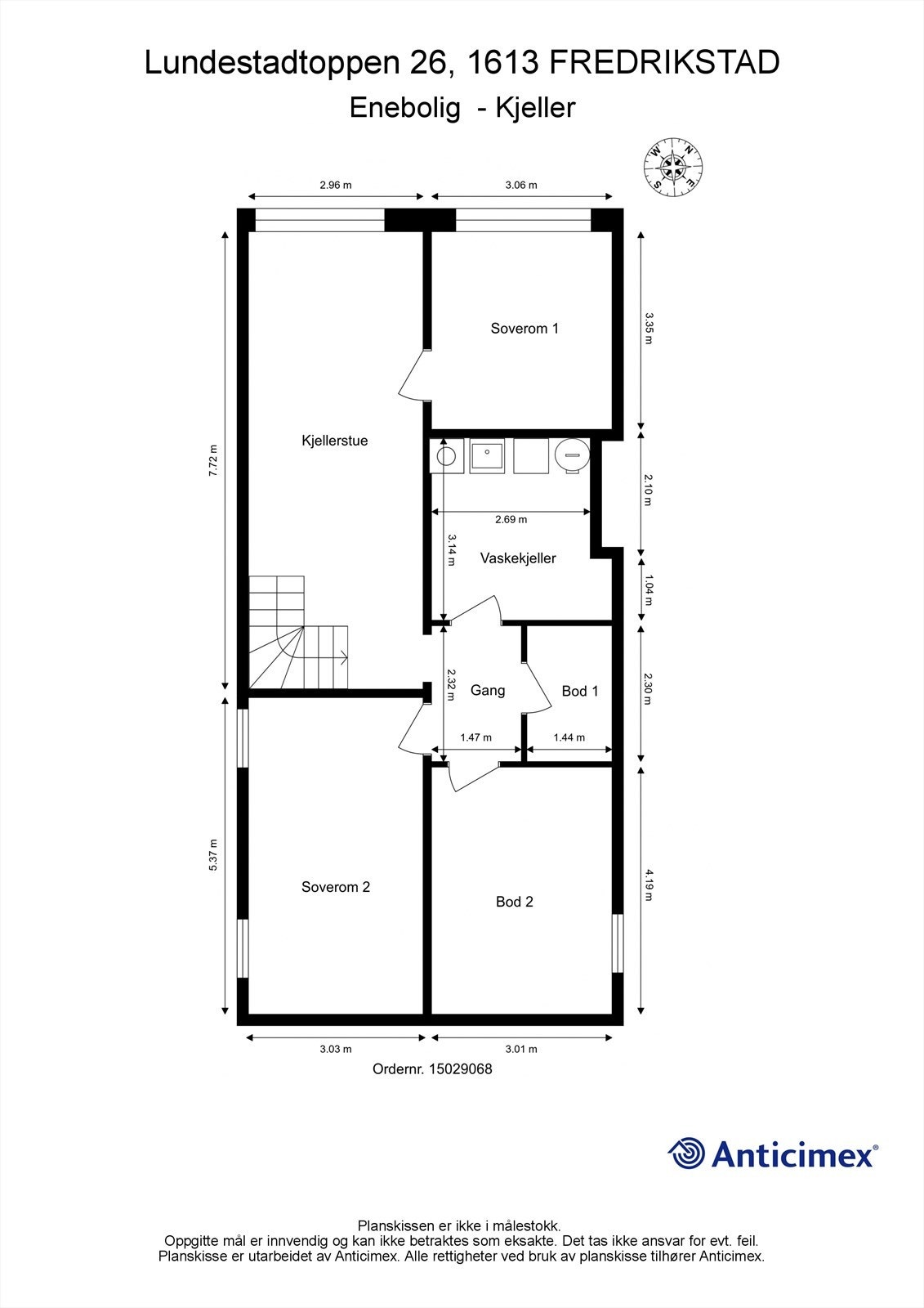
- Soverom
- 4
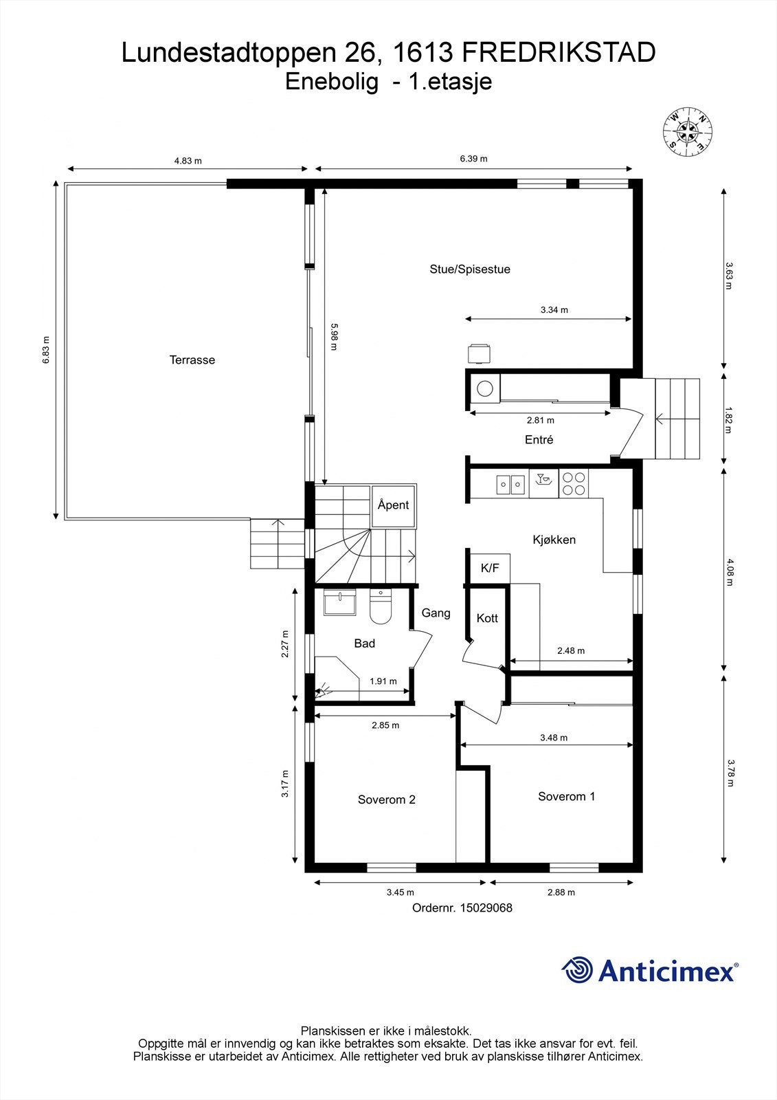
- Internt bruksareal
- 167 m² (BRA-i)
- Bruksareal
- 167 m²
- Balkong/Terrasse
- 33 m² (TBA)
- Etasje
- 2
- Byggeår
- 1978
- Energimerking
- E - Oransje
- Rom
- 6
- Tomteareal
- 679 m² (eiet)
Fasiliteter
Balkong/Terrasse
Barnevennlig
Bredbåndstilknytning
Garasje/P-plass
Hage
Kjæledyr tillatt
Ingen gjenboere
Offentlig vann/kloakk
Peis/Ildsted
Rolig
Sentralt
Utsikt
Utvidelsesmuligheter
Turterreng
Om boligen
Høytliggende enebolig i rolige omgivelser på Lundestadtoppen med fantastisk utsikt og meget attraktiv tomt
- Flott utsikt til Vesterelven med sydvest-vendt terrasse på ca 33 m². - sol dagen gjennom
- Pusset opp og modernisert siden 2010-tallet
- IKEA kjøkkeninnredning fra 2015 med integrerte hvitevarer
- Bad modernisert rundt 2012
- Alle yttervegger i 1etasje, i kjelleren på soverommene og i tv stue er etterisolerte innvendig med 5cm mineralull
- Vinduer av tre og to-/tre-lags glass fra 2010, 2012 og 2021
- Garasje påbegynt med potensial, oppføring må søkes om
- Tilbaketrukket beliggenhet, innerst i gaten
- Fredelig nabolag uten gjennomgangstrafikk
- Sentrale, men rolige omgivelser
- Enkel tilgang til et bredt kollektivtilbud
NB: Knappen for å vise hele beskrivelsen har kun en visuell effekt.
NB: Knappen for å vise hele beskrivelsen har kun en visuell effekt.
Salgsoppgaven beskriver vesentlig og lovpålagt informasjon om eiendommen
Se komplett salgsoppgaveNyttige lenker
Nærområdet
Krogsveen Fredrikstad og Sarpsborg
Velkommen til en enklere boligreise.
Annonseinformasjon
| FINN-kode | 328078442 |
|---|---|
| Sist endret | 05. okt. 2025 11:54 |
| Referanse | KR67.2311 |
Annonsene kan være mangelfulle i forhold til lovpålagt opplysningsplikt. Før bindende avtale inngås oppfordres interessenter til å innhente komplett informasjon fra meglerforetaket, selger eller utleier.










































