Bildegalleri

Velkommen til Oldra Gård
Gårdsbruk med hønsehus og saufjøs sentralt i Harstad - Godt vedlikehold bolighus - Stor eiendom på 913,8 dekar
Nøkkelinfo
- Boligtype
- Gårdsbruk/Småbruk
- Eieform
- Eier (Selveier)
- Primærrom
- 1 m²
- Byggeår
- 1957
- Tomt
- Eiet
- Bruttoareal
- 261 m²
- Boligselgerforsikring
- Ja
Om boligen
Beliggenhet
Eiendommen ligger sentralt til i Oldra ved Kilbotn, ca. 10 km sør for Harstad sentrum. Det er kort vei til dagligvarebutikk på Kilmyra og gangavstand til Kila barne - og ungdomsskole. Det er ca. 10 min kjøretur til Harstad by med bla. kommunesenteret, kjøpesenter, restauranter, hurtigbåtterminal mv. Til flyplassen på Evenes er det ca. 30 min kjøretur.
Tomt
Iflg. Nibio gårdskart er eiendommen på ca. 913,8 dekar hvorav ca. 80 dekar er dyrka og 548,9 dekar produktiv skog.
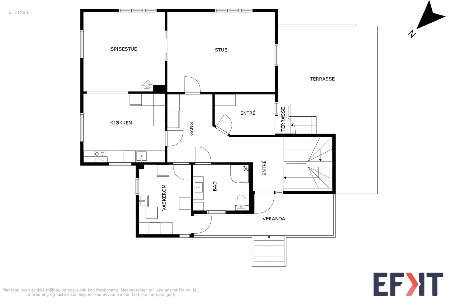
Bygninger
Våningshus, driftsbygning for sau, hønsehus for eggproduksjon, redskapshus, redskapshus/avlastningsfjøs og to garasjer
Ta kontakt for avtale om visning på tlf. 90233211 eller e-post: stian@landkreditteiendom.no
Salgsoppgaven beskriver vesentlig og lovpålagt informasjon om eiendommen
Se komplett salgsoppgaveNærområdet
Landkreditt Eiendom
Prisstatistikk
Oldra 30
på annonsen
prisantydning per kvadratmeter
Prisfordeling
Pris per m² ligger 14 000 kr under snittet for gårdsbruk/småbruk i Harstad.
Grafen viser antall gårdsbruk/småbruk solgt i Harstad siste året fordelt på pris per m² - totalt 2 gårdsbruk/småbruk
Antall boliger
Kvadratmeterpris tilsvarer prisantydning pluss fellesgjeld per kvadratmeter (p-rom eller BRA-i). Prisene i grafen er avrundet til nærmeste 1000 kr.
Annonsene kan være mangelfulle i forhold til lovpålagt opplysningsplikt. Før bindende avtale inngås oppfordres interessenter til å innhente komplett informasjon fra meglerforetaket, selger eller utleier.


































