Bildegalleri

Utsikt fra terrassen
Inaktiv
ULLERN/ MONTEBELLO
Nyoppusset lekker selveierleilighet med vestvendt terrasse og fantastisk utsikt | 3 Soverom | 2 Bad | Peis | Garasje
Prisantydning13 600 000 kr
Nøkkelinfo
- Boligtype
- Leilighet
- Eieform
- Eier (Selveier)
- Soverom
- 3
- Internt bruksareal
- 165 m² (BRA-i)
- Bruksareal
- 165 m²
- Etasje
- 1
- Byggeår
- 1972
- Energimerking
- E - Rød
- Rom
- 4
- Tomteareal
- 9 228 m²
Fasiliteter
Balkong/Terrasse
Barnevennlig
Bredbåndstilknytning
Garasje/P-plass
Kjæledyr tillatt
Kabel-TV
Offentlig vann/kloakk
Parkett
Peis/Ildsted
Rolig
Utsikt
Vaktmester-/vektertjeneste
Turterreng
Lademulighet
Om boligen
Torjusbakken 19 C er en lekker nyoppusset leilighet (2023) med stor vestvendt terrasse.
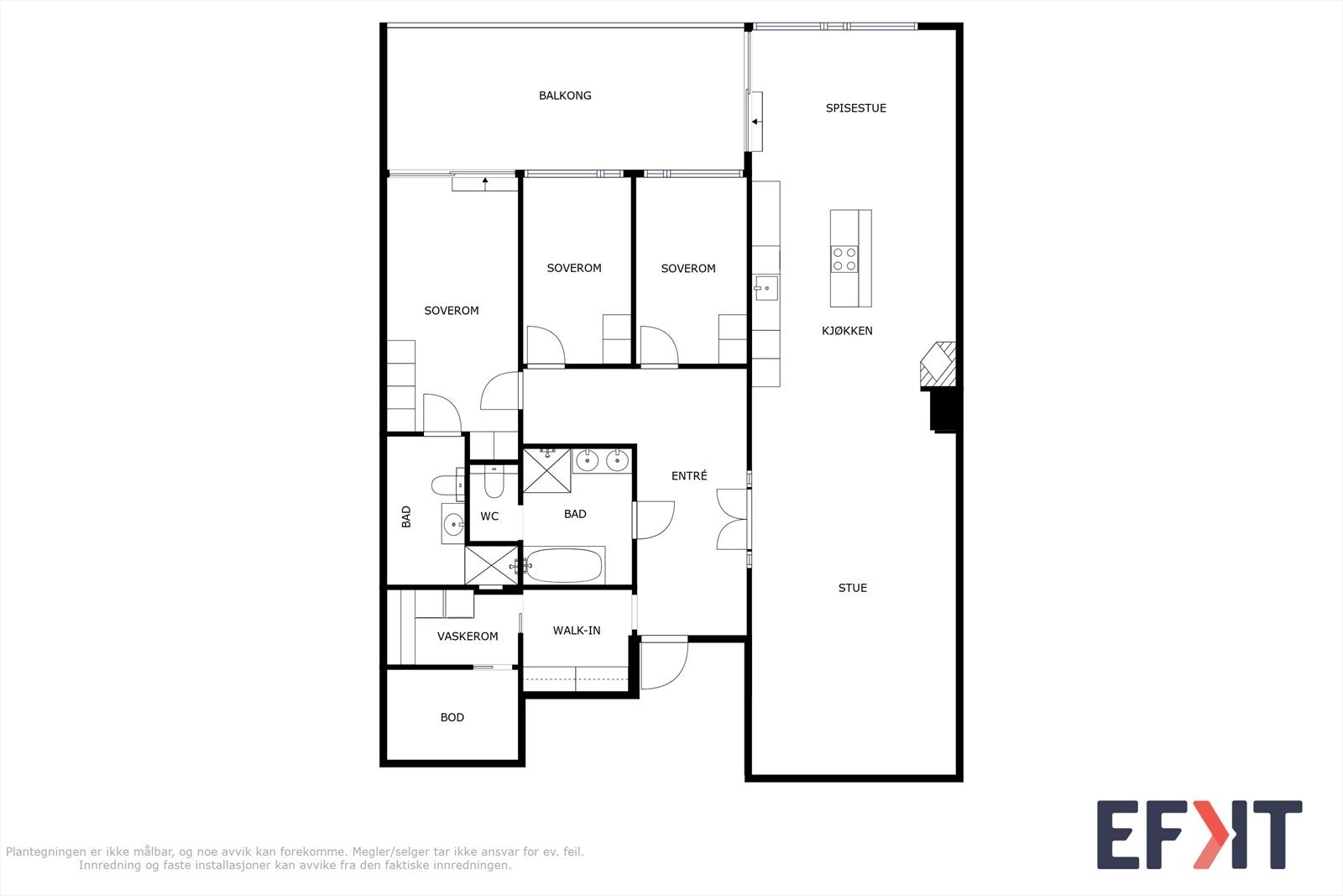
Leiligheten er gjennomgånde og inneholder en innbydende hall med walk-in-garderobe, flott kjøkken med moderne innredning fra Kvik og spisestue med utsikt, romslig stue med peis, tv-stue, 3 soverom, 2 delikate bad og vaskerom.
Det er utgang fra stuen til en terrasse på ca. 28 kvm med flott utsikt og fantastiske solforhold.
Det medfølger garasjeplass med elbillader i samme etasje - så her kommer du deg tørrskodd inn med få meter fra bildør til inngangsdør.
Eiendommen ligger i et svært attraktivt boligområde på Montebello, med kort vei inn til sentrum og fine turmuligheter i umiddelbar nærhet.
Velkommen til en hyggelig visning!
Leiligheten er gjennomgånde og inneholder en innbydende hall med walk-in-garderobe, flott kjøkken med moderne innredning fra Kvik og spisestue med utsikt, romslig stue med peis, tv-stue, 3 soverom, 2 delikate bad og vaskerom.
Det er utgang fra stuen til en terrasse på ca. 28 kvm med flott utsikt og fantastiske solforhold.
Det medfølger garasjeplass med elbillader i samme etasje - så her kommer du deg tørrskodd inn med få meter fra bildør til inngangsdør.
Eiendommen ligger i et svært attraktivt boligområde på Montebello, med kort vei inn til sentrum og fine turmuligheter i umiddelbar nærhet.
Velkommen til en hyggelig visning!
NB: Knappen for å vise hele beskrivelsen har kun en visuell effekt.
NB: Knappen for å vise hele beskrivelsen har kun en visuell effekt.
Salgsoppgaven beskriver vesentlig og lovpålagt informasjon om eiendommen
Se komplett salgsoppgaveNyttige lenker
Nærområdet
EiendomsMegler 1 Sør-Norge avd Ullevål
En del av Sparebank 1 Sør-Norge
Annonseinformasjon
| FINN-kode | 327745298 |
|---|---|
| Sist endret | 26. okt. 2024 10:30 |
| Referanse | 2802240078 |
Annonsene kan være mangelfulle i forhold til lovpålagt opplysningsplikt. Før bindende avtale inngås oppfordres interessenter til å innhente komplett informasjon fra meglerforetaket, selger eller utleier.



























