Bildegalleri

Lys 3-roms med en gjennomgående planløsning, fin størrelse på rommene og en super beliggenhet!
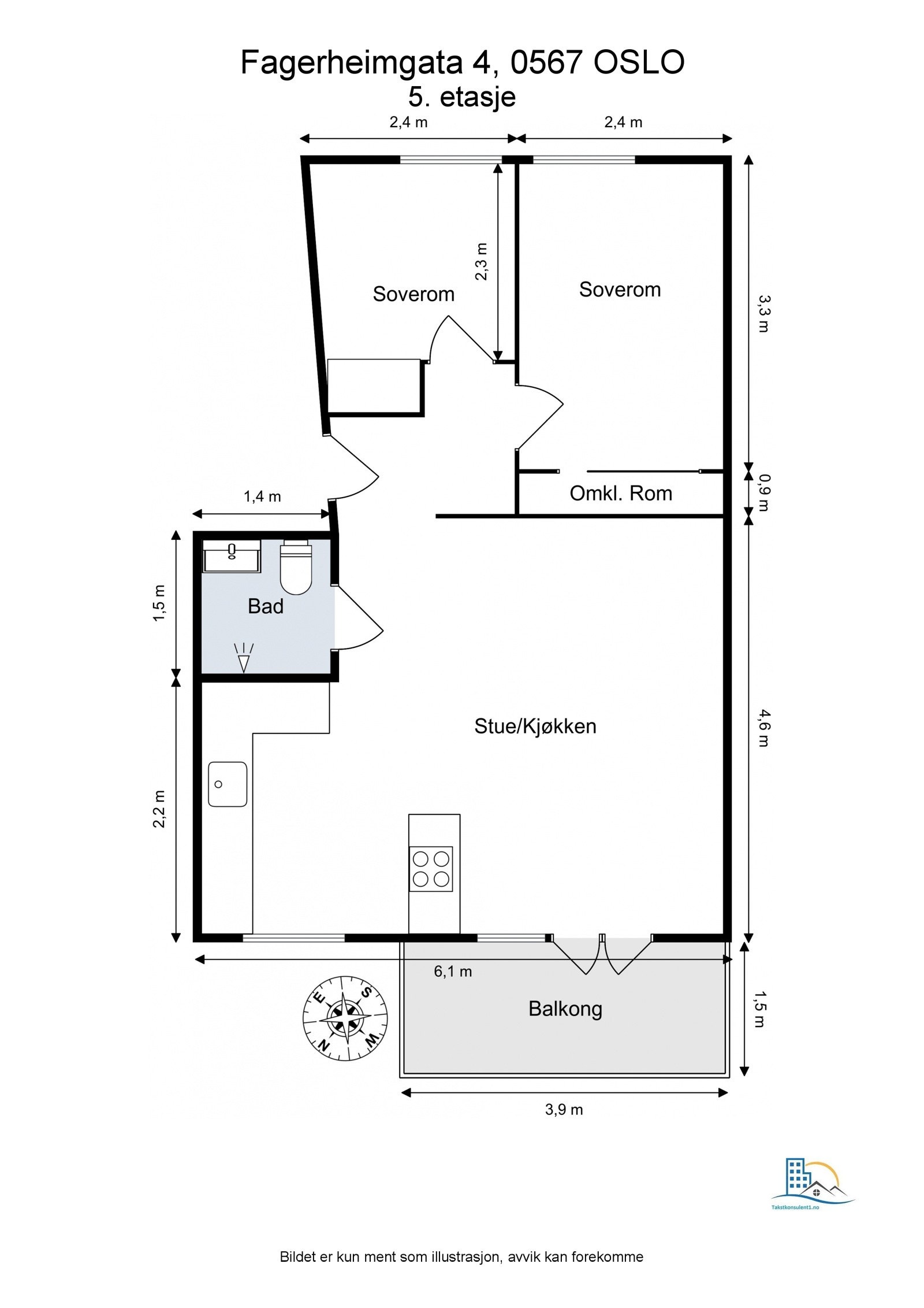
Super 3-roms med nordvestvendt balkong - Gode solforhold - Varmtvann, fyring og fibernett inkl. Rolig beliggenhet
Nøkkelinfo
- Boligtype
- Leilighet
- Eieform
- Andel
- Soverom
- 2
- Primærrom
- 50 m²
- Bruksareal
- 50 m²
- Etasje
- 5
- Byggeår
- 1933
- Energimerking
- G - Mørkegrønn
- Tomteareal
- 128 m² (eiet)
Fasiliteter
Om boligen
Lys 3-roms med en gjennomgående planløsning, fin størrelse på rommene og en super beliggenhet!
Leiligheten har flotte originale tregulv, mye lys og er malt i tidsriktige farger.
Her vil du bo i toppetasjen med svært lite innsyn, hvor du har fin utsikt fra balkongen og kan nyte solen fra ca. midt på dagen til sen kveld.
- Nordvestvendt balkong med optimale solforhold
- Fjernvarme, varmtvann og fibernett inkl. (holder strømkostnadene nede!)
- Godt med bodplass i to boder
- Lave kjøpsomkostninger, ingen dok.avgift
- IN-ordning, mulighet for å nedbetale deler av fellesgjelden og få redusert felleskostnader med ca. kr. 732,- pr. mnd
- Mulighet for rask overtakelse
Rolig og skjermet beliggenhet, med kort gåavstand til alt hovedstaden har å by på!
For privatvisning, ta kontakt med Eiendomsmegler Aida Rajic.
Salgsoppgaven beskriver vesentlig og lovpålagt informasjon om eiendommen
Se komplett salgsoppgaveNærområdet
EIE eiendomsmegling Sinsen & Carl Berner
Prisstatistikk
Fagerheimgata 4
på annonsen
prisantydning per kvadratmeter
Prisfordeling
Pris per m² ligger 6 440 kr under snittet for leiligheter i Grünerløkka - Sofienberg.
Grafen viser antall leiligheter solgt i Grünerløkka - Sofienberg siste året fordelt på pris per m² - totalt 2 419 leiligheter
Antall boliger
Kvadratmeterpris tilsvarer prisantydning pluss fellesgjeld per kvadratmeter (p-rom eller BRA-i). Prisene i grafen er avrundet til nærmeste 1000 kr.
Annonseinformasjon
| FINN-kode | 327353830 |
|---|---|
| Sist endret | 16. nov. 2023 13:29 |
| Referanse | 92230214 |
Annonsene kan være mangelfulle i forhold til lovpålagt opplysningsplikt. Før bindende avtale inngås oppfordres interessenter til å innhente komplett informasjon fra meglerforetaket, selger eller utleier.































