Bildegalleri

Velkommen til en sjarmerende og pen leilighet over 2-plan. Leiligheten har gjennomgående god takhøyde.
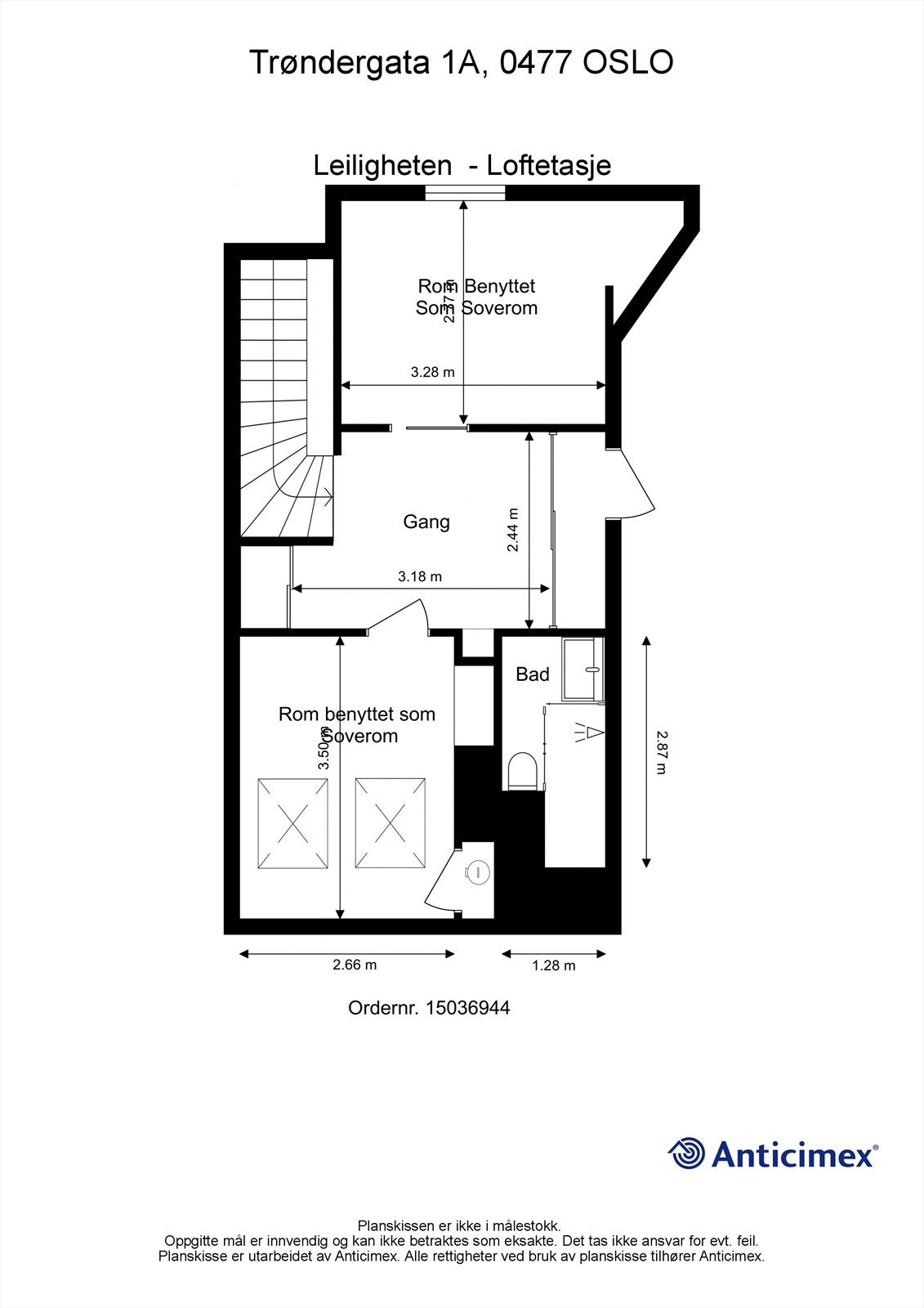
Hjerte av Torshov - Nydelig loftsleilighet over 2-plan med to bad og peis. Balkong vendt ut mot bakgård.
Nøkkelinfo
- Boligtype
- Leilighet
- Eieform
- Andel
- Soverom
- 2
- Internt bruksareal
- 85 m² (BRA-i)
- Bruksareal
- 95 m²
- Eksternt bruksareal
- 10 m² (BRA-e)
- Balkong/Terrasse
- 4 m² (TBA)
- Etasje
- 4
- Byggeår
- 1918
- Energimerking
- G - Rød
- Rom
- 3
- Tomteareal
- 2 221 m² (eiet)
Om boligen
Beliggenheten er sentral midt på Torshov. der det er kort vei til offentlig kommunikasjon som bussholdeplass i Trøndergata og trikk i Vogts gate. Ut fra bygningen kommer man til flere nisjebutikker på Torshov og her er det tilgang til flere caféer, samt få minutters gange til Akerselven.
Salgsoppgaven beskriver vesentlig og lovpålagt informasjon om eiendommen
Se komplett salgsoppgaveNyttige lenker
Nærområdet
Krogsveen Grünerløkka og Sagene
Prisstatistikk
Trøndergata 1A
på annonsen
prisantydning per kvadratmeter
Prisfordeling
Pris per m² ligger 9 574 kr under snittet for leiligheter i Sagene - Torshov.
Grafen viser antall leiligheter solgt i Sagene - Torshov siste året fordelt på pris per m² - totalt 2 363 leiligheter
Antall boliger
Kvadratmeterpris tilsvarer prisantydning pluss fellesgjeld per kvadratmeter (p-rom eller BRA-i). Prisene i grafen er avrundet til nærmeste 1000 kr.
Annonseinformasjon
| FINN-kode | 326631976 |
|---|---|
| Sist endret | 20. mai 2025 06:29 |
| Referanse | KR42.2348 |
Annonsene kan være mangelfulle i forhold til lovpålagt opplysningsplikt. Før bindende avtale inngås oppfordres interessenter til å innhente komplett informasjon fra meglerforetaket, selger eller utleier.








































