Bildegalleri

EIE Eiendomsmegling v/ Jr. Partner Håkon Hovland presenterer Bjørnstjerne Bjørnsons Gate 22A!
Flott rekkehus med 3 soverom | Solrike terrasser | Grenser til en stor felles uteområde!
Nøkkelinfo
- Boligtype
- Rekkehus
- Eieform
- Andel
- Soverom
- 3
- Primærrom
- 119 m²
- Bruksareal
- 119 m²
- Byggeår
- 1954
- Energimerking
- F - Oransje
- Rom
- 4
- Tomteareal
- 1 194 m² (eiet)
Fasiliteter
Om boligen
EIE Eiendomsmegling Stavanger ved Jr. Partner Håkon Hovland presenterer Bjørnstjerne Bjørnsons Gate 22A!
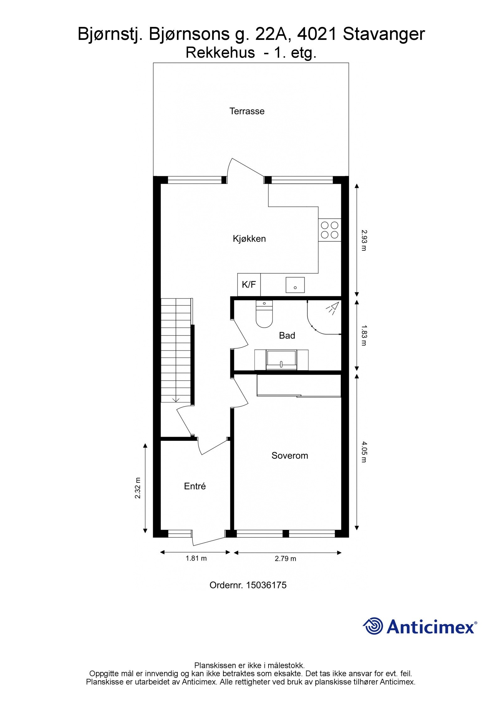
Dette er et innholdsrikt og koselig rekkehus over 3 plan i et barnevennlig og etablert område. Boligen grenser til et stort felles uteområde.
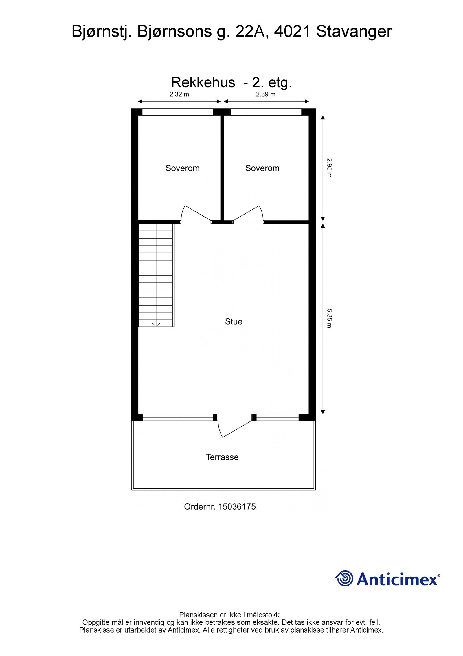
Boligens innhold:
1. etasje: Entré, bad, kjøkken og soverom.
2. etasje: Stue og 2 soverom.
Kjeller: Kjellerrom og vaskerom.
Kort om boligen:
- Praktisk og funksjonell rom/planløsning
- Godt lysinnslipp inn i boligen
- Pen hage og 2 terrasser
- Gode solforhold
- Gode parkeringsmuligheter
- Sentral beliggenhet
- Barnevennlig
- God offentlig kommunikasjon
Velkommen på visning!
Salgsoppgaven beskriver vesentlig og lovpålagt informasjon om eiendommen
Se komplett salgsoppgaveNærområdet
EIE eiendomsmegling - Rogaland Eiendomsmegling AS
Prisstatistikk
Bjørnstjerne Bjørnsons gate 22A
på annonsen
prisantydning per kvadratmeter
Prisfordeling
Pris per m² ligger 12 872 kr under snittet for rekkehus i Tjensvoll/Ullandhaug.
Grafen viser antall rekkehus solgt i Tjensvoll/Ullandhaug siste året fordelt på pris per m² - totalt 33 rekkehus
Antall boliger
Kvadratmeterpris tilsvarer prisantydning pluss fellesgjeld per kvadratmeter (p-rom eller BRA-i). Prisene i grafen er avrundet til nærmeste 1000 kr.
Annonseinformasjon
| FINN-kode | 326069955 |
|---|---|
| Sist endret | 09. nov. 2023 12:34 |
| Referanse | 54230320 |
Annonsene kan være mangelfulle i forhold til lovpålagt opplysningsplikt. Før bindende avtale inngås oppfordres interessenter til å innhente komplett informasjon fra meglerforetaket, selger eller utleier.






































