Bildegalleri

EIE eiendomsmegling v/Benedikte Dehli har gleden av å presentere Borghild Langgaards veg 12.
Moderne enebolig i kjede med flotte uteplasser og langstrakt utsikt | Barnevennlig | IN-ordning | Carport | Gasspeis
Nøkkelinfo
- Boligtype
- Enebolig
- Eieform
- Andel
- Soverom
- 3
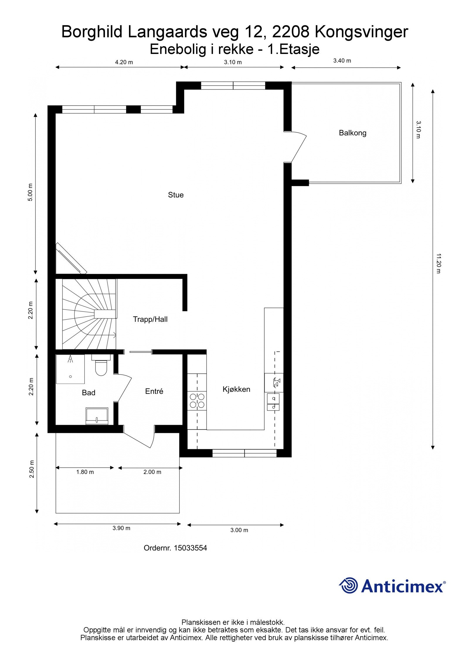
- Primærrom
- 131 m²
- Bruksareal
- 138 m²
- Byggeår
- 2017
- Energimerking
- B - Rød
- Tomteareal
- 4 593 m² (eiet)
Fasiliteter
Visning
Om boligen
Velkommen til Borghild Langaards veg 12!
Borettslaget har felles belåning som individuelt kan nedbetales. Om man nedbetaler andel fellesgjeld vil mnd fellesk. bli ca. kr 3 800,- Boligen har en god planløsning og fin standard. Fantastisk fin utsikt over Kongsvinger by. Boligen har egen carport like utenfor døren og egen hage. Ønsker man en bolig man kan flytte rett inn i uten å tenke på oppussing så er dette en eiendom man ikke bør gå glipp av! Meget populær og barnevennlig beliggenhet i Marikollen. Kort vei til skole, barnehage, lekeplass og flotte turområder.
Høydepunkter:
- Innholdsrik og fin enebolig i kjede
- Åpen kjøkkenløsning mot stue
- Gasspeis i stue
- 3 gode soverom + en praktisk sovealkove
- 2 pent flislagte bad
- Egen hage
- Carport
- Sentralstøvsuger
- Godt med bodplass
- IN-ordning
Velkommen på visning!
Salgsoppgaven beskriver vesentlig og lovpålagt informasjon om eiendommen
Se komplett salgsoppgaveNærområdet
EIE eiendomsmegling Kongsvinger
Annonseinformasjon
| FINN-kode | 325014375 |
|---|---|
| Sist endret | 21. okt. 2025 09:30 |
| Referanse | 66230044 |
Annonsene kan være mangelfulle i forhold til lovpålagt opplysningsplikt. Før bindende avtale inngås oppfordres interessenter til å innhente komplett informasjon fra meglerforetaket, selger eller utleier.






























