Bildegalleri

Jon-Kristian Krybelsrud v/ Privatmegleren har gleden av å presentere fantastiske Risalléen 18 B! Velkommen til hyggelig visning!
Stor og påkostet enebolig m hybeldel | Skjermet, solrik hage | Dobbelgarasje | Høy standard - Skreddersydde løsninger
Nøkkelinfo
- Boligtype
- Enebolig
- Eieform
- Eier (Selveier)
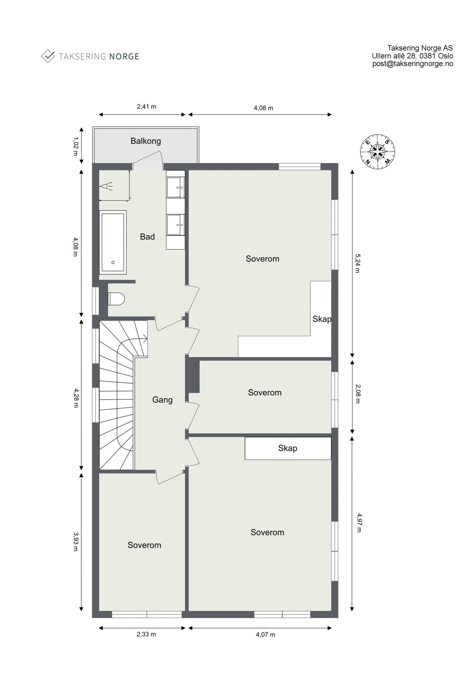
- Soverom
- 4
- Primærrom
- 241 m²
- Bruksareal
- 241 m²
- Byggeår
- 1938
- Energimerking
- E - Rød
- Tomteareal
- 1 394 m² (eiet)
- Boligselgerforsikring
- Ja
Fasiliteter
Om boligen
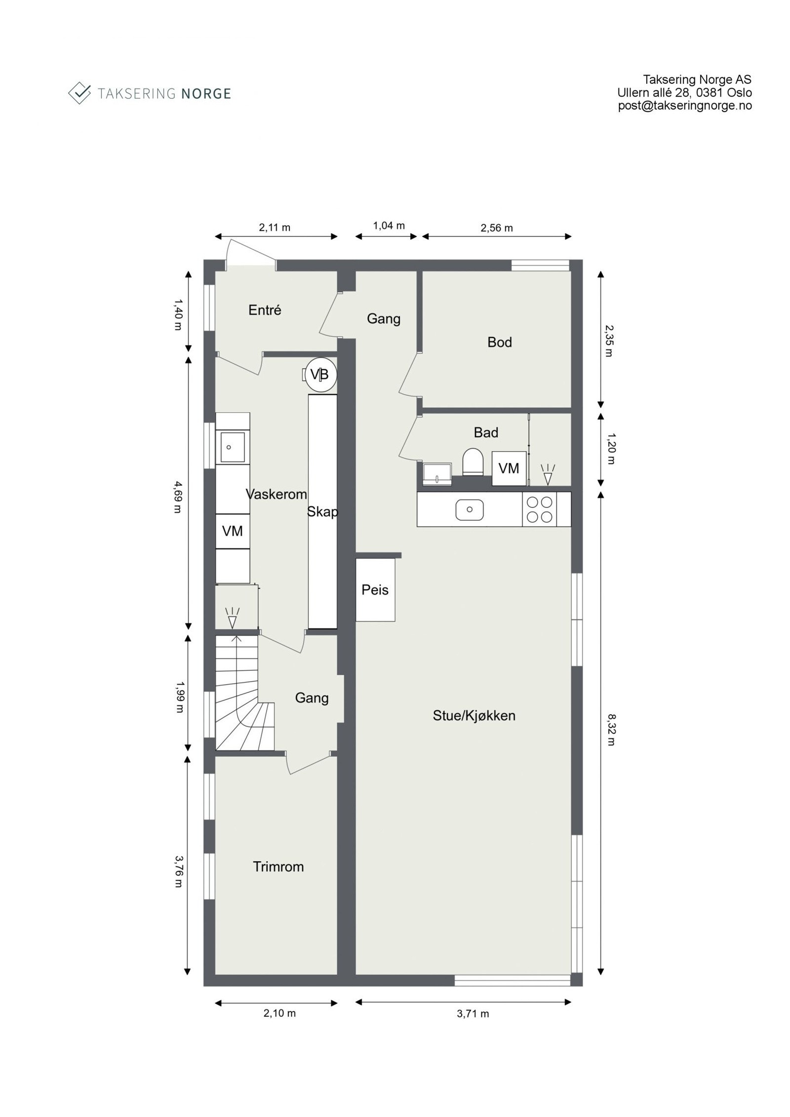
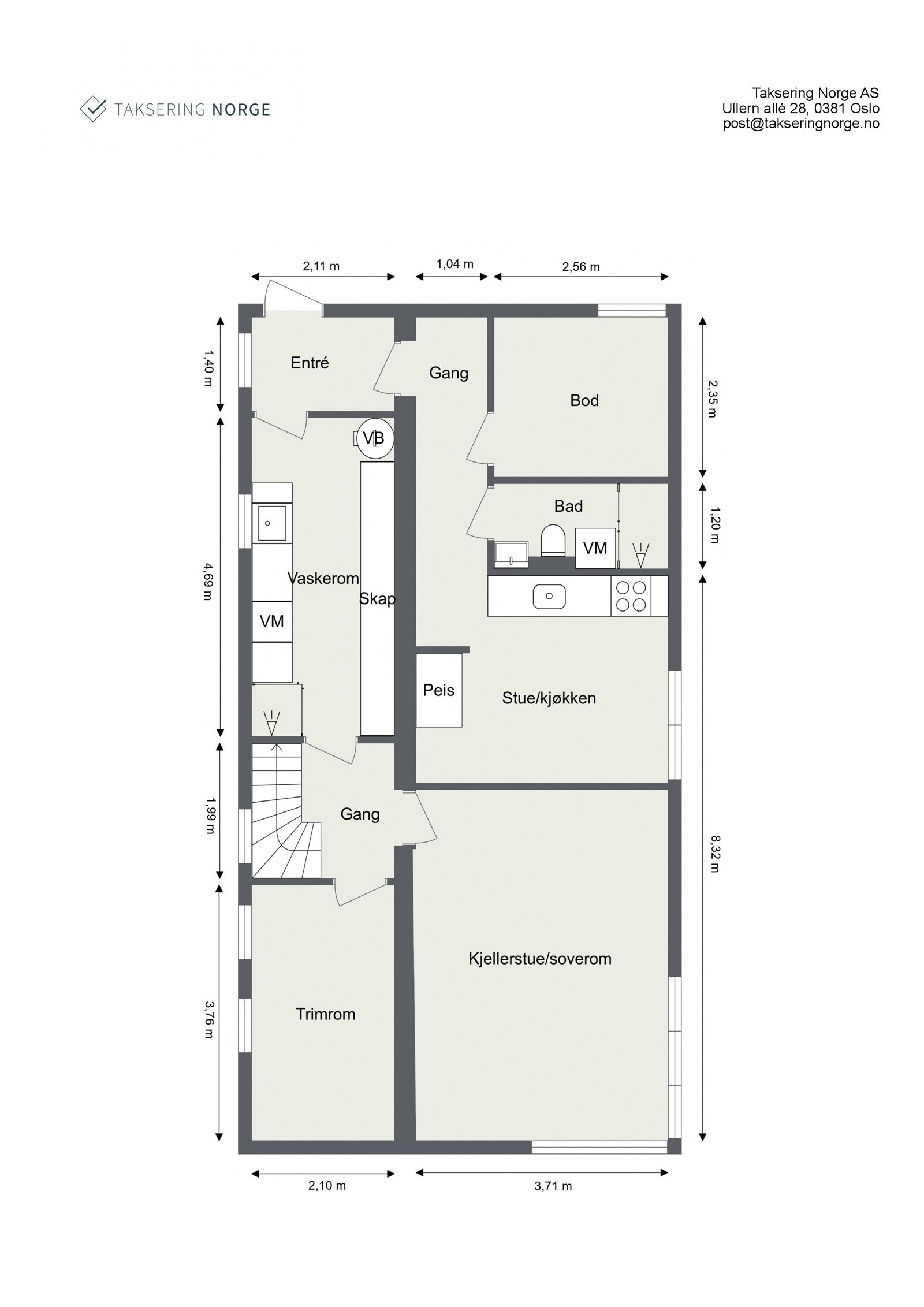
- Stor, innholdsrik og betydelig påkostet enebolig med nyere dobbelgarasje og hybeldel med egen inngang (kr. 13.000 pr mnd + strøm)
- Skjermet og pent opparbeidet hage med gode solforhold og pergola
- Renovert og betydelig påkostet i sin helhet mellom 2014-2015, 2017-2018 og i 2022
- Høy standard, flotte materialvalg og pene overflater valgt av anerkjent interiørstylist
- Skreddersydde løsninger av møbelsnekker
- Stort og lekkert kjøkken fra kvalitetsleverandøren GD Arramenti med helintegrerte hvitevarer fra Miele og romslig kjøkkenøy
- 3/4 baderom i lekker utførelse
- 4/5 soverom av god størrelse
- Gulvvarme i hele 1. etg. og U. etg.
- Stilig biopeis med kleberstein i stue
- Flere integrerte høyttalere i himling
- Vaskerom med smart innredning
- Trimrom tilknyttet dusj og vaskerom
- Svært ettertraktet villaområde på Ris/Vinderen
Salgsoppgaven beskriver vesentlig og lovpålagt informasjon om eiendommen
Se komplett salgsoppgaveNyttige lenker
Nærområdet

PrivatMegleren Soria Moria
Prisstatistikk
Risalléen 18 B
på annonsen
prisantydning per kvadratmeter
Prisfordeling
Pris per m² ligger 20 659 kr over snittet for eneboliger i Vinderen.
Grafen viser antall eneboliger solgt i Vinderen siste året fordelt på pris per m² - totalt 145 eneboliger
Antall boliger
Kvadratmeterpris tilsvarer prisantydning pluss fellesgjeld per kvadratmeter (p-rom eller BRA-i). Prisene i grafen er avrundet til nærmeste 1000 kr.
Annonseinformasjon
| FINN-kode | 323159962 |
|---|---|
| Sist endret | 21. okt. 2023 12:09 |
| Referanse | 169230097 |
Annonsene kan være mangelfulle i forhold til lovpålagt opplysningsplikt. Før bindende avtale inngås oppfordres interessenter til å innhente komplett informasjon fra meglerforetaket, selger eller utleier.






































































