Bildegalleri

Velkommen til Hjorteveien 4.
Solgt
ULLEVÅL HAGEBY
Enderekkehus med idyllisk og barnevennlig beliggenhet. Moderniseringsbehov. Solrik og frodig hage. Biloppstillingsplass.
Prisantydning16 650 000 kr
Nøkkelinfo
- Boligtype
- Rekkehus
- Eieform
- Andel
- Soverom
- 3
- Primærrom
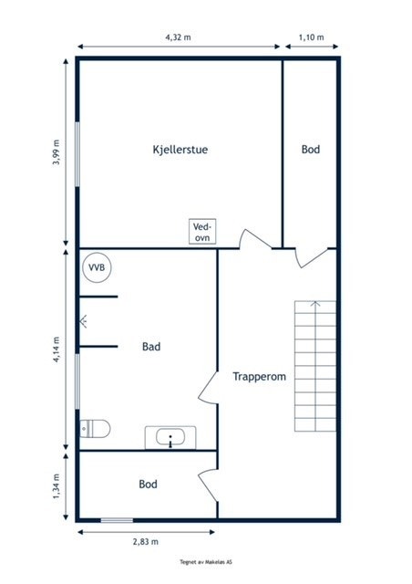
- 152 m²
- Bruksareal
- 173 m²
- Etasje
- 1
- Byggeår
- 1919
- Energimerking
- G - Oransje
- Tomteareal
- 8 039 m² (eiet)
Fasiliteter
Barnevennlig
Bredbåndstilknytning
Garasje/P-plass
Hage
Kjæledyr tillatt
Kabel-TV
Offentlig vann/kloakk
Peis/Ildsted
Rolig
Sentralt
Lademulighet
Balansert ventilasjon
Livsløpsstandard
Om boligen
Hjorteveien 4 er et attraktivt og hyggelig enderekkehus med nydelig beliggenhet i Ullevål Hageby. Boligen er svært innholdsrik og har en familievennlig planløsning over fire etasjer. Innvendig har boligen behov for modernisering - et perfekt utgangspunkt for å skape sitt eget drømmehjem. Boligen har herlig lysinnslipp med blant annet nydelig morgensol på kjøkkenet. Det er enkel tilgang til en frodig og solrik hageparsell med kveldssol. En herlig oase til stor glede for hele familien.
Boligen har i tillegg rikelig med lagringsplass både i boligen og i praktisk utebod. Med leiligheten følger egen biloppstillingsplass. Beliggenheten er rolig og idyllisk med kort vei til Ullevål skole og barnehagetilbud, Damplassen og offentlig kommunikasjon.
Velkommen til en hyggelig visning!
Boligen har i tillegg rikelig med lagringsplass både i boligen og i praktisk utebod. Med leiligheten følger egen biloppstillingsplass. Beliggenheten er rolig og idyllisk med kort vei til Ullevål skole og barnehagetilbud, Damplassen og offentlig kommunikasjon.
Velkommen til en hyggelig visning!
NB: Knappen for å vise hele beskrivelsen har kun en visuell effekt.
NB: Knappen for å vise hele beskrivelsen har kun en visuell effekt.
Salgsoppgaven beskriver vesentlig og lovpålagt informasjon om eiendommen
Se komplett salgsoppgaveNyttige lenker
Nærområdet
Sem & Johnsen
Boliger utenom det vanlige
Prisstatistikk
Hjorteveien 4
29 435 klikk
på annonsen
109 993 kr
prisantydning per kvadratmeter
Prisfordeling
Pris per m² ligger 1 993 kr over snittet for rekkehus i St.Hanshaugen - Ullevål.
Grafen viser antall rekkehus solgt i St.Hanshaugen - Ullevål siste året fordelt på pris per m² - totalt 3 rekkehus
Antall boliger
Kvadratmeterpris tilsvarer prisantydning pluss fellesgjeld per kvadratmeter (p-rom eller BRA-i). Prisene i grafen er avrundet til nærmeste 1000 kr.
Annonseinformasjon
| FINN-kode | 322392232 |
|---|---|
| Sist endret | 16. jan. 2024 09:49 |
| Referanse | 20-23-1483 |
Annonsene kan være mangelfulle i forhold til lovpålagt opplysningsplikt. Før bindende avtale inngås oppfordres interessenter til å innhente komplett informasjon fra meglerforetaket, selger eller utleier.















































