Bildegalleri

Fasade, pent opparbeidet tomt i front av boligen
Beitstad - Småbruk med romslig hus, driftsbygning, festlokale og garasje og parkeringsutleie m.m.
Prisantydning4 975 000 kr
Nøkkelinfo
- Boligtype
- Gårdsbruk/Småbruk
- Eieform
- Eier (Selveier)
- Soverom
- 3
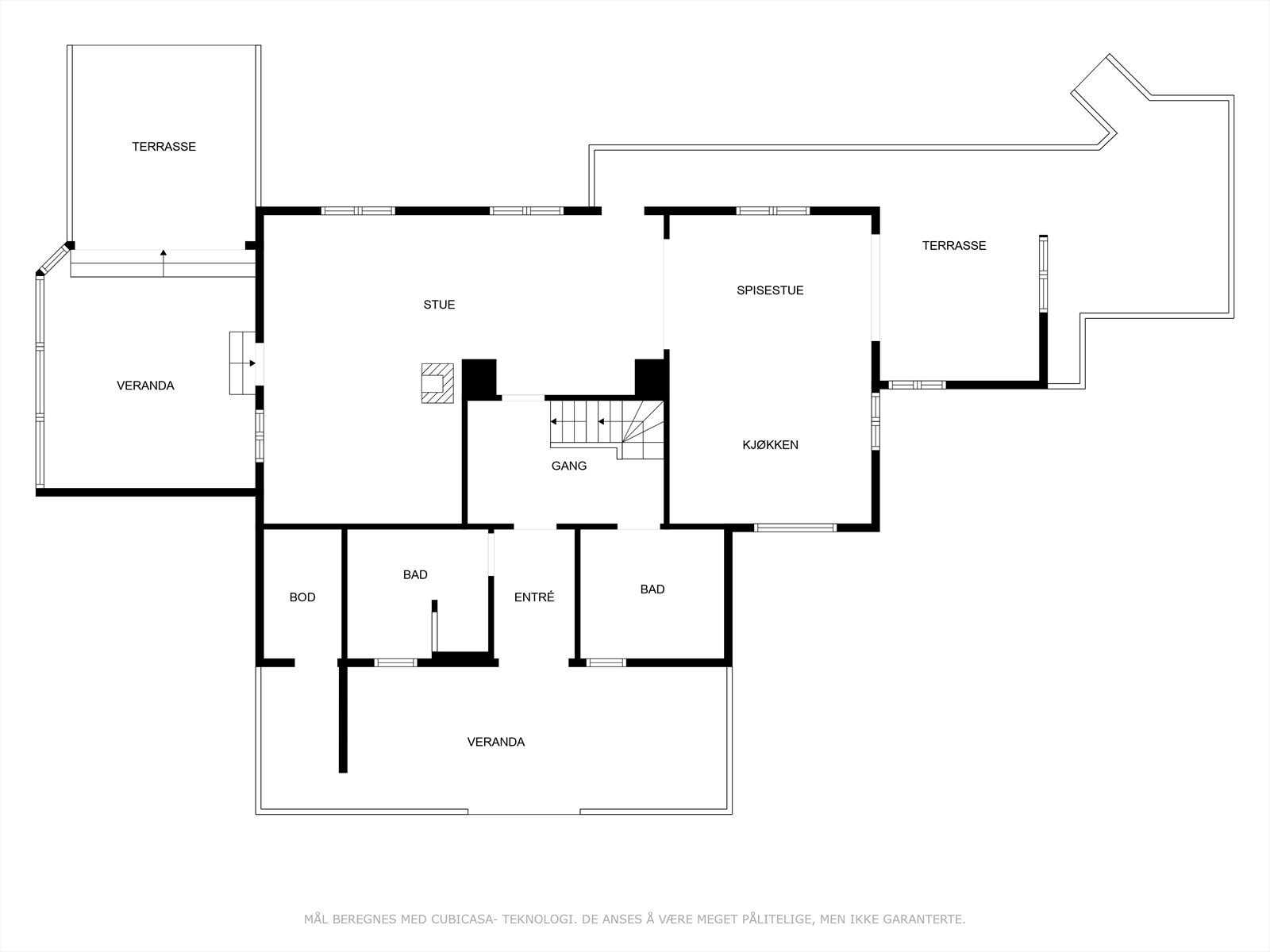
- Primærrom
- 225 m²
- Bruksareal
- 951 m²
- Etasje
- 3
- Byggeår
- 1946
- Energimerking
- G - Gul
- Tomteareal
- 13 968 m² (eiet)
Fasiliteter
Balkong/Terrasse
Barnevennlig
Garasje/P-plass
Hage
Kjæledyr tillatt
Peis/Ildsted
Rolig
Utsikt
Turterreng
Lademulighet
Balansert ventilasjon
Visning
Ved annonsert visning er det viktig at du melder deg på visningen ved å bruke visningspåmeldingsknappen eller kontakter megler. Annonserte visninger hvor det ikke er noen påmeldte innen kl. 12.00 på visningsdag vil ikke bli avholdt.
For visninger utover dette, ta direkte kontakt med megler.
VisningspåmeldingOm boligen
Småbruk med romslig hus, driftsbygning, festlokale og garasje og parkeringsutleie m.m.
2010 El-tilsyn kontrollert alle bygg.
2012/2013 Oppgradert vaskerom. Ny terrasse, delvis overbygd. Utført av faglært tømrer. Nytt overbygd inngangsparti med utvidet vaskerom mot vest, platting og takoverbygg.
2014 Kommunalt vann med nye vannledninger fremført og montert.
2015 Montert nye avløpsrør til septiktank. Opparbeidelse og drenering av gårdsplass.
2016 Ombygd deler av fjøs til festlokale.
2018 Stor gapahuk oppsatt på tunet.
2019 Montert ny varmepumpe luft til luft.
2020 Montert el-bil lader. Montert nytt sikringsskap inkl nytt inntak for hovedsikringer.
2021 Montert nytt el-anlegg på kjøkken. Nytt kjøkkenvindu mot gårdsplass. Nytt kjøkken montert av Sigdal AS. Nytt golv på kjøkken, stue og
2010 El-tilsyn kontrollert alle bygg.
2012/2013 Oppgradert vaskerom. Ny terrasse, delvis overbygd. Utført av faglært tømrer. Nytt overbygd inngangsparti med utvidet vaskerom mot vest, platting og takoverbygg.
2014 Kommunalt vann med nye vannledninger fremført og montert.
2015 Montert nye avløpsrør til septiktank. Opparbeidelse og drenering av gårdsplass.
2016 Ombygd deler av fjøs til festlokale.
2018 Stor gapahuk oppsatt på tunet.
2019 Montert ny varmepumpe luft til luft.
2020 Montert el-bil lader. Montert nytt sikringsskap inkl nytt inntak for hovedsikringer.
2021 Montert nytt el-anlegg på kjøkken. Nytt kjøkkenvindu mot gårdsplass. Nytt kjøkken montert av Sigdal AS. Nytt golv på kjøkken, stue og
NB: Knappen for å vise hele beskrivelsen har kun en visuell effekt.
NB: Knappen for å vise hele beskrivelsen har kun en visuell effekt.
Salgsoppgaven beskriver vesentlig og lovpålagt informasjon om eiendommen
Se komplett salgsoppgaveNærområdet
Aktiv Steinkjer
Annonseinformasjon
| FINN-kode | 322216478 |
|---|---|
| Sist endret | 10. sep. 2025 05:57 |
| Referanse | 1708230359 |
Annonsene kan være mangelfulle i forhold til lovpålagt opplysningsplikt. Før bindende avtale inngås oppfordres interessenter til å innhente komplett informasjon fra meglerforetaket, selger eller utleier.
















































