Bildegalleri

Velkommen til Wessels gate 3 A - Høyt og fritt i toppetasjen med mye lys
Inaktiv
ST. HANSHAUGEN V/PILESTREDET PARK
Stor og tiltalende 3(4)-roms leilighet med oppusset bad 2023 - Kjøkken 2011 - Attraktiv beliggenhet!
Prisantydning7 490 000 kr
Nøkkelinfo
- Boligtype
- Leilighet
- Eieform
- Eier (Selveier)
- Soverom
- 2
- Internt bruksareal
- 96 m² (BRA-i)
- Bruksareal
- 102 m²
- Eksternt bruksareal
- 6 m² (BRA-e)
- Etasje
- 4
- Byggeår
- 1869
- Rom
- 4
- Tomteareal
- 500 m² (eiet)
Fasiliteter
Bredbåndstilknytning
Kjæledyr tillatt
Kabel-TV
Peis/Ildsted
Rolig
Sentralt
Lademulighet
Balansert ventilasjon
Om boligen
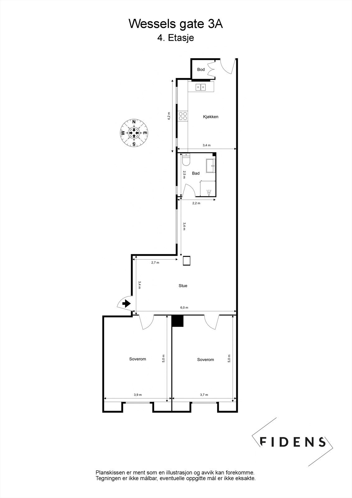
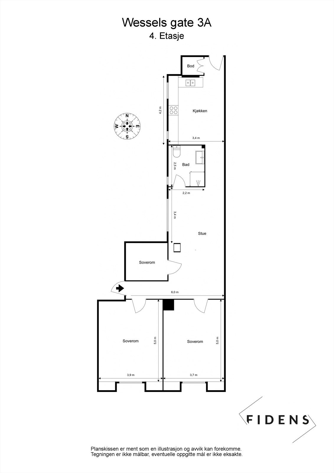
Velkommen til Wessels gate 3A, en lys, klassisk og romslig leilighet med sentrumsnær og attraktiv beliggenhet på St. Hanshaugen/Fredensborg. Her bor man perfekt til i byggets 4. etasje med store vindusflater, generøs takhøyde, klassiske detaljer og nyoppusset bad 2023.
Høydepunkter:
- Romslig leilighet med mulighet for 3 soverom.
- Pent kjøkken med god plass til spisebord.
- Generøs takhøyde på 2.82 m
- Store vinduer som gir rikelig med naturlig lys.
- Romslig oppusset bad 2023 med dusjnisje og opplegg for vaskemaskin.
- Egen vasknisje bak kjøkkenet
- Peisovn(ikke tilkoblet)
- Perfekt beliggenhet med St. Hanshaugen, Pilestredet Park og Sentrum rett utenfor døren
Høydepunkter:
- Romslig leilighet med mulighet for 3 soverom.
- Pent kjøkken med god plass til spisebord.
- Generøs takhøyde på 2.82 m
- Store vinduer som gir rikelig med naturlig lys.
- Romslig oppusset bad 2023 med dusjnisje og opplegg for vaskemaskin.
- Egen vasknisje bak kjøkkenet
- Peisovn(ikke tilkoblet)
- Perfekt beliggenhet med St. Hanshaugen, Pilestredet Park og Sentrum rett utenfor døren
NB: Knappen for å vise hele beskrivelsen har kun en visuell effekt.
NB: Knappen for å vise hele beskrivelsen har kun en visuell effekt.
Salgsoppgaven beskriver vesentlig og lovpålagt informasjon om eiendommen
Se komplett salgsoppgaveNyttige lenker
Nærområdet
Nordvik Majorstuen
Annonseinformasjon
| FINN-kode | 322214028 |
|---|---|
| Sist endret | 07. mai 2025 10:29 |
| Referanse | 8-0306/23 |
Annonsene kan være mangelfulle i forhold til lovpålagt opplysningsplikt. Før bindende avtale inngås oppfordres interessenter til å innhente komplett informasjon fra meglerforetaket, selger eller utleier.







































