Bildegalleri

Grefstadvika Edenshave
Eksklusiv Bolig i Edenshave!
Prisantydning8 300 000 kr
Nøkkelinfo
- Boligtype
- Enebolig
- Eieform
- Eier (Selveier)
- Soverom
- 5
- Primærrom
- 224 m²
- Bruksareal
- 233 m²
- Etasje
- 2
- Byggeår
- 2024
- Utleiedel
- Ja
- Tomteareal
- 603 m² (eiet)
- Grunnflate
- 141 m²
Fasiliteter
Alarm
Balkong/Terrasse
Barnevennlig
Bredbåndstilknytning
Garasje/P-plass
Lademulighet
Offentlig vann/kloakk
Parkett
Peis/Ildsted
Rolig
Sentralt
Bademulighet
Fiskemulighet
Turterreng
Visning
Ta kontakt for å avtale visning.Beliggenhet
Velkommen til dette praktfulle herskapshjemmet, en perle som utstråler tidløs eleganse. Her finner du ikke bare en bolig, men en opplevelse som du vil sette pris på hver eneste dag.
Hjemmets kreative takløsning gir en unik romfølelse og en ekstraordinær karakter. Det er her du kan skape ditt eget unike hjem, fullt av muligheter og inspirasjon.
Stue, bibliotek og et romslig allrom venter på å bli fylt med latter og minner, perfekt for sosiale sammenkomster og familiens glede. Gjennom hele hjemmet finner du den perfekte balansen mellom eleganse og funksjonalitet.
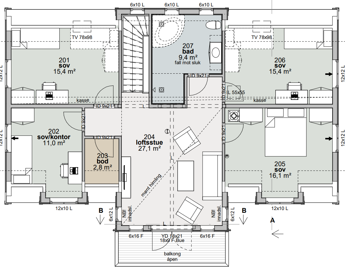
Oppe venter en lys og luftig loftstue med takhøyde som gir plass til drømmer og kreativitet. Dette er et sted hvor du kan trekke deg tilbake, slappe av og samtidig nyte den vakre atmosfæren som omgir deg.
Med fire romslige soverom oppe, er dette et hjem som har plass til hele familien og gir deg muligheten til å tilpasse rommene etter dine ønsker og behov. Det er også mulighet for et stort soverom nede, slik at du kan tilpasse boligen som det passer deg best.
Beliggenheten er perfekt for de som ønsker både natur og bekvemmelighet. Tomten ligger som en solfylt oase med kort spasertur ned til Grefstadvika og alle dens herligheter. Barna vil raskt finne veien til Moysanden for lek og aktiviteter.
For de voksne er det bare en kort spasertur langs kyststien til Strand Hotel, hvor du kan nyte en deilig lunsj eller et glass med utsikt over sjøen.
Ta kontakt med Gisle i dag på telefon 46809029 for en visning og en mulighet til å oppdage dette fantastiske hjemmet. Her venter den perfekte kombinasjonen av luksus, funksjonalitet og en livsstil som du drømmer om. Velkommen hjem!
Hjemmets kreative takløsning gir en unik romfølelse og en ekstraordinær karakter. Det er her du kan skape ditt eget unike hjem, fullt av muligheter og inspirasjon.
Stue, bibliotek og et romslig allrom venter på å bli fylt med latter og minner, perfekt for sosiale sammenkomster og familiens glede. Gjennom hele hjemmet finner du den perfekte balansen mellom eleganse og funksjonalitet.
Oppe venter en lys og luftig loftstue med takhøyde som gir plass til drømmer og kreativitet. Dette er et sted hvor du kan trekke deg tilbake, slappe av og samtidig nyte den vakre atmosfæren som omgir deg.
Med fire romslige soverom oppe, er dette et hjem som har plass til hele familien og gir deg muligheten til å tilpasse rommene etter dine ønsker og behov. Det er også mulighet for et stort soverom nede, slik at du kan tilpasse boligen som det passer deg best.
Beliggenheten er perfekt for de som ønsker både natur og bekvemmelighet. Tomten ligger som en solfylt oase med kort spasertur ned til Grefstadvika og alle dens herligheter. Barna vil raskt finne veien til Moysanden for lek og aktiviteter.
For de voksne er det bare en kort spasertur langs kyststien til Strand Hotel, hvor du kan nyte en deilig lunsj eller et glass med utsikt over sjøen.
Ta kontakt med Gisle i dag på telefon 46809029 for en visning og en mulighet til å oppdage dette fantastiske hjemmet. Her venter den perfekte kombinasjonen av luksus, funksjonalitet og en livsstil som du drømmer om. Velkommen hjem!
NB: Knappen for å vise hele beskrivelsen har kun en visuell effekt.
NB: Knappen for å vise hele beskrivelsen har kun en visuell effekt.
Ta kontakt med selger for komplett informasjon
Nærområdet
Annonsene kan være mangelfulle i forhold til lovpålagt opplysningsplikt. Før bindende avtale inngås oppfordres interessenter til å innhente komplett informasjon fra meglerforetaket, selger eller utleier.























