Bildegalleri

Velkommen til en bolig hvor fremtiden formes av dine visjoner!
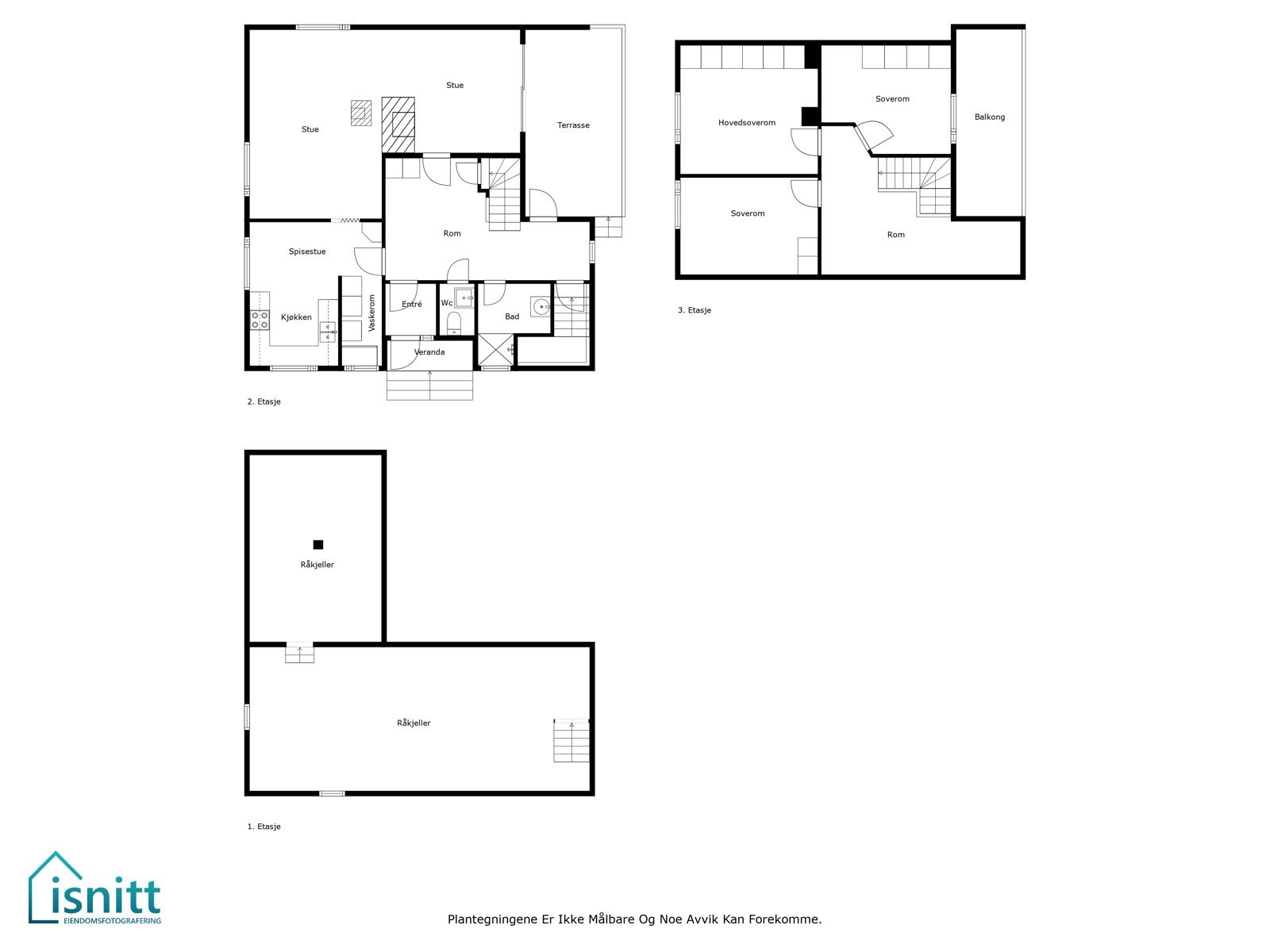
Enebolig over 3 plan med stort potensial og tomt på 1.409 kvm | 61 kvm garasje| Balanse mellom sentralt og landlig |
Nøkkelinfo
- Boligtype
- Enebolig
- Eieform
- Eier (Selveier)
- Soverom
- 3
- Primærrom
- 138 m²
- Bruksareal
- 179 m²
- Byggeår
- 1917
- Energimerking
- G - Rød
- Tomteareal
- 1 409 m² (eiet)
- Boligselgerforsikring
- Ja
Fasiliteter
Om boligen
En gyllen mulighet for deg som er på jakt etter et oppussingsprosjekt over 3 plan med rikelig potensial. Eiendommen ligger på en sjenerøs tomt på 1409 kvm. Boligen ligger i Furusetveien i Lillestrøm kommune, en beliggenhet som elegant kombinerer det beste fra to verdener. Her får du nærhet til byens fasiliteter, samtidig som omgivelsene har et landlig preg. Den romslige garasjen på hele 61 kvadratmeter gir god plass til både bil og oppbevaring. Velkommen til en bolig hvor fremtiden formes av dine visjoner!
Salgsoppgaven beskriver vesentlig og lovpålagt informasjon om eiendommen
Se komplett salgsoppgaveNyttige lenker
Nærområdet

PrivatMegleren Lillestrøm
Prisstatistikk
Furusetveien 3
på annonsen
prisantydning per kvadratmeter
Prisfordeling
Pris per m² ligger 4 218 kr under snittet for eneboliger i Skedsmo.
Grafen viser antall eneboliger solgt i Skedsmo siste året fordelt på pris per m² - totalt 249 eneboliger
Antall boliger
Kvadratmeterpris tilsvarer prisantydning pluss fellesgjeld per kvadratmeter (p-rom eller BRA-i). Prisene i grafen er avrundet til nærmeste 1000 kr.
Annonseinformasjon
| FINN-kode | 320484318 |
|---|---|
| Sist endret | 04. aug. 2024 15:24 |
| Referanse | 24230267 |
Annonsene kan være mangelfulle i forhold til lovpålagt opplysningsplikt. Før bindende avtale inngås oppfordres interessenter til å innhente komplett informasjon fra meglerforetaket, selger eller utleier.


























