Bildegalleri

Åsebråten | Byggeår 2020 | 3 soverom | Lave felleskostnader | Solrik 2.etg | Parkeringskjeller
Nøkkelinfo
- Boligtype
- Leilighet
- Eieform
- Selveier
- Soverom
- 3
- Internt bruksareal
- 100 m² (BRA-i)
- Bruksareal
- 105 m²
- Eksternt bruksareal
- 5 m² (BRA-e)
- Balkong/Terrasse
- 12 m² (TBA)
- Etasje
- 2
- Byggeår
- 2020
- Energimerking
- C - Mørkegrønn
- Tomt
- Eiet
Fasiliteter
Om boligen
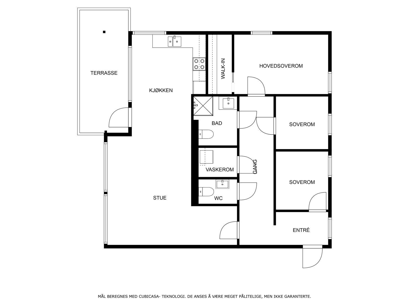
Velkommen til Åsebråttunet 18!
En stor og svært velholdt selveier i Smedens Hage!
Leiligheten skimter med tre soverom, bad og wc-rom, eget vaskerom, kjøkken med åpen løsning og romslig stue med utgang til solrik balkong. Beliggenheten er ideell for den som ikke ønsker å bo midt i sentrum, men som heller ønsker å trekke seg litt tilbake og samtidig bo sentralt. Det er kort vei til det nødvendige, skoler og barnehager, sentrum, samt lysløype i Fredrikstadmarka med flotte turmuligheter.
Leiligheten holder en god standard og fremstår nesten som ny. Her kan du flytte rett inn!
- Solrik balkong
- 3 soverom
- Parkeringskjeller
- Vannbåren gulvvarme
- Balansert ventilasjon
- "Nesten ny" standard
- Rolig og barnevennlig
Ta kontakt eller meld deg gjerne på, så sees vi på visning!
Salgsoppgaven beskriver vesentlig og lovpålagt informasjon om eiendommen
Se komplett salgsoppgaveNyttige lenker
Nærområdet
Holmskau & Partners
Prisstatistikk
Åsebråttunet 18F
på annonsen
prisantydning per kvadratmeter
Prisfordeling
Pris per m² ligger 3 000 kr over snittet for leiligheter i Fredrikstad.
Grafen viser antall leiligheter solgt i Fredrikstad siste året fordelt på pris per m² - totalt 729 leiligheter
Antall boliger
Kvadratmeterpris tilsvarer prisantydning pluss fellesgjeld per kvadratmeter (p-rom eller BRA-i). Prisene i grafen er avrundet til nærmeste 1000 kr.
Annonseinformasjon
| FINN-kode | 319515302 |
|---|---|
| Sist endret | 26. jan. 2026 15:59 |
| Referanse | 194230060 |
Annonsene kan være mangelfulle i forhold til lovpålagt opplysningsplikt. Før bindende avtale inngås oppfordres interessenter til å innhente komplett informasjon fra meglerforetaket, selger eller utleier.








































