Bildegalleri

Velkommen til Stovnerbakken 90! Presenteres av Arsalan Syed v/ EiendomsMegler 1.
Solgt
Stovner
Innholdsrik 4-roms rekkehus over 2 plan | Familiebolig med 2 uteplasser & hageparsell| Garasje | Sentralt & barnevennlig
Prisantydning4 490 000 kr
Nøkkelinfo
- Boligtype
- Rekkehus
- Eieform
- Andel
- Soverom
- 3
- Internt bruksareal
- 119 m² (BRA-i)
- Bruksareal
- 121 m²
- Eksternt bruksareal
- 2 m² (BRA-e)
- Balkong/Terrasse
- 32 m² (TBA)
- Etasje
- 2
- Byggeår
- 1987
- Rom
- 4
- Tomteareal
- 15 866 m² (eiet)
Fasiliteter
Alpinanlegg
Balkong/Terrasse
Barnevennlig
Bredbåndstilknytning
Garasje/P-plass
Golfbane
Hage
Kjæledyr tillatt
Ingen gjenboere
Kabel-TV
Offentlig vann/kloakk
Peis/Ildsted
Rolig
Sentralt
Utsikt
Vaktmester-/vektertjeneste
Bademulighet
Fiskemulighet
Turterreng
Lademulighet
Om boligen
Velkommen til Stovnerbakken 90 !
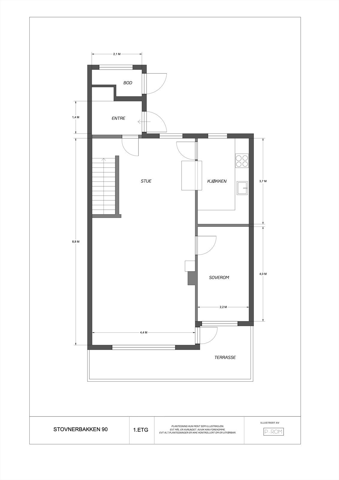
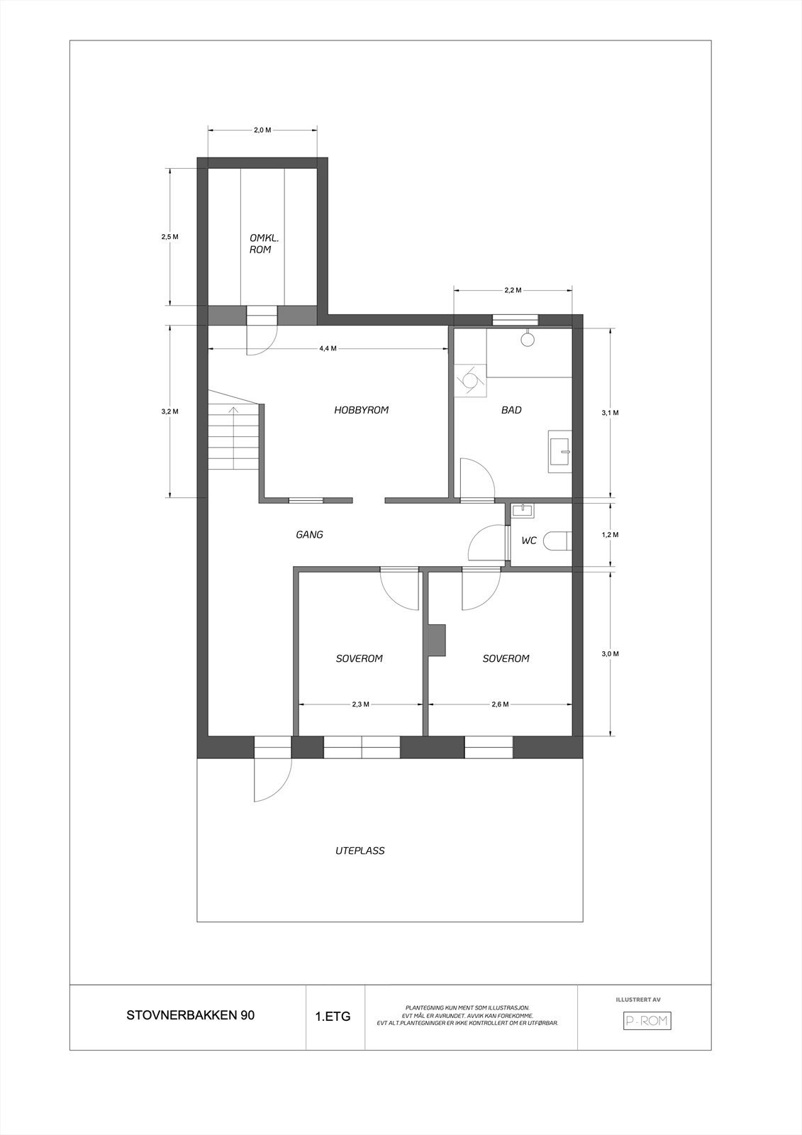
Innholdsrik og romslig rekkehus som strekker seg over 2 plan med en praktisk planløsning. Boligen har 3 soverom, balkong og markterrasse med hageparsell. Boligen ligger i et attraktivt og barnevennlig boligområde på Stovner og er en perfekt familiebolig. Noe oppussing bør påregnes.
I nærområdet finner du det populære Stovner Sentret, marka, T-banestasjon, togstasjon, bussholdeplasser, barnehager, skoler i alle trinn, fotballbane, idrettshall, skiløyper og flere treningssentre. Det er også kort avstand til bussholdeplasser, dagligvarebutikk og marka.
Kort fortalt:
- Perfekt familiebolig over 2 plan.
- 3 soverom
- Garasjeplass
- Romslig balkong, samt markterrasse med hageparsell
- Meget barnevennlig
- Ingen dok.avgift
- Vedovn
Velkommen til visning !
Innholdsrik og romslig rekkehus som strekker seg over 2 plan med en praktisk planløsning. Boligen har 3 soverom, balkong og markterrasse med hageparsell. Boligen ligger i et attraktivt og barnevennlig boligområde på Stovner og er en perfekt familiebolig. Noe oppussing bør påregnes.
I nærområdet finner du det populære Stovner Sentret, marka, T-banestasjon, togstasjon, bussholdeplasser, barnehager, skoler i alle trinn, fotballbane, idrettshall, skiløyper og flere treningssentre. Det er også kort avstand til bussholdeplasser, dagligvarebutikk og marka.
Kort fortalt:
- Perfekt familiebolig over 2 plan.
- 3 soverom
- Garasjeplass
- Romslig balkong, samt markterrasse med hageparsell
- Meget barnevennlig
- Ingen dok.avgift
- Vedovn
Velkommen til visning !
NB: Knappen for å vise hele beskrivelsen har kun en visuell effekt.
NB: Knappen for å vise hele beskrivelsen har kun en visuell effekt.
Salgsoppgaven beskriver vesentlig og lovpålagt informasjon om eiendommen
Se komplett salgsoppgaveNyttige lenker
Nærområdet
Eiendomsmegler 1 Søndre Nordstrand
Vi loser deg trygt gjennom hele boligsalget
Prisstatistikk
Stovnerbakken 90
18 698 klikk
på annonsen
40 252 kr
prisantydning per kvadratmeter
Prisfordeling
Pris per m² ligger 2 748 kr under snittet for rekkehus i Stovner.
Grafen viser antall rekkehus solgt i Stovner siste året fordelt på pris per m² - totalt 69 rekkehus
Antall boliger
Kvadratmeterpris tilsvarer prisantydning pluss fellesgjeld per kvadratmeter (p-rom eller BRA-i). Prisene i grafen er avrundet til nærmeste 1000 kr.
Annonseinformasjon
| FINN-kode | 319235663 |
|---|---|
| Sist endret | 17. apr. 2025 13:54 |
| Referanse | 3215230109 |
Annonsene kan være mangelfulle i forhold til lovpålagt opplysningsplikt. Før bindende avtale inngås oppfordres interessenter til å innhente komplett informasjon fra meglerforetaket, selger eller utleier.




























