Bildegalleri

Privatmegleren Brustad & Partnere har gleden av å presentere Langelandsfjellet 7, en flott og herskapelig villa som ligger i et attraktivt og barnevennlig område uten gjennomgangstrafikk på Langelandsfjellet.
Stor herskapelig enebolig med godkjent 3-roms utleieleilighet. Tomt på 1 009 kvm - Påkostet uteområde
Nøkkelinfo
- Boligtype
- Enebolig
- Eieform
- Selveier
- Soverom
- 5
- Internt bruksareal
- 286 m² (BRA-i)
- Bruksareal
- 286 m²
- Balkong/Terrasse
- 124 m² (TBA)
- Byggeår
- 2013
- Energimerking
- C - Oransje
- Tomteareal
- 1 009 m² (eiet)
- Boligselgerforsikring
- Ja
Fasiliteter
Om boligen
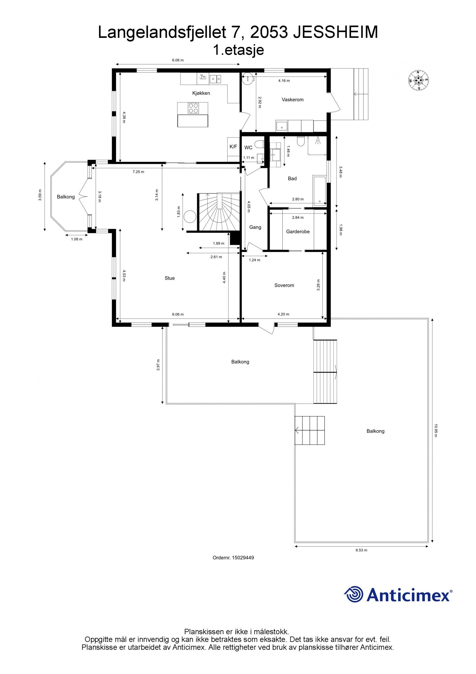
Herskapelig villa i et attraktivt og barnevennlig område uten gjennomgangstrafikk på Langelandsfjellet. Gangavstand til skoler, barnehager, off. kommunikasjon, samt nærhet til flotte turmuligheter.
Boligen er fra 2013 og fremstår som meget innbydende med god standard. Hoveddel inneholder bl.a. påkostet kjøkken, stor stue, 3 soverom, flislagt bad, to separate wc og vaskerom. Godkjent 3-roms utleieleil. i u. etg. med estimert leieinntekt på ca. kr 15 000,- pr mnd.
Tomt på 1 009 kvm med pent opparbeidet hage. Sydvendt terrasse på ca 90 kvm med fantastiske solforholdt. Bobleblad, utestue og flere gode uteplasser. Balkong på ca 6 kvm fra stue og terrasse til utleiedel på ca 28 kvm. Steinlagt innkjørsel og gårdsplass. Dobbelgarasje.
Velkommen til en hyggelig visning!
Salgsoppgaven beskriver vesentlig og lovpålagt informasjon om eiendommen
Se komplett salgsoppgaveNyttige lenker
Nærområdet

PrivatMegleren Brustad & Partnere
Prisstatistikk
Langelandsfjellet 7
på annonsen
prisantydning per kvadratmeter
Prisfordeling
Pris per m² ligger 3 209 kr over snittet for eneboliger i Ullensaker.
Grafen viser antall eneboliger solgt i Ullensaker siste året fordelt på pris per m² - totalt 248 eneboliger
Antall boliger
Kvadratmeterpris tilsvarer prisantydning pluss fellesgjeld per kvadratmeter (p-rom eller BRA-i). Prisene i grafen er avrundet til nærmeste 1000 kr.
Annonseinformasjon
| FINN-kode | 318305698 |
|---|---|
| Sist endret | 16. mai 2025 00:09 |
| Referanse | 121230194 |
Annonsene kan være mangelfulle i forhold til lovpålagt opplysningsplikt. Før bindende avtale inngås oppfordres interessenter til å innhente komplett informasjon fra meglerforetaket, selger eller utleier.









































