Bildegalleri

1 SOLGT - Hamran/Rosfjord - 4 flotte eneboliger - Takterrasse - 4 soverom - Dobbel garasje
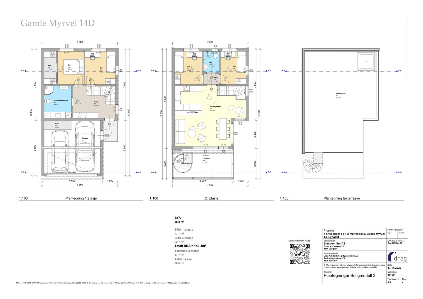
Nøkkelinfo
- Boligtype
- Enebolig
- Eieform
- Eier (Selveier)
- Soverom
- 4
- Bruksareal
- 140 m²
- Byggeår
- 2024
- Tomt
- Eiet
Visning
Om boligen
Eneboligene som planlegges bygd vil få en flott beliggenhet i utkanten av boligfelt i Hamran.
Boligene vil bli oppført nøkkelferdig med høy standard med praktiske løsninger, legg spesielt merke til følgende:
- Royal impregnert kledning og aluminiumsbelagt vindu
- Takhøyde på ca 270 cm i 1 etasje og ca 240 cm i 2 etasje
- Listefri utførelse i himling og vinduer.
- Kjøkken fra AUBO
- Alloc laminat gulv i stue, kjøkken, gang og soverom
- Fliser på gulv i gang, bad og wc.
- Takterrasse på hele 66 kvm.
- Dobbel garasje i 1 etasje.
Drømmer du om en ny enebolig med gode løsninger og ett moderne design, så kan dette være muligheten! Grunnarbeidet er utført.
Har du noen spørsmål, ta kontakt!
Salgsoppgaven beskriver vesentlig og lovpålagt informasjon om eiendommen
Se komplett salgsoppgaveNyttige lenker
Nærområdet
Exbo Sørlandet AS
Annonsene kan være mangelfulle i forhold til lovpålagt opplysningsplikt. Før bindende avtale inngås oppfordres interessenter til å innhente komplett informasjon fra meglerforetaket, selger eller utleier.
















