Bildegalleri

Nordvik Eiendomsmegling v/ Henning Huse presenterer Bondelia hage 1
BONDELIA HAGE
Eksklusiv enebolig med svært høy standard og mjøsutsikt. Vannbåren varme fra fjernvarmeanlegg.
Prisantydning10 400 000 kr
Nøkkelinfo
- Boligtype
- Enebolig
- Eieform
- Eier (Selveier)
- Soverom
- 4
- Primærrom
- 170 m²
- Bruksareal
- 226 m²
- Etasje
- 2
- Byggeår
- 2022
- Energimerking
- B - Mørkegrønn
- Rom
- 6
- Tomteareal
- 1 613 m² (eiet)
Fasiliteter
Balkong/Terrasse
Barnevennlig
Garasje/P-plass
Hage
Offentlig vann/kloakk
Parkett
Peis/Ildsted
Rolig
Sentralt
Utsikt
Turterreng
Lademulighet
Om boligen
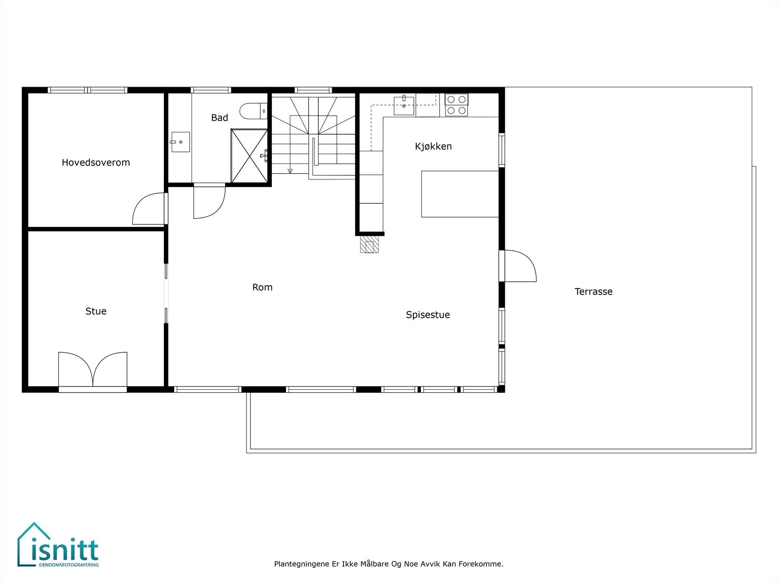
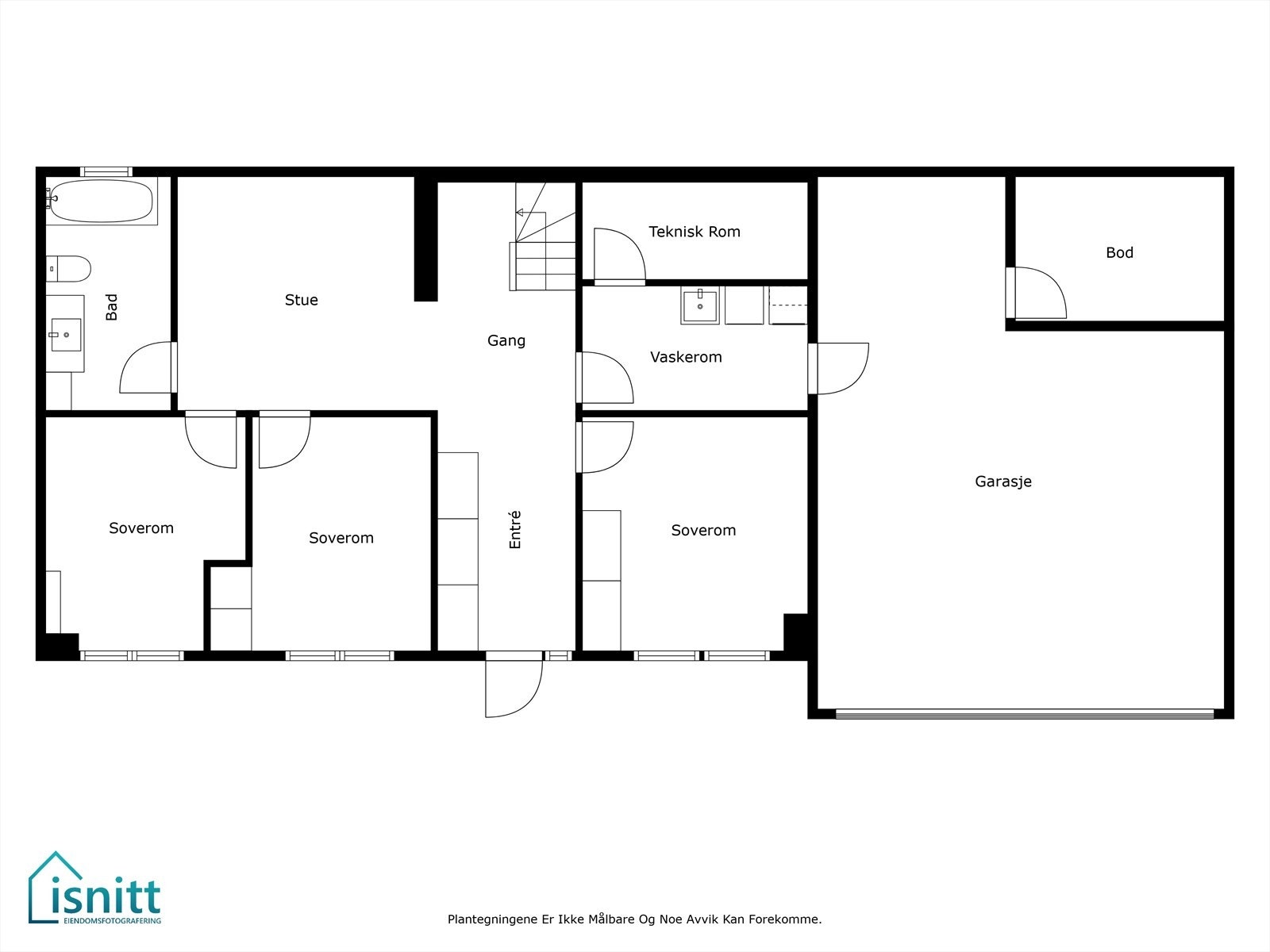
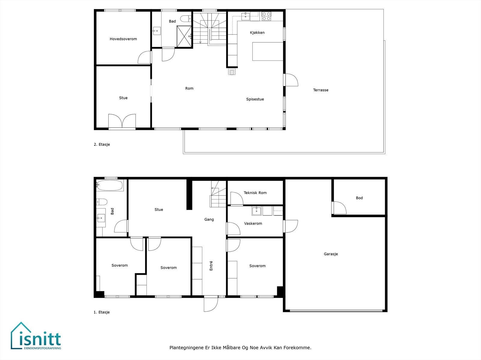
Nordvik Eiendomsmegling presenterer Bondelia hage 1 - En ny og eksklusiv enebolig med nydelig utsikt. Integrert dobbelgarasje. Fine uteplasser og gode solforhold. Beliggende i rolig og barnevennlig område. Boligen har en familievennlig og praktisk planløsning. Underetasje med entré, stue, 3 soverom, bad, vaskerom, teknisk rom og integrert dobbelgarasje. Hovedetasje med stue, kjøkken/spisestue, bad og soverom.
- Eksklusivt kjøkken fra JKE
- Påkostede bad med eksklusive fliser og innredning
- Vannbåren varme fra fjernvarme
- Utvendige screens
- 67 m² terrasse med adkomst fra kjøkken
- El- bil lader
- 2 stuer
- 4 soverom
- 2 bad + vaskerom
- Rikelig med bodplass
- Vindingstad skolekrets
- Barnehage i Topro Bondelia
Velkommen til visning!
NB: Knappen for å vise hele beskrivelsen har kun en visuell effekt.
NB: Knappen for å vise hele beskrivelsen har kun en visuell effekt.
Salgsoppgaven beskriver vesentlig og lovpålagt informasjon om eiendommen
Se komplett salgsoppgaveNyttige lenker
Nærområdet
Nordvik Gjøvik
Vi vet hva det er verdt!
Annonseinformasjon
| FINN-kode | 317588187 |
|---|---|
| Sist endret | 14. aug. 2025 19:37 |
| Referanse | 71-0168/23 |
Annonsene kan være mangelfulle i forhold til lovpålagt opplysningsplikt. Før bindende avtale inngås oppfordres interessenter til å innhente komplett informasjon fra meglerforetaket, selger eller utleier.











































