Bildegalleri

Nordvik Avd. Frogner v/ Magnus Jørstad har gleden av å presentere Gabels gate 11!
Skillebekk/Frogner
Eksklusiv og oppusset hjørneleilighet i 5 etg. Heis. 2 balkonger. Peis. Utleiedel. Generøs takhøyde & klassiske detaljer
Prisantydning18 500 000 kr
Nøkkelinfo
- Boligtype
- Leilighet
- Eieform
- Eier (Selveier)
- Soverom
- 3
- Bruksareal
- 156 m²
- Etasje
- 5
- Byggeår
- 1896
- Rom
- 4
- Tomteareal
- 598 m² (eiet)
Fasiliteter
Balkong/Terrasse
Barnevennlig
Bredbåndstilknytning
Heis
Kjæledyr tillatt
Kabel-TV
Offentlig vann/kloakk
Parkett
Peis/Ildsted
Rolig
Sentralt
Utsikt
Lademulighet
Balansert ventilasjon
Om boligen
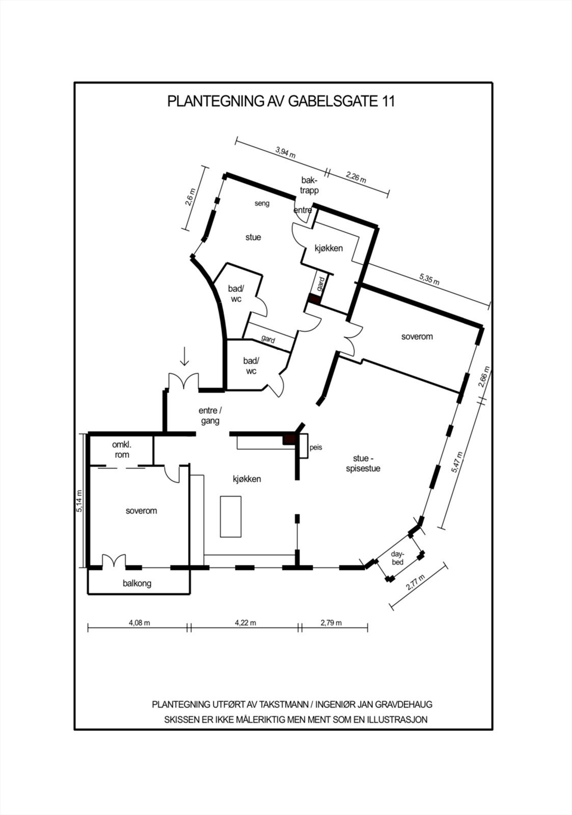
Eksklusiv og oppusset hjørneleilighet beliggende flott til på Skillebekk/Frogner. Leiligheten bærer preg av gjennomtenkte løsninger og holder en særdeles høy standard med fokus på kvalitet, materialvalg og detaljer.
Leiligheten ligger i femte etasje med heisadkomst i en klassisk og ærværdig hjørnegård fra 1896 med originale detaljer som rosett og stukkatur, doble fløydører og generøs takhøyde. Meget funksjonell planløsning med svært romslig hjørnestue, stort og eksklusivt kjøkken, tre soverom og to lekre baderom.
Kort oppsummert:
- Ildsted
- 1 bod på 8 m²
- Takhøyde opptil 2,89m
- Avrettet gulv i hoveddelen
- Eikegulv i fiskebenmønster
- 2 balkonger med gode solforhold
- Mulighet for tre soverom i hoveddel
- Utleiedel m/ leieinntekt på ca 14 000,- i mnd
Leiligheten ligger i femte etasje med heisadkomst i en klassisk og ærværdig hjørnegård fra 1896 med originale detaljer som rosett og stukkatur, doble fløydører og generøs takhøyde. Meget funksjonell planløsning med svært romslig hjørnestue, stort og eksklusivt kjøkken, tre soverom og to lekre baderom.
Kort oppsummert:
- Ildsted
- 1 bod på 8 m²
- Takhøyde opptil 2,89m
- Avrettet gulv i hoveddelen
- Eikegulv i fiskebenmønster
- 2 balkonger med gode solforhold
- Mulighet for tre soverom i hoveddel
- Utleiedel m/ leieinntekt på ca 14 000,- i mnd
NB: Knappen for å vise hele beskrivelsen har kun en visuell effekt.
NB: Knappen for å vise hele beskrivelsen har kun en visuell effekt.
Salgsoppgaven beskriver vesentlig og lovpålagt informasjon om eiendommen
Se komplett salgsoppgaveNyttige lenker
Nærområdet
Nordvik Frogner
Annonseinformasjon
| FINN-kode | 315636151 |
|---|---|
| Sist endret | 26. jan. 2026 11:56 |
| Referanse | 14-0486/23 |
Annonsene kan være mangelfulle i forhold til lovpålagt opplysningsplikt. Før bindende avtale inngås oppfordres interessenter til å innhente komplett informasjon fra meglerforetaket, selger eller utleier.
































