Bildegalleri

Velkommen til Vestre Moholt-tun 8!
Solgt
Moholt
Velholdt og flott 2-roms i 1. etasje med direkte adkomst til felles plen|Parkering|Nærhet til NTNU|Butikk(er) rett ved
Prisantydning2 750 000 kr
Nøkkelinfo
- Boligtype
- Leilighet
- Eieform
- Andel
- Soverom
- 1
- Primærrom
- 43 m²
- Bruksareal
- 43 m²
- Etasje
- 1
- Byggeår
- 1967
- Energimerking
- E - Rød
- Tomteareal
- 49 563 m² (eiet)
Fasiliteter
Barnevennlig
Balkong/Terrasse
Garasje/P-plass
Kabel-TV
Offentlig vann/kloakk
Turterreng
Vaktmester-/vektertjeneste
Bredbåndstilknytning
Moderne
Rolig
Om boligen
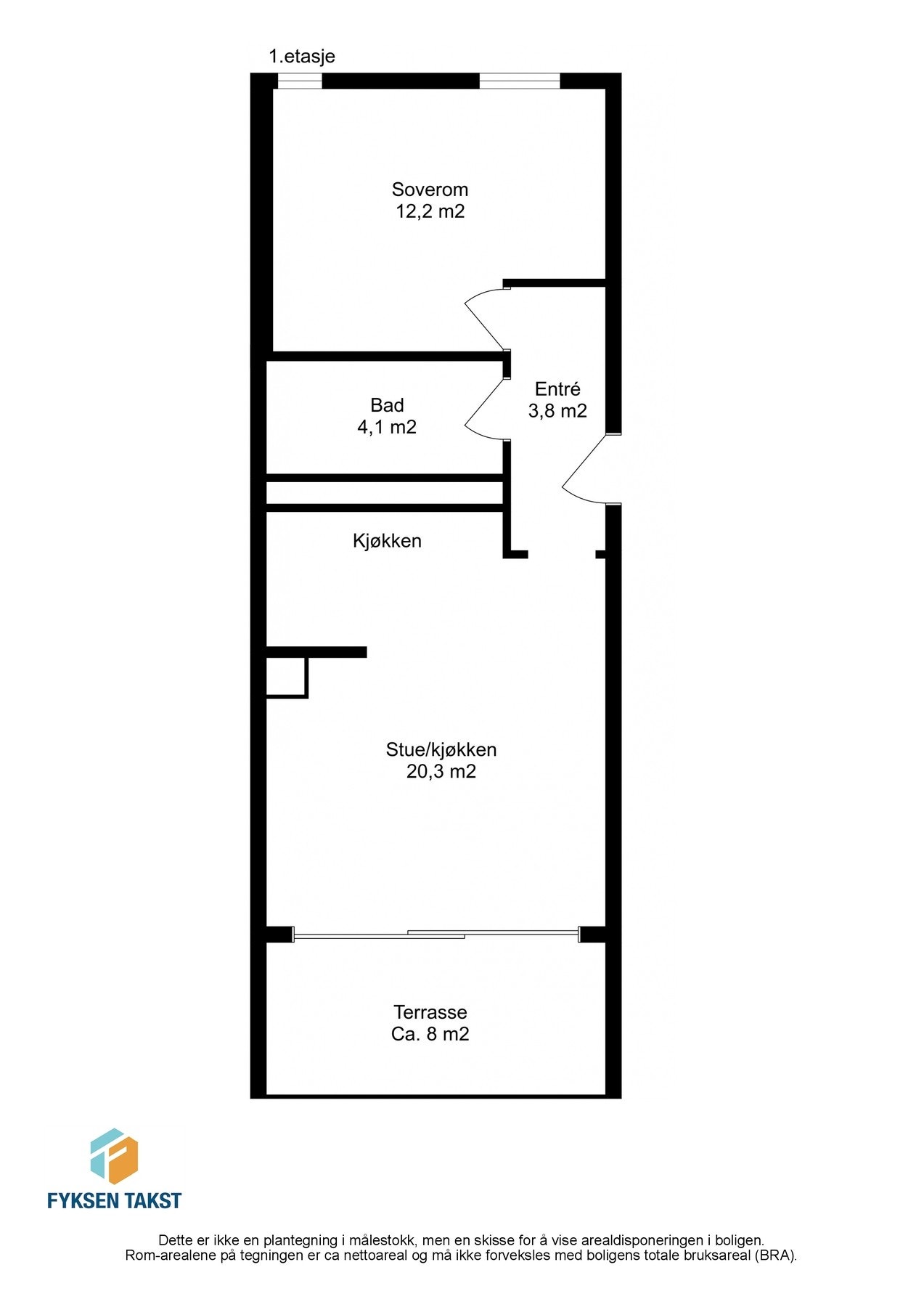
EiendomsMegler 1 v/ Eystein Wullum har gleden av å presentere en lys og praktisk leilighet i 1. etasje med sentral beliggenhet på Moholt. Leiligheten er oppgradert sporadisk med blant annet kjøkken fra 2010 og hvitevarer fra 2020, bad oppgradert i 2010 og gulv fra 2018. Stort soverom på 12,2 m².
Med sentral beliggenhet på Moholt er det flere butikker i nærheten, metrobuss med hyppige avganger og gangavstand til NTNU.
Av kvaliteter verdt å trekke fram:
Med sentral beliggenhet på Moholt er det flere butikker i nærheten, metrobuss med hyppige avganger og gangavstand til NTNU.
Av kvaliteter verdt å trekke fram:
- Flott beliggenhet i 1. etasje med direkte adkomst til felles plen
- Terrasse på ca. 8 m²
- Romslig stue på 20,3 m²
- Tidløst kjøkken fra 2010 med benkeplate fra 2019
- Hvitevarer fra 2020
- Praktisk bad oppgradert i 2010 med opplegg for vaskemaskin
- Stort soverom på 12,2 m² med plass til stor seng og romslig garderobeskap
- Soverom, gang og stue er malt i 2020
- 2 tilhørende boder på ca. 15 m² og 4 m²
- Nærhet til metrobuss og gangavstand til NTNU
NB: Knappen for å vise hele beskrivelsen har kun en visuell effekt.
NB: Knappen for å vise hele beskrivelsen har kun en visuell effekt.
Salgsoppgaven beskriver vesentlig og lovpålagt informasjon om eiendommen
Se komplett salgsoppgaveNyttige lenker
Nærområdet
EiendomsMegler 1 Valentinlyst
Vi loser deg trygt gjennom hele boligsalget
Prisstatistikk
Vestre Moholt-tun 8
1 236 klikk
på annonsen
63 953 kr
prisantydning per kvadratmeter
Prisfordeling
Pris per m² ligger 953 kr over snittet for leiligheter i Trondheim Øst.
Grafen viser antall leiligheter solgt i Trondheim Øst siste året fordelt på pris per m² - totalt 2 543 leiligheter
Antall boliger
Kvadratmeterpris tilsvarer prisantydning pluss fellesgjeld per kvadratmeter (p-rom eller BRA-i). Prisene i grafen er avrundet til nærmeste 1000 kr.
Annonseinformasjon
| FINN-kode | 315299549 |
|---|---|
| Sist endret | 23. feb. 2024 08:29 |
| Referanse | 34210167 |
Annonsene kan være mangelfulle i forhold til lovpålagt opplysningsplikt. Før bindende avtale inngås oppfordres interessenter til å innhente komplett informasjon fra meglerforetaket, selger eller utleier.

























