Bildegalleri

Velkommen til Jektvikveien 34 - en meget stor eiendom med skjermet beliggenhet i naturskjønne omgivelser på Ansnes. Foto: Fotograf Eidsmo
Ansnes/Hitra
Innholdsrik enebolig beliggende i idylliske omgivelser | Vinterhage | Fantastisk utsikt | 3 mål | Naust med flytebrygge
Prisantydning4 490 000 kr
Nøkkelinfo
- Boligtype
- Enebolig
- Eieform
- Selveier
- Soverom
- 3
- Internt bruksareal
- 121 m² (BRA-i)
- Bruksareal
- 247 m²
- Eksternt bruksareal
- 102 m² (BRA-e)
- Innglasset balkong
- 24 m² (BRA-b)
- Balkong/Terrasse
- 47 m² (TBA)
- Etasje
- 2
- Byggeår
- 1984
- Energimerking
- Rom
- 4
- Tomteareal
- 3 002 m² (eiet)
Fasiliteter
Balkong/Terrasse
Barnevennlig
Garasje/P-plass
Hage
Kjæledyr tillatt
Ingen gjenboere
Peis/Ildsted
Rolig
Utsikt
Bademulighet
Turterreng
Lademulighet
Balansert ventilasjon
Visning
Ta kontakt med megler for avtale om privatvisning.
Ønsker du kun å bli holdt orientert, kan du fra eiendommens hjemmeside få varsel om solgtpris, eller kontakte megler.
VisningspåmeldingOm boligen
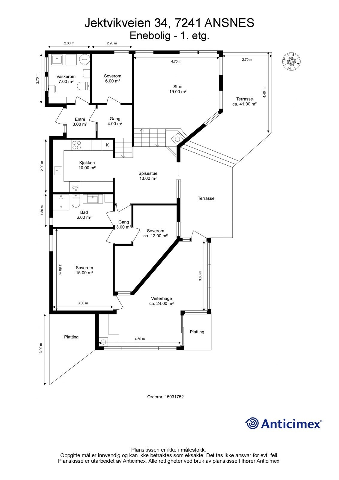
Velkommen til Jektvikveien 34, og denne flotte eneboligen med en skjermet beliggenhet i naturskjønne omgivelser ved Krabbsundet på Ansnes. Her har man umiddelbar nærhet til alt naturen har å by på, i et meget barnevennlig område.
- Stor selveiertomt på 3 mål, med fantastiske sol- og utsiktsforhold
- Romslig terrasse som strekker seg rundt store deler av eiendommen
- Vinterhage med gode møbleringsmuligheter, i tillegg til flere uthus
- Nausttomt med flytebrygge i realsameie
- God planløsning som fint kan endres - I dag er det innredet 4 soverom, hvor 1 ikke er godkjent iht. tegninger
- Dobbelgarasje og flere biloppstillingsplasser
- Gode mulighet for fiske, bading, vannsport, padling og en rekke sommeraktiviteter
- Kort vei til Fillan og Sentrum, med "alt" av servicetilbud
NB: Knappen for å vise hele beskrivelsen har kun en visuell effekt.
NB: Knappen for å vise hele beskrivelsen har kun en visuell effekt.
Salgsoppgaven beskriver vesentlig og lovpålagt informasjon om eiendommen
Se komplett salgsoppgaveNyttige lenker
Nærområdet
Krogsveen Trondheim
Verdien av en god megler.
Annonseinformasjon
| FINN-kode | 309694696 |
|---|---|
| Sist endret | 20. apr. 2026 13:09 |
| Referanse | KR68.2274 |
Annonsene kan være mangelfulle i forhold til lovpålagt opplysningsplikt. Før bindende avtale inngås oppfordres interessenter til å innhente komplett informasjon fra meglerforetaket, selger eller utleier.



































