Bildegalleri

Inaktiv
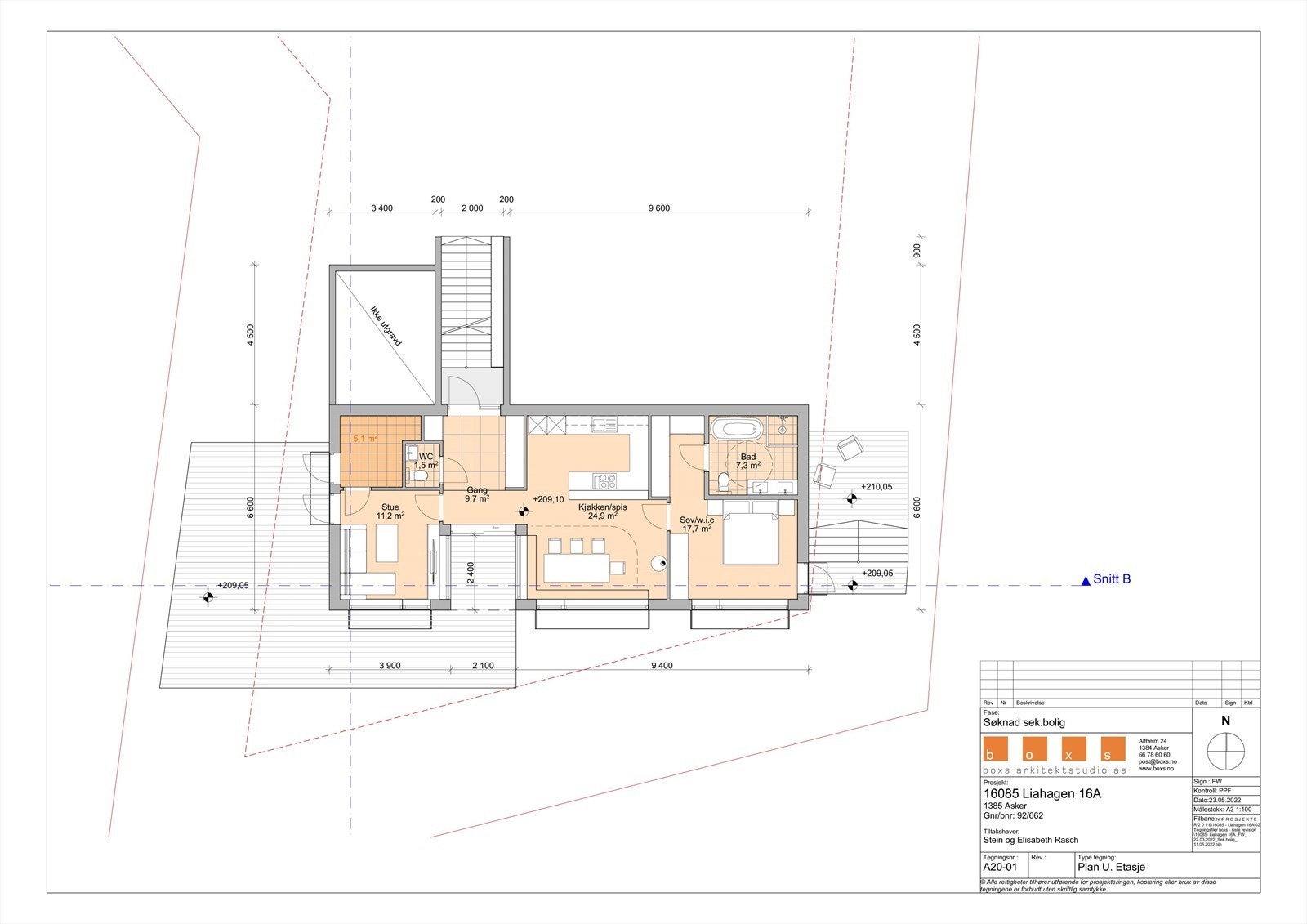
Sjelden idyll på Vardåsen/Engelsrud |Sjarmerende bolig med solrik og romslig tomt |Flott utsikt |Ramme -80m² sek. bolig
Prisantydning8 500 000 kr
Nøkkelinfo
- Boligtype
- Enebolig
- Eieform
- Eier (Selveier)
- Soverom
- 3
- Primærrom
- 112 m²
- Bruksareal
- 115 m²
- Etasje
- 2
- Byggeår
- 2002
- Rom
- 5
- Tomteareal
- 1 411 m² (eiet)
Fasiliteter
Balkong/Terrasse
Barnevennlig
Bredbåndstilknytning
Garasje/P-plass
Hage
Kjæledyr tillatt
Ingen gjenboere
Offentlig vann/kloakk
Parkett
Peis/Ildsted
Rolig
Sentralt
Utsikt
Utvidelsesmuligheter
Bademulighet
Turterreng
Om boligen
Velkommen til Liahagen 16 A, presentert av Jostein Sommervoll i Nordvik Asker.
Eiendommen ligger i naturskjønne omgivelser mellom Vardåsen og Engelsrud i Asker. Området fremstår som et attraktivt og barnevennlig boligområde med nærhet til barneskole, barnehager, kollektivtransport og matbutikk.
Kort fortalt:
- Høyt og fritt med vakker utsikt over Engelsrud.
- Fine uteplasser med sol fra tidlig morgen til sen kveld
- Mulighet oppføring av sekundærbolig
- Umiddelbar nærhet til marka med badevann og flotte turområder
- Rolig i blindvei
- Stor eiet tomt på 1,4 mål
- Tre soverom
- To bad
Det foreligger rammetillatelse for en frittliggende sekundærbolig på et plan på totalt 80m² i BRA, samt garasje. Datert 01.02.2023. Se vedlagte tegninger for ytterligere informasjon.
Eiendommen ligger i naturskjønne omgivelser mellom Vardåsen og Engelsrud i Asker. Området fremstår som et attraktivt og barnevennlig boligområde med nærhet til barneskole, barnehager, kollektivtransport og matbutikk.
Kort fortalt:
- Høyt og fritt med vakker utsikt over Engelsrud.
- Fine uteplasser med sol fra tidlig morgen til sen kveld
- Mulighet oppføring av sekundærbolig
- Umiddelbar nærhet til marka med badevann og flotte turområder
- Rolig i blindvei
- Stor eiet tomt på 1,4 mål
- Tre soverom
- To bad
Det foreligger rammetillatelse for en frittliggende sekundærbolig på et plan på totalt 80m² i BRA, samt garasje. Datert 01.02.2023. Se vedlagte tegninger for ytterligere informasjon.
NB: Knappen for å vise hele beskrivelsen har kun en visuell effekt.
NB: Knappen for å vise hele beskrivelsen har kun en visuell effekt.
Salgsoppgaven beskriver vesentlig og lovpålagt informasjon om eiendommen
Se komplett salgsoppgaveNyttige lenker
Nærområdet
Nordvik Asker
Vi vet hva det er verdt
Annonseinformasjon
| FINN-kode | 303737872 |
|---|---|
| Sist endret | 08. juli 2023 14:06 |
| Referanse | NOP33.2364 |
Annonsene kan være mangelfulle i forhold til lovpålagt opplysningsplikt. Før bindende avtale inngås oppfordres interessenter til å innhente komplett informasjon fra meglerforetaket, selger eller utleier.















































