Bildegalleri

EiendomsMegler1 v/Frank Robert Bae har gleden av å presentere en flott enebolig m/utleiedel beliggende i et familievennlig område på Øvre Jakobsli!
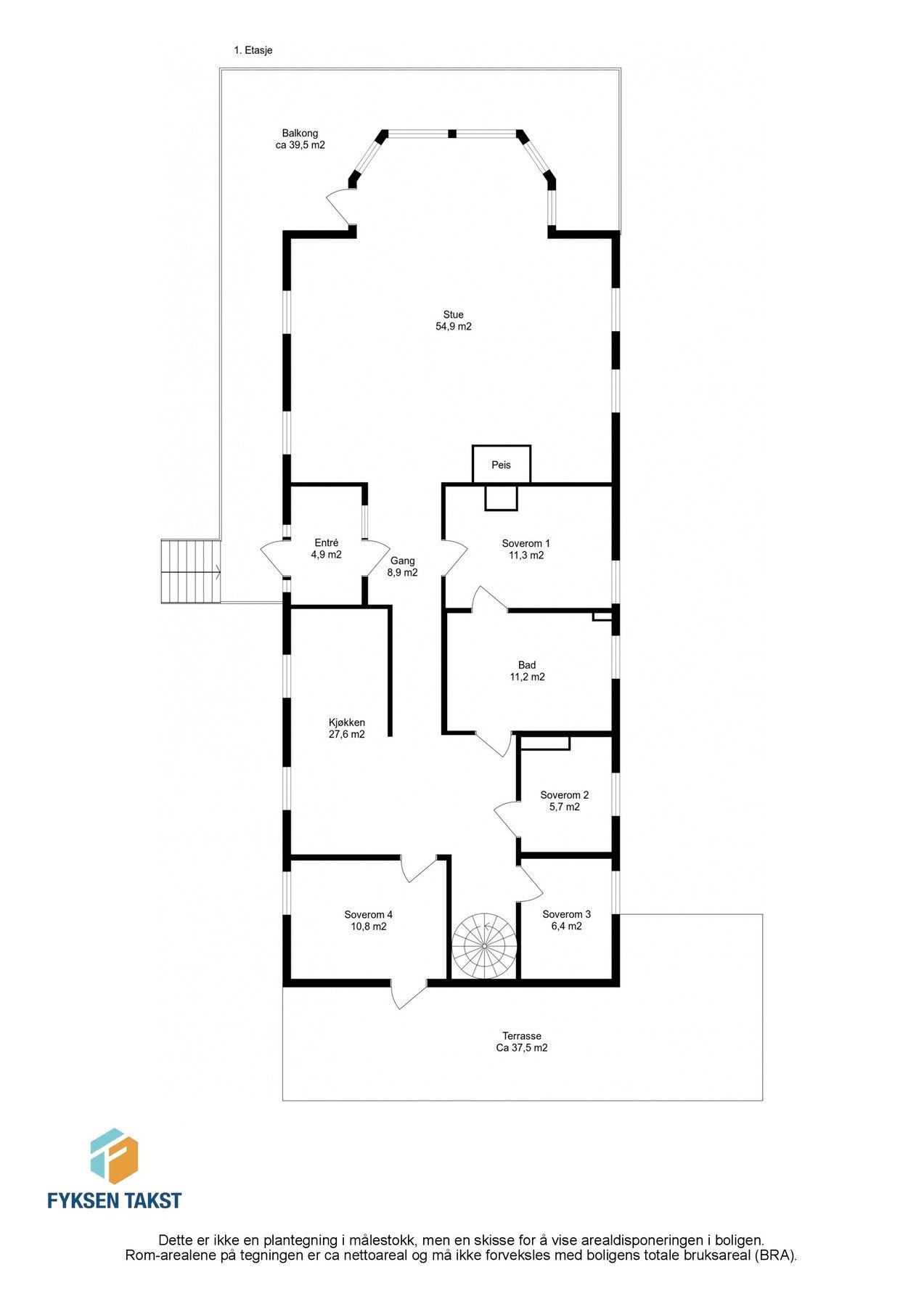
Flott enebolig på hele 285 kvm BRA - Godkjent utleiedel kr. 20.000/mnd - Glimrende sol- og utsiktsforhold - Barnevennlig
Nøkkelinfo
- Boligtype
- Enebolig
- Eieform
- Eier (Selveier)
- Soverom
- 8
- Primærrom
- 269 m²
- Bruksareal
- 285 m²
- Byggeår
- 1978
- Energimerking
- G - Oransje
- Rom
- 11
- Tomteareal
- 715 m² (eiet)
Fasiliteter
Om boligen
Boligen er romslig med sine 285 kvm BRA og har en effektiv planløsning som går over to plan. Egen utleiedel som pt. genererer kr. 20.000 skattefrie kroner i måneden. Det er etablert en frittstående carport og flere oppstillingsplasser for bil på eiendommen.
Fra boligen har man en fantastisk utsikt mot Trondheimsfjorden, Tautra og Frostalandet, og sammen med store vindusflater bidrar dette boligens helt særegne og lette atmosfære. Både på frem- og baksiden av boligen er det etablert store terrasser omkranset av grønn plen, og på sommerstid nyter man solen bokstavelig talt fra soloppgang til -nedgang. For den aktive og turglade vil boligens tilbaketrukne beliggenhet være midt i blinken. På sommerstid har man bare få minutter bort til flere turløyper i marka, og på vinterstid er det bokstavelig talt ski-in/ski-out fra ytterdøra.
Vel møtt!
Salgsoppgaven beskriver vesentlig og lovpålagt informasjon om eiendommen
Se komplett salgsoppgaveNyttige lenker
Nærområdet
EiendomsMegler 1 Grilstadporten
Prisstatistikk
Jonsvannsveien 417
på annonsen
prisantydning per kvadratmeter
Prisfordeling
Pris per m² ligger 10 960 kr under snittet for eneboliger i Trondheim Øst.
Grafen viser antall eneboliger solgt i Trondheim Øst siste året fordelt på pris per m² - totalt 277 eneboliger
Antall boliger
Kvadratmeterpris tilsvarer prisantydning pluss fellesgjeld per kvadratmeter (p-rom eller BRA-i). Prisene i grafen er avrundet til nærmeste 1000 kr.
Annonseinformasjon
| FINN-kode | 302681488 |
|---|---|
| Sist endret | 25. okt. 2023 13:19 |
| Referanse | 33230104 |
Annonsene kan være mangelfulle i forhold til lovpålagt opplysningsplikt. Før bindende avtale inngås oppfordres interessenter til å innhente komplett informasjon fra meglerforetaket, selger eller utleier.






















































