Bildegalleri

Vellkommen til Vennersborgveien 6D på Skøyen. Rekkehuset har flott utsikt utover mot Bestumkilen som er kjent for hyggelig gang-/sykkelveier og båtliv.
Inaktiv
Delikat bolig fra 2018 med gangavstand til sjøen. Høy standard med moderne løsninger. Takterrasse med flott utsikt!
Prisantydning11 690 000 kr
Nøkkelinfo
- Boligtype
- Rekkehus
- Eieform
- Eier (Selveier)
- Soverom
- 3
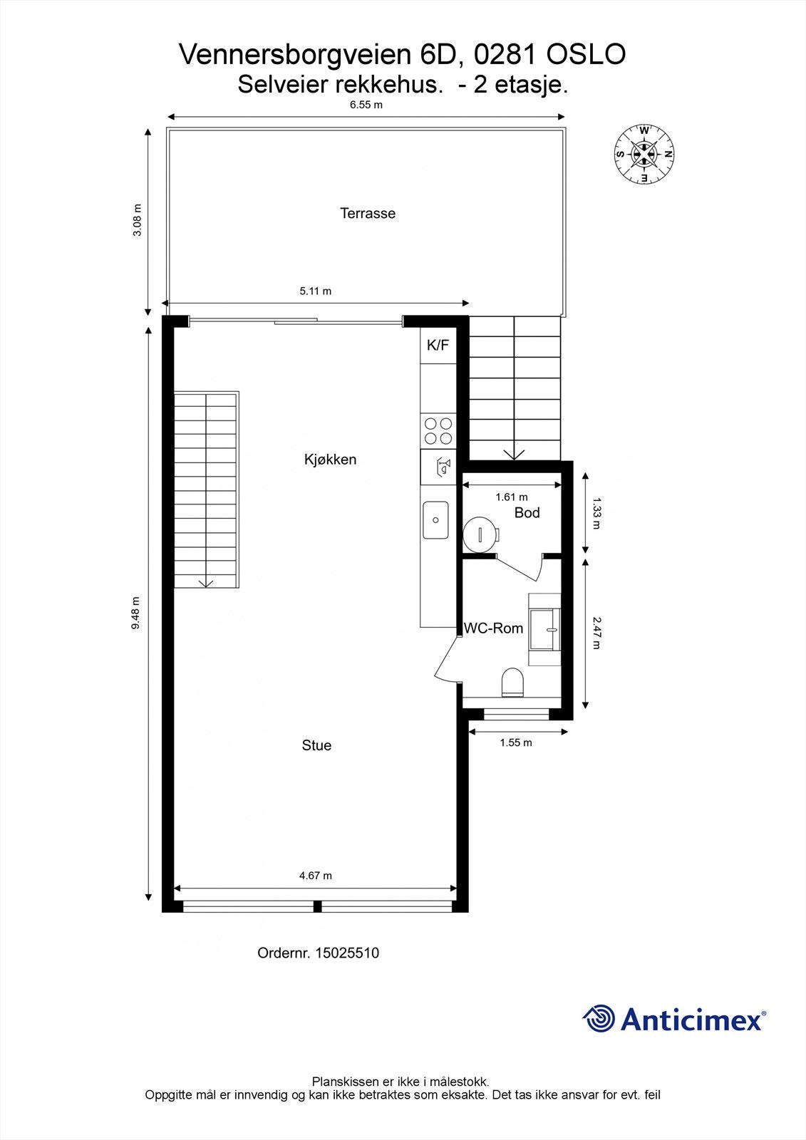
- Internt bruksareal
- 123 m² (BRA-i)
- Bruksareal
- 129 m²
- Eksternt bruksareal
- 6 m² (BRA-e)
- Balkong/Terrasse
- 49 m² (TBA)
- Etasje
- 3
- Byggeår
- 2018
- Energimerking
- B - Rød
- Rom
- 4
- Tomteareal
- 2 113 m² (eiet)
Fasiliteter
Takterrasse
Balkong/Terrasse
Barnevennlig
Bredbåndstilknytning
Garasje/P-plass
Kjæledyr tillatt
Kabel-TV
Offentlig vann/kloakk
Parkett
Rolig
Sentralt
Utsikt
Bademulighet
Fiskemulighet
Turterreng
Lademulighet
Balansert ventilasjon
Om boligen
Eiendomsmegler Marius Stormfelt har gleden av å presentere Vennersborgveien 6D! Moderne rekkehus på over 3 plan fra 2018, beliggende i bydelen Ullern. Boligen en overbygget terrasse og en takterrasse på øverste plan. Veletablert og attraktiv område som passer godt for barnefamilier med gangavstand til kollektiv transport og kort vei inn til Oslo sentrum. Nærhet til sjøen og Bygdøy med tur- og bademuligheter.
- Rekkehus fra 2018
- Ligger i enden av blindvei
- Balansert ventilasjon
- Godt med lagringsplass
- Terrasse og takterrasse
- God takhøyde innvendig
- Verdibevis på vaskerom
- Gangavstand til buss og trikk
- Godt utvalg av butikker på Skøyen
- Rekkehus fra 2018
- Ligger i enden av blindvei
- Balansert ventilasjon
- Godt med lagringsplass
- Terrasse og takterrasse
- God takhøyde innvendig
- Verdibevis på vaskerom
- Gangavstand til buss og trikk
- Godt utvalg av butikker på Skøyen
NB: Knappen for å vise hele beskrivelsen har kun en visuell effekt.
NB: Knappen for å vise hele beskrivelsen har kun en visuell effekt.
Salgsoppgaven beskriver vesentlig og lovpålagt informasjon om eiendommen
Se komplett salgsoppgaveNyttige lenker
Nærområdet
Krogsveen Sandvika
Velkommen til en enklere boligreise.
Annonseinformasjon
| FINN-kode | 300933453 |
|---|---|
| Sist endret | 07. apr. 2024 11:31 |
| Referanse | KR11.22209 |
Annonsene kan være mangelfulle i forhold til lovpålagt opplysningsplikt. Før bindende avtale inngås oppfordres interessenter til å innhente komplett informasjon fra meglerforetaket, selger eller utleier.




















































