Bildegalleri

Nordvik Eiendomsmegling presenterer Heggevegen 27.
Inaktiv
MOELV
Stor, innholdsrik familiebolig med attraktiv beliggenhet - 5 soverom, 2 stuer og 2 kjøkken - Solrikt - Utleiemulighet.
Prisantydning3 000 000 kr
Nøkkelinfo
- Boligtype
- Enebolig
- Eieform
- Eier (Selveier)
- Soverom
- 5
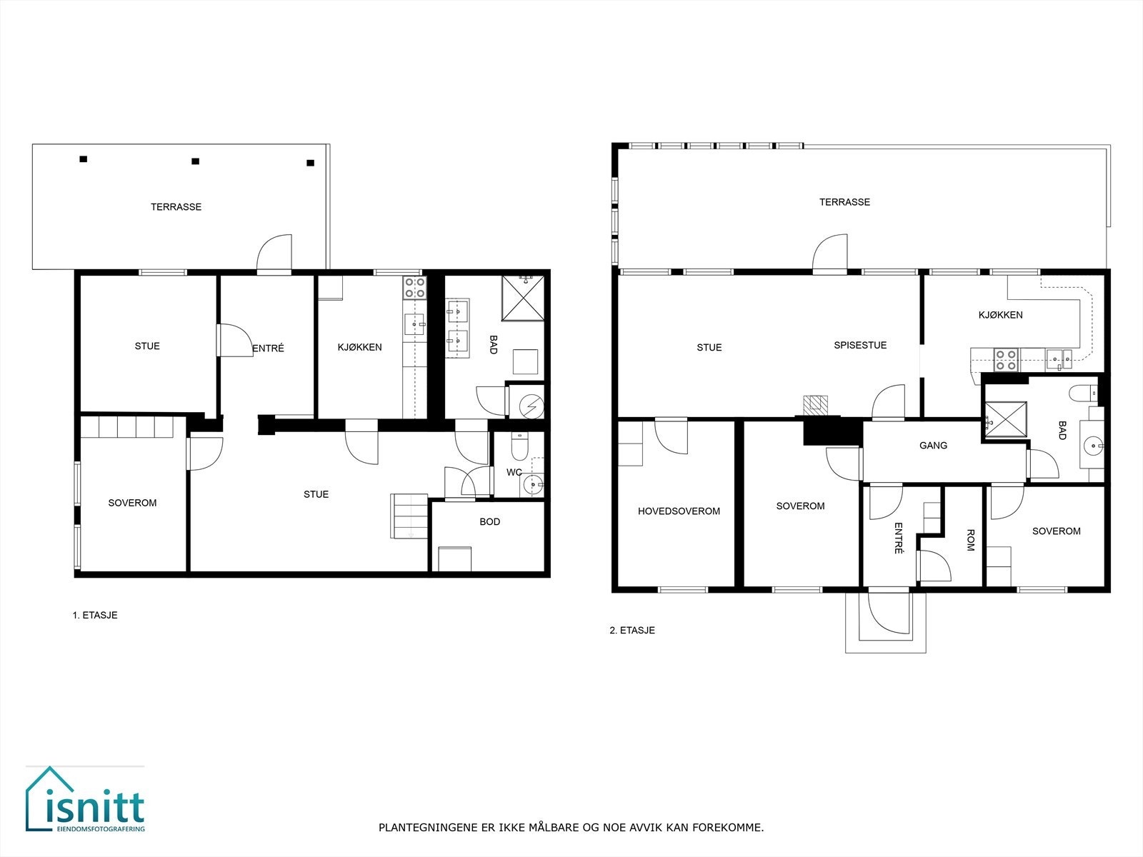
- Primærrom
- 167 m²
- Bruksareal
- 203 m²
- Etasje
- 2
- Byggeår
- 1970
- Energimerking
- F - Gul
- Rom
- 7
- Tomteareal
- 916 m² (eiet)
Fasiliteter
Balkong/Terrasse
Barnevennlig
Garasje/P-plass
Hage
Offentlig vann/kloakk
Rolig
Om boligen
Nordvik Eiendomsmegling har gleden av å presentere Heggevegen 27 - En innholdsrik enebolig med planløsning over to etasjer med familievennlig beliggenhet i Moelv. Her er det nærhet til skole, barnehage og kollektivtilbud - Så vel som alt av bymessige fasiliteter i sentrum. Boligen byr bla. på fem soverom, to stuer, to kjøkken og to bad + separat wc. Boligens hovedplan er velholdt med lyse farger, laminatgulv og normalt god standard. Utenfor stuen har man en sørvest-vendt og delvis overbygd terrasse med gode solforhold.
Høydepunkter
Høydepunkter
- Innholdsrik familiebolig med stort potensiale for videre utnyttelse.
- Fem soverom, to stuer, to kjøkken, to bad, wc og lagringsplass.
- Sentral beliggenhet ved skole, barnehage og sentrum.
- Mulighet for utleie.
NB: Knappen for å vise hele beskrivelsen har kun en visuell effekt.
NB: Knappen for å vise hele beskrivelsen har kun en visuell effekt.
Salgsoppgaven beskriver vesentlig og lovpålagt informasjon om eiendommen
Se komplett salgsoppgaveNyttige lenker
Nærområdet
Nordvik Gjøvik
Vi vet hva det er verdt!
Annonseinformasjon
| FINN-kode | 295243586 |
|---|---|
| Sist endret | 12. sep. 2025 10:23 |
| Referanse | 71-0113/22 |
Annonsene kan være mangelfulle i forhold til lovpålagt opplysningsplikt. Før bindende avtale inngås oppfordres interessenter til å innhente komplett informasjon fra meglerforetaket, selger eller utleier.





























