Bildegalleri

EiendomsMegler 1 v/Frank Robert Bae har gleden av å presentere et særdeles flott enderekkehus beliggende på Overvik!
Særdeles flott enderekkehus fra okt. 2021 - Vesentlig oppgradert fra prosj. std - Solrike uteplasser - P-kjeller m/lader
Nøkkelinfo
- Boligtype
- Rekkehus
- Eieform
- Andel
- Soverom
- 3
- Primærrom
- 88 m²
- Bruksareal
- 94 m²
- Byggeår
- 2021
- Energimerking
- B - Rød
- Tomt
- Eiet
Fasiliteter
Om boligen
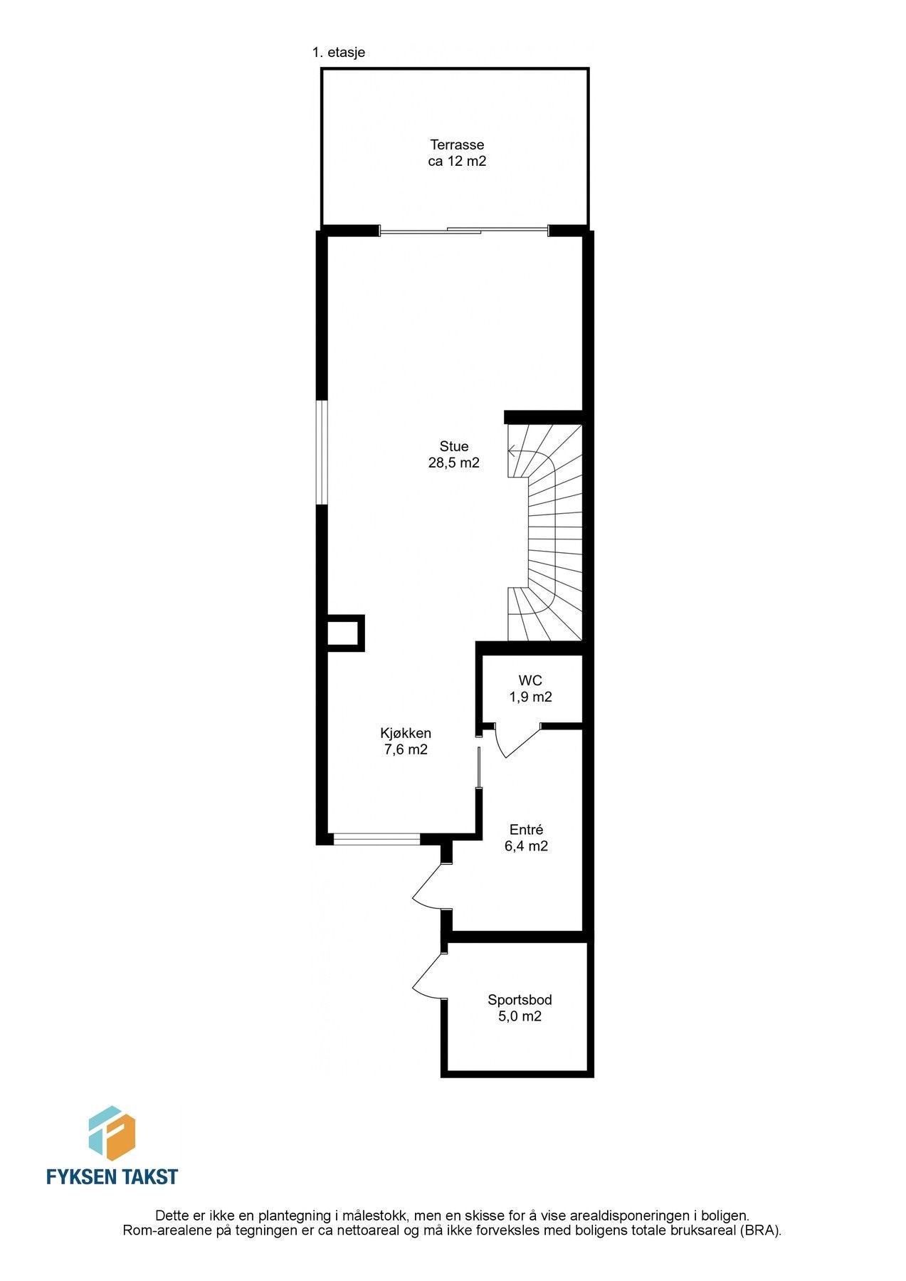
Boligen ble ferdigstilt så sent som i oktober 2021 og det har blitt gjort tilvalg/oppgraderinger for nærmere kr. 320.000, så her får man en gjennomgående høy og moderne standard hvor det er lagt stor vekt på detaljer og kvalitet (se prospekt for komplett liste). TG0 på tilnærmet alle punkter.
Lyse overflater, 1-stavs gulv og store vindusflater er en gjenganger, og sammen med boligens praktiske planløsning bidrar dette til å skape en lett og luftig atmosfære. En herlig hverdagsluksus er at det er etablert vannbåren gulvvarme i hele første etasje. På sommerstid nyter man solen samlet sett fra ca. 08:00 til 21:30 på boligens mark- og takterrasse, og man har en fin utsikt mot fjorden. Praktisk sportsbod med eget strømuttak rett utenfor døra, samt egen parkeringsplass med lader for elbil i oppvarmet parkeringskjeller.
Velkommen til en hyggelig visning!
Salgsoppgaven beskriver vesentlig og lovpålagt informasjon om eiendommen
Se komplett salgsoppgaveNyttige lenker
Nærområdet
EiendomsMegler 1 Grilstadporten
Prisstatistikk
Karen Aunes veg 11 E
på annonsen
prisantydning per kvadratmeter
Prisfordeling
Pris per m² ligger 12 977 kr over snittet for rekkehus i Trondheim Øst.
Grafen viser antall rekkehus solgt i Trondheim Øst siste året fordelt på pris per m² - totalt 193 rekkehus
Antall boliger
Kvadratmeterpris tilsvarer prisantydning pluss fellesgjeld per kvadratmeter (p-rom eller BRA-i). Prisene i grafen er avrundet til nærmeste 1000 kr.
Annonseinformasjon
| FINN-kode | 295173401 |
|---|---|
| Sist endret | 27. okt. 2023 11:06 |
| Referanse | 33220075 |
Annonsene kan være mangelfulle i forhold til lovpålagt opplysningsplikt. Før bindende avtale inngås oppfordres interessenter til å innhente komplett informasjon fra meglerforetaket, selger eller utleier.












































