Bildegalleri

EiendomsMegler 1 v/Frank Robert Bae har gleden av å presentere en lys 2-roms toppleilighet beliggende på populære Charlottenlund!
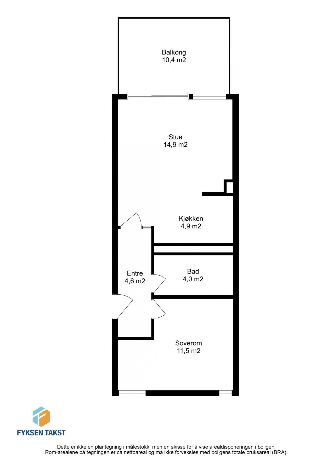
Lys 2-roms leilighet i toppetasje - Vestvendt balkong med glimrende sol- og utsiktsforhold - Utv. renovert i 2015/2016
Nøkkelinfo
- Boligtype
- Leilighet
- Eieform
- Andel
- Soverom
- 1
- Primærrom
- 42 m²
- Bruksareal
- 42 m²
- Etasje
- 3
- Byggeår
- 1969
- Energimerking
- G - Rød
- Rom
- 2
- Tomt
- Eiet
Fasiliteter
Om boligen
Leiligheten ligger usjenert til i byggets øverste etasje og har en praktisk planløsning. Dette, sammen med store vindusflater som gir et godt lysinnslipp, bidrar til leilighetens lette romfølelse. Dette forsterkes ytterligere av skyvedøren som gjør at den vestvendte balkongen oppleves som en forlengelse av stuen på finværsdager. Her nyter man solen fra ca. kl. 13:00 til solnedgang på sommerstid og man har en herlig utsikt mot fjorden - og med over 10 kvm har man god plass for utemøblement og grill.
Kvaliteter verdt å fremheve:
- Effektiv planløsning
- Pipeløp på stue med mulighet for montering av vedovn
- Felleskostnader inkl. både kabel-TV, internett og kommunale avgifter
- Sikringsskapet er oppgradert med automatsikringer
- To eksterne boder; én i kjeller, og én i trappeoppgang
- Bygget ble utvendig renovert i 2015/2016
Velkommen til en hyggelig visning!
Salgsoppgaven beskriver vesentlig og lovpålagt informasjon om eiendommen
Se komplett salgsoppgaveNyttige lenker
Nærområdet
EiendomsMegler 1 Grilstadporten
Prisstatistikk
Midtre Tunhøgda 9
på annonsen
prisantydning per kvadratmeter
Prisfordeling
Pris per m² ligger 6 888 kr under snittet for leiligheter i Trondheim Øst.
Grafen viser antall leiligheter solgt i Trondheim Øst siste året fordelt på pris per m² - totalt 2 557 leiligheter
Antall boliger
Kvadratmeterpris tilsvarer prisantydning pluss fellesgjeld per kvadratmeter (p-rom eller BRA-i). Prisene i grafen er avrundet til nærmeste 1000 kr.
Annonseinformasjon
| FINN-kode | 294992311 |
|---|---|
| Sist endret | 29. juni 2023 11:32 |
| Referanse | 33230044 |
Annonsene kan være mangelfulle i forhold til lovpålagt opplysningsplikt. Før bindende avtale inngås oppfordres interessenter til å innhente komplett informasjon fra meglerforetaket, selger eller utleier.

















