Bildegalleri

Et moderne og stilfullt hjem på Kolbotn.
Lekker og påkostet historisk enebolig med utsikt, utleiedel og KINO! Mulighet for 2 utleiedeler!
Nøkkelinfo
- Boligtype
- Enebolig
- Eieform
- Eier (Selveier)
- Soverom
- 4
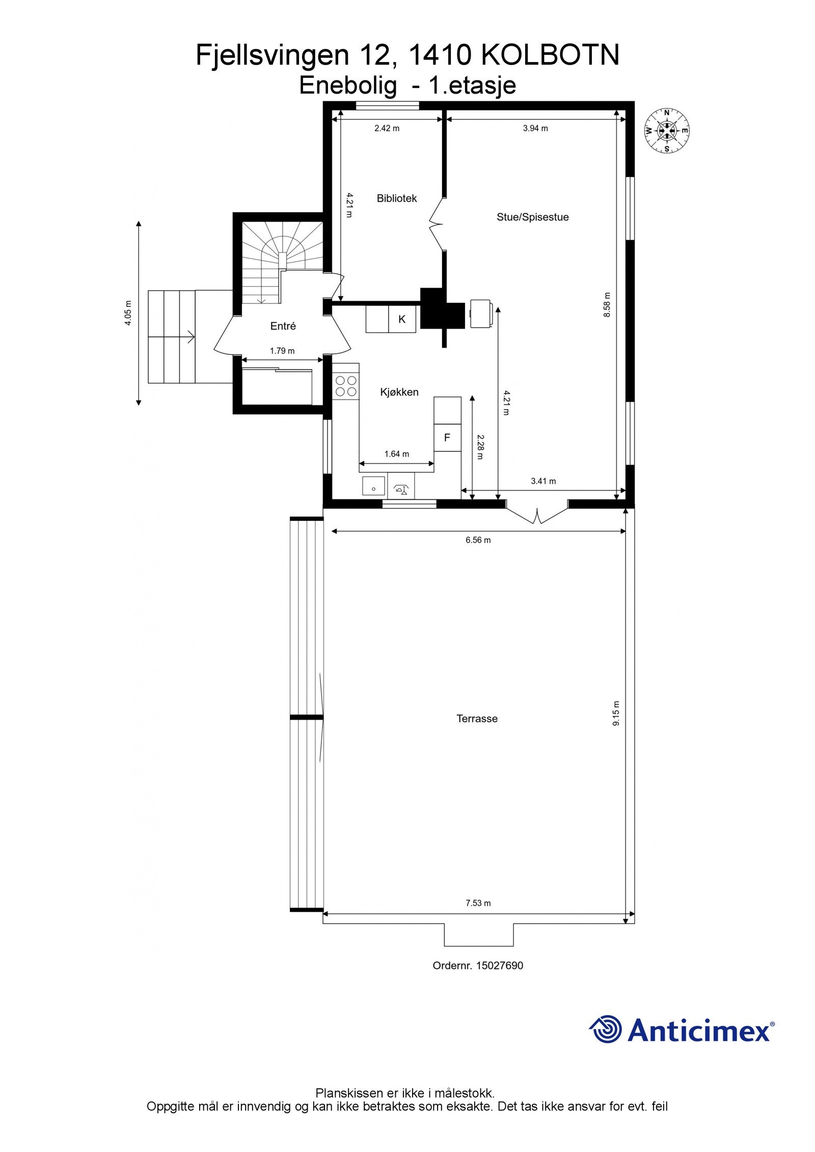
- Primærrom
- 226 m²
- Bruksareal
- 227 m²
- Byggeår
- 1913
- Energimerking
- F - Gul
- Tomteareal
- 938 m² (eiet)
Fasiliteter
Visning
Om boligen
Velkommen til Fjellsvingen 12.
Her har vi et flott hus med masse plass både ute og inne. I tillegg har vi en utleiedel i underetasjen. Store deilige rom og en terrasse på hele 70 kvm er rammene rundt det gode livet her. Vi kan også by på ett kinorom utenom det vanlige. Hagen er frodig og innbydende om sommeren, og et flott sted for barna å løpe rundt og leke i.
Les mer:
- https://www.oavis.no/boligsalg-eiendom/historisk-kolbotn-hus-kan-bli-ditt/819084
- https://www.oblad.no/magnus-og-mari-fulgte-barndomsdrommen-da-de-skulle-pusse-opp-huset-det-er-lagt-mye-kjarlighet-i-dette-rommet/s/5-68-1353778
Huset har gjennomgått en vesentlig oppgradering siden 2017:
- Ny takkonstruksjon
- Etterisolerte yttervegger
- Nytt kjøkken
- Nytt bad
- Nytt elektrisk og rør (se egenerklæring for mer informasjon)
Velkommen på visning.
Salgsoppgaven beskriver vesentlig og lovpålagt informasjon om eiendommen
Se komplett salgsoppgaveNærområdet
EIE eiendomsmegling Fredensborg
Annonseinformasjon
| FINN-kode | 294873349 |
|---|---|
| Sist endret | 31. okt. 2023 08:33 |
| Referanse | 76230012 |
Annonsene kan være mangelfulle i forhold til lovpålagt opplysningsplikt. Før bindende avtale inngås oppfordres interessenter til å innhente komplett informasjon fra meglerforetaket, selger eller utleier.










































